

Василий Пехтерев
Архитекторы


7
г. Пермь
Отзывы о: Василий Пехтерев 0
Нет отзывов
Об эксперте
Об опыте
Стаж работы более 5 лет. Работал руководителем архитектурно-строительного отдела в строительной компании. Есть опыт разработки и запуска с нуля продуктов: модульные дома, павильоны-конструкторы, модульные беседки, эко-отели, эко-поселки. Работаю с BIM моделями в ArchiCad, Revit. Моделирую в SketchUp, работаю с графическими пакетами Adobe, CorelDraw. Проектирую стадии Э - АР - КР, готовлю спецификации, рассчитываю стоимость строительных объектов. Работаю быстро, качественно, по договору, либо через СРО.
Категории специализации
Архитекторы, Гардеробные и кладовые комнаты, Детские и пеленальные, Дизайнеры интерьера, Проектирование и строительство
Ценовой сегмент: ₽₽
Услуги
Архитектурное проектирование
Архитектурные чертежи
Архитектурный дизайн
Визуализация интерьера
Модульные пристройки
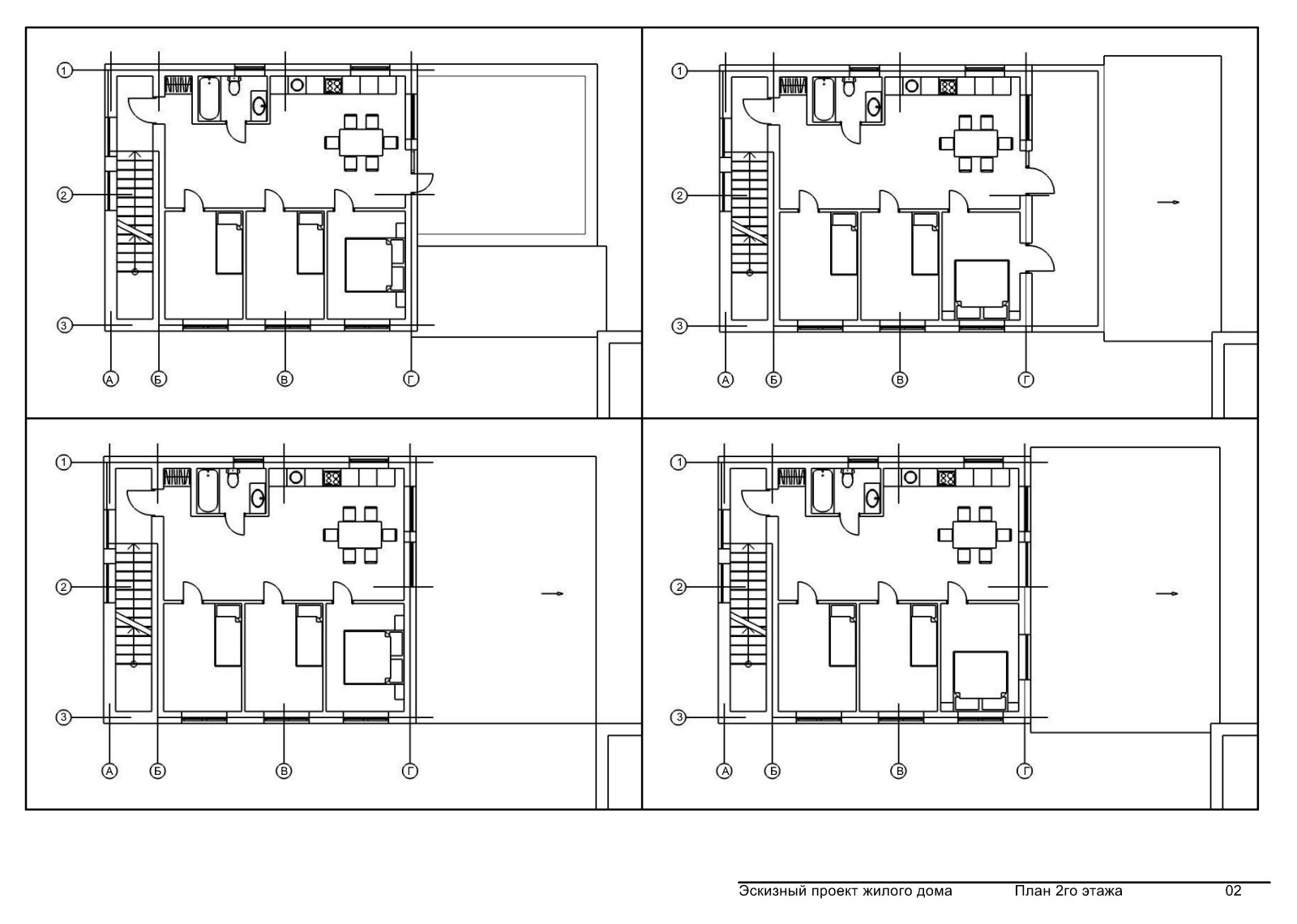
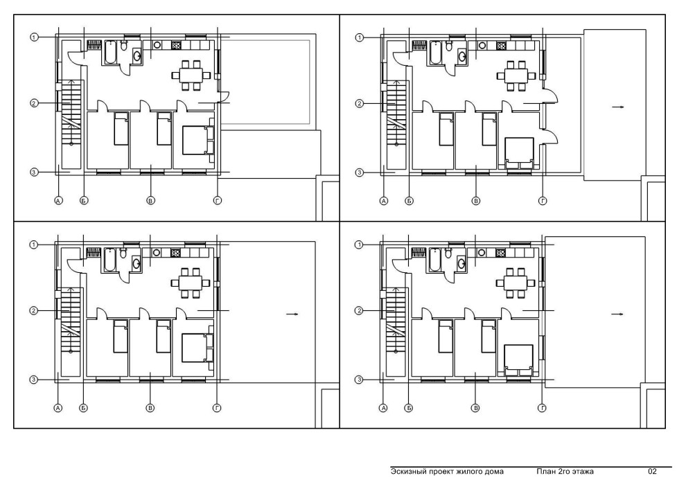
План дома
План этажа
Планировка пространства
Пристройки к дому
Проект дома на заказ
Проектирование конструкций
Альбомы идей 1
