logo

Эскизный проект жилого дома

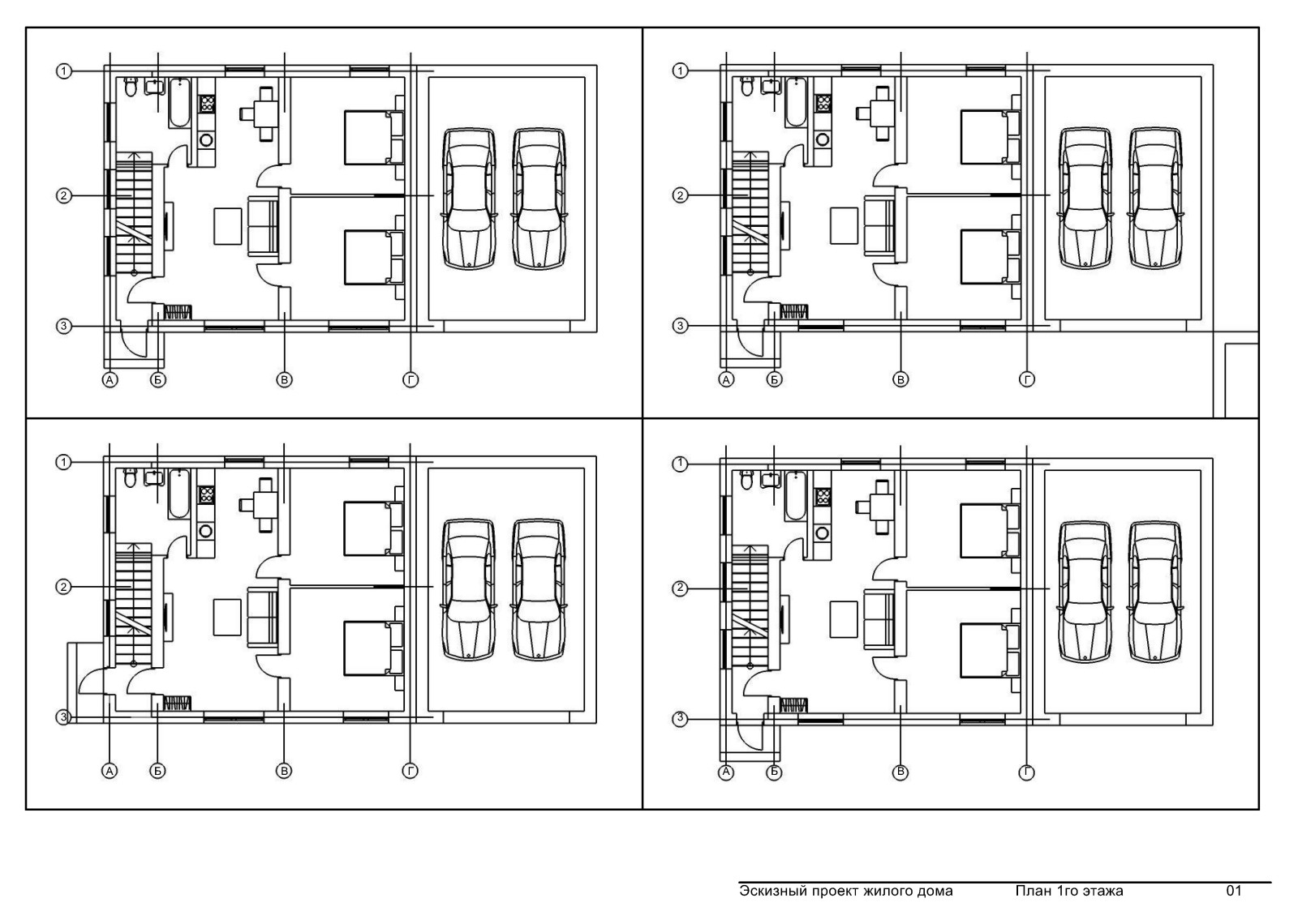
Разработка вариантов объемного решения индивидуального жилого дома

Год реализации: 2020
photo

5 фотографий

Эскизный проект жилого дома
Эскизный проект жилого дома
Эскизный проект жилого дома
Эскизный проект жилого дома
Эскизный проект жилого дома
Эскизный проект жилого дома
Эскизный проект жилого дома
Эскизный проект жилого дома
Эскизный проект жилого дома
Эскизный проект жилого дома
Фоновое изображение профиля Василий Пехтерев
Фото профиля Василий Пехтерев