
Проектирование и строительство
0
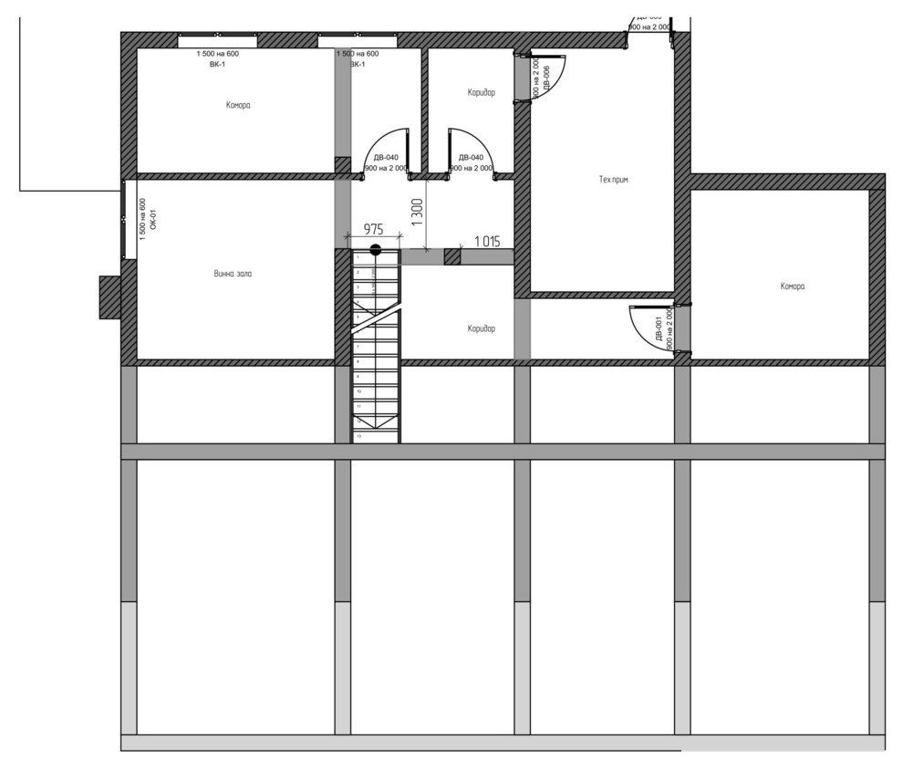
Загородный дом в европейском стиле – 282,6 кв.м.
План цокольного этажа.
Другие фотографии в проекте
Вопросы к фото 0
Задайте вопрос
Вам ответят эксперты. Пришлем уведомление, когда вам ответят

Проектирование и строительство
0
План цокольного этажа.
Другие фотографии в проекте
Вам ответят эксперты. Пришлем уведомление, когда вам ответят