
Проектирование и строительство
0
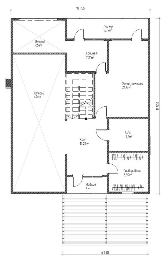
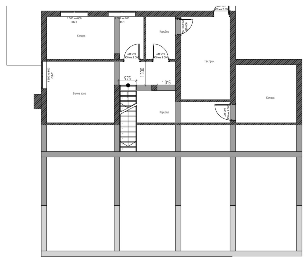
Загородный дом в европейском стиле – 282,6 кв.м.
Загородный дом создан архитекторами компании «Экопан» в европейском стиле. Проект общей площадью 282,6 кв.м. представляет собой двухэтажный дом с гаражом и просторной террасой, его особенным преимуществом является цокольный этаж, на котором размещены котельная, винный погреб и тех. помещения. Это оптимальный вариант для большой семьи. . Традиционные формы дома уместно дополнены современными архитектурными элементами – большими окнами и сочетанием разных отделочных материалов на фасаде, таких как камень и дерево. Открытая терраса выходит на озеро и гармонично вписывается в архитектуру дома, расширяя его пространство для приятного времяпровождения.
Другие фотографии в проекте
Вопросы к фото 0
Задайте вопрос
Вам ответят эксперты. Пришлем уведомление, когда вам ответят
Похожие фотографии

Скандинавский стиль
Новый Сад

Скандинавский стиль
Новый Сад

Проект Лужки
Архитекор. Загородные дома

Проект Лужки
Архитекор. Загородные дома

Экстерьер загородного дома в п. Репино
Студия дизайна Коэль

Загородный дом Площадь: 450 м². Срок реализации: 18 месяцев. Исполнитель: Монтажстрой. Автор проекта: Маслова Наталья 3L Design
Андрей Иода
Вилла в итальянском стиле
V6 Group
Five o'clock
Благоустройство и озеленение под ключ участка 17 соток в КП "Ренессанс-Парк". Архитектурно - планировочное решение данного проекта выполнено частично в регулярном, и даже, немного помпезном стиле, который диктуется архитектурой дома. Основным материалом дорожек стала клинкерная брусчатка, дополненная бутовым камнем подпорной стенки.
Новая Усадьба
ЛАС ВЕГАС
Александр Стренаков

Экстерьер дома с гаражом
Кристина Кирпичева

Дом у моря
Екатерина Катанова

Вилла на Звездной
V6 Group



