
Одноэтажный загородный дом 75 кв.м.
3

Проектирование и строительство

Одноэтажный загородный дом 75 кв.м.
3

Уютный дом с мансардным этажом – 107,7 кв.м.
4

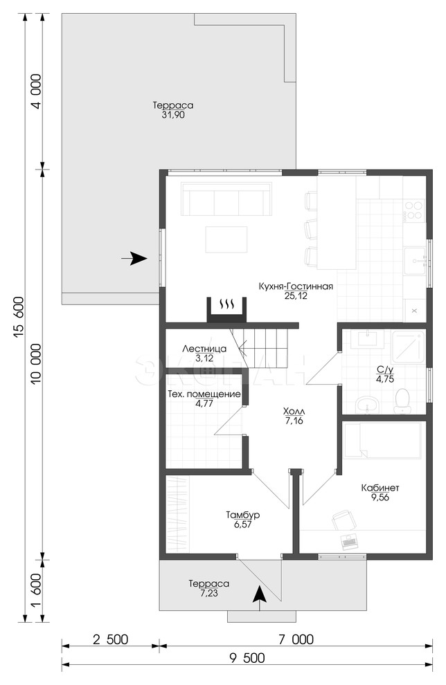
Одноэтажный дом в стиле минимализм – 130,37 кв.м.
3

Загородный дом в европейском стиле – 282,6 кв.м.
5

Загородный дом типа «шале»
4

Загородный дом 117 кв.м.
2

Компактный коттедж 56 кв.м.
4

Одноэтажный коттедж 99,77 кв.м
3

Коттедж в современном стиле 145 кв.м.
4
Нет отзывов
Строительство коттеджей, таунхаусов, кемпингов, магазинов, общественных зданий, складских помещений являются основным направлением деятельности компании ЭКОПАН. Мы предлагаем своим клиентам инновационные технологии каркасно-панельного строительства, реализуя Ваши проекты из SIP панелей, которые обладают неоспоримыми преимуществами перед традиционными строительными материалами. Мы также предлагаем услуги по проектированию, дизайну, ремонту, сервисному обслуживанию, организации инженерных систем и управлению проектами.
