
Элла Корнева, Анна Бабилашвили
Дизайнеры интерьера
5
·
6 отзывов
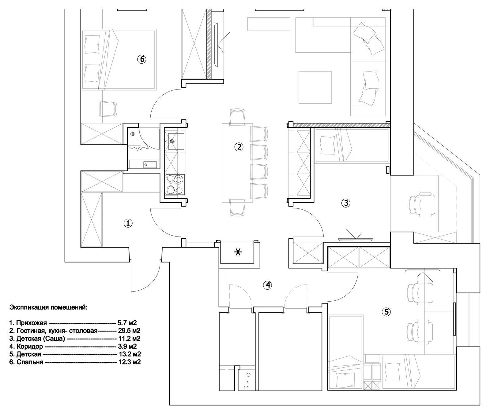
ул. Мироновская
Ирина Гуманова
Другие фотографии в проекте
Вопросы к фото 0
Задайте вопрос
Вам ответят эксперты. Пришлем уведомление, когда вам ответят
Похожие фотографии

Квартира, вдохновленная Кандинским. ЖК "Яуза парк"
Анастасия Дубовских

Современный комфорт для двоих: стильные 41 м²
Антон Шагов

Реализованный проект Квартиры для семьи со школьником
Анна Гусева

ЖК Созвездие 36м²
Кирилл Пономаренко

Краснохолмская наб-я; Таганская
FLIK Дизайн бюро

Квартира 99 м2 ЖК Родной город. Воронцовский парк в современном стиле
Ксения Блохина

Семейный очаг - реализация
Александра Чёмина

Квартира 54 м2 ул. 2я Фрунзенская в стиле лофт
Ксения Блохина

Квартира у моря
Yuliya Pesheva

Дом в Борском районе.
Irina Morozova

Парижские апартаменты в московской «сталинке»
Марина Ярмаркина/ Amalgama interior





