
Проектирование и строительство
0
Уютный дом с мансардным этажом – 107,7 кв.м.
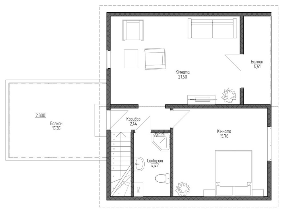
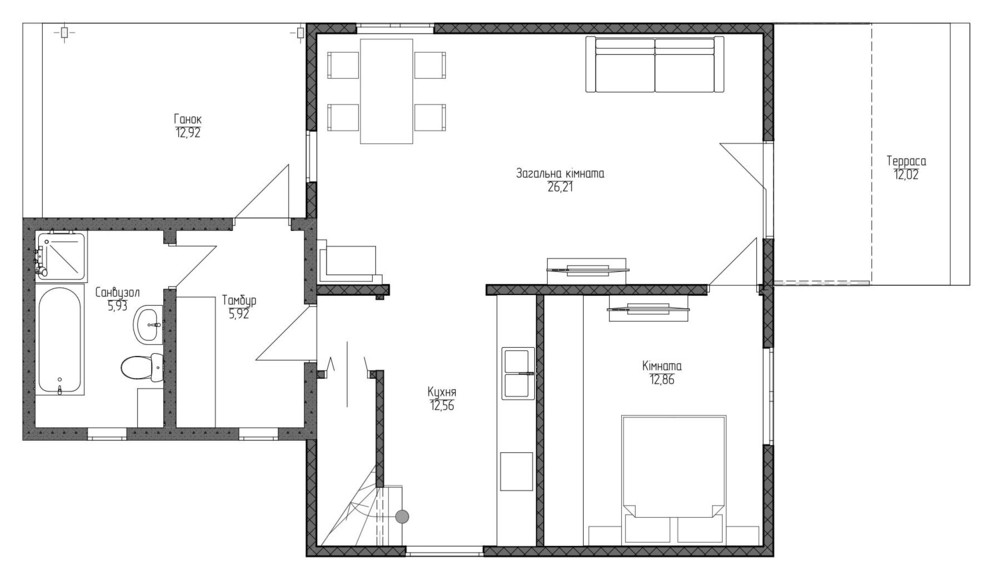
Уютный дом с мансардным этажом создан архитекторами компании «Экопан». . Проект общей площадью 107,7 кв.м. достаточно компактный, он оптимален для проживания небольшой семьи из 4-х человек. Архитектура отличается простотой и лаконичностью форм. . Планировка дома максимально открыта, что позволяет обеспечить пространство большим количеством света. В то же время она функциональна и отвечает всем запросам современной семьи. . На первом этаже разместилась большая гостиная, кухонная зона, спальная комната, техпомещение, предусмотрен выход на крыльцо. На втором – две просторные спальни, каждая из которых имеет собственный балкон. Санузлы расположены на каждом из этажей. Летняя терраса гармонично вписывается в архитектуру дома и расширяет пространство для приятного времяпрепровождения. . Технико-экономические показатели . Общая площадь – 107,7 м2 . Жилая площадь – 65,63 м2 . Площадь застройки – 97,84 м2 . Площадь летних помещений - 44,9 м2
Другие фотографии в проекте
Вопросы к фото 0
Задайте вопрос
Вам ответят эксперты. Пришлем уведомление, когда вам ответят
Похожие фотографии

Скандинавский стиль
Новый Сад

Скандинавский стиль
Новый Сад

Проект Лужки
Архитекор. Загородные дома

Проект Лужки
Архитекор. Загородные дома

Экстерьер загородного дома в п. Репино
Студия дизайна Коэль

Загородный дом Площадь: 450 м². Срок реализации: 18 месяцев. Исполнитель: Монтажстрой. Автор проекта: Маслова Наталья 3L Design
Андрей Иода
Вилла в итальянском стиле
V6 Group
Five o'clock
Благоустройство и озеленение под ключ участка 17 соток в КП "Ренессанс-Парк". Архитектурно - планировочное решение данного проекта выполнено частично в регулярном, и даже, немного помпезном стиле, который диктуется архитектурой дома. Основным материалом дорожек стала клинкерная брусчатка, дополненная бутовым камнем подпорной стенки.
Новая Усадьба
ЛАС ВЕГАС
Александр Стренаков

Экстерьер дома с гаражом
Кристина Кирпичева

Дом у моря
Екатерина Катанова

Вилла на Звездной
V6 Group


