
Дизайнеры интерьера
5
·
6 отзывов
Шкатулка Воспоминаний
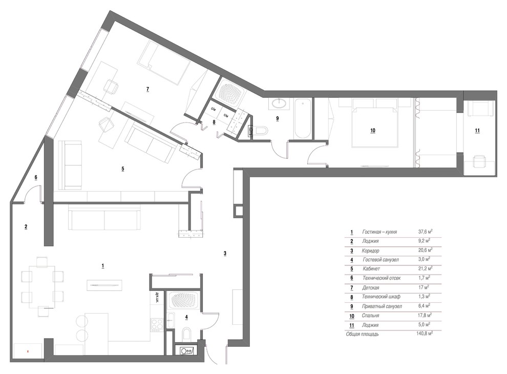
Квартира 140 кв. м. г. Москва ЖК «Чемпион парк» . Реализация 2013-2015 г. . . . Дизайнер Иванова Ксения дизайн студия «Montein» . Фотограф: Комаров Денис . . Этот объект изначально покорил сложным ломанным пространством и потрясающим остеклением в пол. Заказчики, супружеская пара, которая очень много путешествует и в свой новый дом они хотели привнести воспоминания из своих поездок, а хозяйка еще увлечена коллекционированием авторского фарфора. Общий язык был найден сразу. Хотелось сохранить ощущение объема и воздуха. Также требовалось решить многие технические проблемы. Обязательны были два автономных санузла, хозяйственное помещение для стиральной и сушильной машины, максимальное количество шкафов. Кабинет для супруга в котором при желание могли остановиться взрослые дети и детская для младшего сына с учетом того, что он скоро уже будет подросток. Спальню из-за вытянутого помещения, я предложила разделить на две зоны (непосредственно спальня и будуар хозяйки), также в ней нужно было уместить три полноценных шкафа. Гостиную зону объединили с кухней, чтобы сохранить объем и оставить открытой. Но при этом заказчице нужно было максимальное рабочее пространство и раковина развернутая к окнам. Также она хотела автономный телевизор именно в кухонной зоне. Так родилась двухсторонняя телевизионная стойка. Вообще практически вся мебель на этом объекте, включая двери сделана по моим эскизам на заказ. Отдельно хочется отметить распашные двери с изразцами ручной работы, которые ведут в крошечную хозяйственную комнату, они вносят интригу в лабиринт коридора. . Кухня « Giulia Novars» . Мебель по авторским эскизам мастерская «Аркада» . Свет гостиная, спальня «Illuminazione d’Arte» (Италия) . Свет кабинет, санузел «Bellart» (Италия) . Столовая группа ф-ка «Selva» (Италия) . Кресла в гостиной «Tre Ci», в спальне «Bedding» (Италия) . Детская « Monte Cristo Mobili» (Румыния) . . Плитка . Arkadia и Eco Ceramica . . Текстильное оформление «Montein» . . Наши координаты: . Калужская обл. г. Обнинск, Курчатова 19а офис 217 . тел. +7(48439)5-54-00 . +7(915)455-95-45 . +7(916)455-05-05 . www.montein.ru .
Другие фотографии в проекте
Вопросы к фото 3
Ниша для телевизора
Алсу Казакова
9 л.
Какого цвета кухня? Это по каталогу NCS?
Задайте вопрос
Вам ответят эксперты. Пришлем уведомление, когда вам ответят
Белый, Встраиваемая, Гостиная открытой планировки, Кухня, Москва, Нержавеющая сталь, П-образная кухня, Полуостров, Синий, Телевизор, Традиционный, Тёмная паркетная доска, Фасад с выступающей/рельефной панелью, бытовая техника, коллекционный фарфор, кухня, кухонный остров, мебель на заказ, модульный паркет, освещение, паркет, рабочая зона, смесители, стойка под ТВ, точечное освещение
Похожие фотографии

Квартира в современном стиле
Пример оригинального дизайна: большая угловая, глянцевая кухня-гостиная в белых тонах с отделкой деревом в современном стиле с врезной мойкой, плоскими фасадами, синими фасадами, столешницей из акрилового камня, белым фартуком, фартуком из кварцевого агломерата, техникой из нержавеющей стали, темным паркетным полом, полуостровом, коричневым полом и белой столешницей
Николай Харитонов

Квартира в современном стиле
Источник вдохновения для домашнего уюта: большая угловая, глянцевая кухня-гостиная в белых тонах с отделкой деревом в современном стиле с врезной мойкой, плоскими фасадами, синими фасадами, столешницей из акрилового камня, белым фартуком, фартуком из кварцевого агломерата, техникой из нержавеющей стали, темным паркетным полом, полуостровом, коричневым полом и белой столешницей
Николай Харитонов

С высоты положения
На фото: маленькая п-образная кухня-гостиная в классическом стиле с врезной мойкой, фасадами с выступающей филенкой, серыми фасадами, белым фартуком, полуостровом и серым полом для на участке и в саду с
Ирина Киреева

Квартира на Верхней Масловке
На фото: маленькая п-образная, глянцевая кухня-гостиная в современном стиле с плоскими фасадами, белыми фасадами, столешницей из кварцевого агломерата, белым фартуком, фартуком из керамогранитной плитки, полом из керамогранита, техникой из нержавеющей стали, полуостровом, врезной мойкой, бежевым полом, барной стойкой, телевизором и двухцветным гарнитуром для на участке и в саду с
Дмитрий

Загородный дом Мещерское
На фото: п-образная кухня среднего размера, в белых тонах с отделкой деревом в классическом стиле с обеденным столом, врезной мойкой, фасадами с декоративным кантом, белыми фасадами, деревянной столешницей, белым фартуком, фартуком из керамической плитки, техникой из нержавеющей стали, полом из керамической плитки, полуостровом, серым полом, коричневой столешницей, потолком из вагонки и мойкой у окна с
Мария Родионовская

Квартира 40м2 для молодой пары
Источник вдохновения для домашнего уюта: маленькая п-образная кухня-гостиная в скандинавском стиле с врезной мойкой, фасадами с утопленной филенкой, синими фасадами, столешницей из ламината, белым фартуком, черной техникой, полом из керамогранита, полуостровом, бежевым полом, бежевой столешницей и барной стойкой для на участке и в саду
Анастасия Панова Студия Nova.dizain

Дом у озера
Свежая идея для дизайна: п-образная кухня-гостиная среднего размера в стиле фьюжн с врезной мойкой, фасадами с выступающей филенкой, белыми фасадами, столешницей из акрилового камня, белым фартуком, фартуком из каменной плитки, техникой из нержавеющей стали и белой столешницей без острова - отличное фото интерьера
AC+CA архитектурная студия

Дом у озера
На фото: п-образная, светлая кухня-гостиная среднего размера в стиле фьюжн с врезной мойкой, фасадами с выступающей филенкой, белыми фасадами, столешницей из акрилового камня, белым фартуком, фартуком из каменной плитки, техникой из нержавеющей стали и белой столешницей без острова с
AC+CA архитектурная студия

Квартира в Палевском жилмассиве
Пример оригинального дизайна: п-образная кухня-гостиная среднего размера в скандинавском стиле с врезной мойкой, серыми фасадами, столешницей из кварцевого агломерата, белым фартуком, фартуком из кварцевого агломерата, черной техникой, полом из винила, полуостровом, коричневым полом, белой столешницей и фасадами с выступающей филенкой
Дмитрий Дубровский

ЖК Кремлёвские Звёзды
Источник вдохновения для домашнего уюта: п-образная кухня в классическом стиле с фасадами с выступающей филенкой, синими фасадами, синим фартуком, техникой из нержавеющей стали, полуостровом, серым полом и белой столешницей
Маргарита Остерман

Светлая квартира с яркими акцентами 51 м²
Свежая идея для дизайна: п-образная кухня-гостиная в современном стиле с врезной мойкой, плоскими фасадами, серыми фасадами, белым фартуком, техникой из нержавеющей стали, полуостровом, белым полом и серой столешницей - отличное фото интерьера
Анна Попова

Светлая квартира с яркими акцентами 51 м²
Стильный дизайн: п-образная кухня-гостиная в современном стиле с врезной мойкой, плоскими фасадами, серыми фасадами, белым фартуком, техникой из нержавеющей стали, полуостровом, белым полом и серой столешницей - последний тренд
Анна Попова





Ирина Марцинкевич
8 л.
Как обыграть стоящий в углу кухни . холодильник?