Шкатулка Воспоминаний
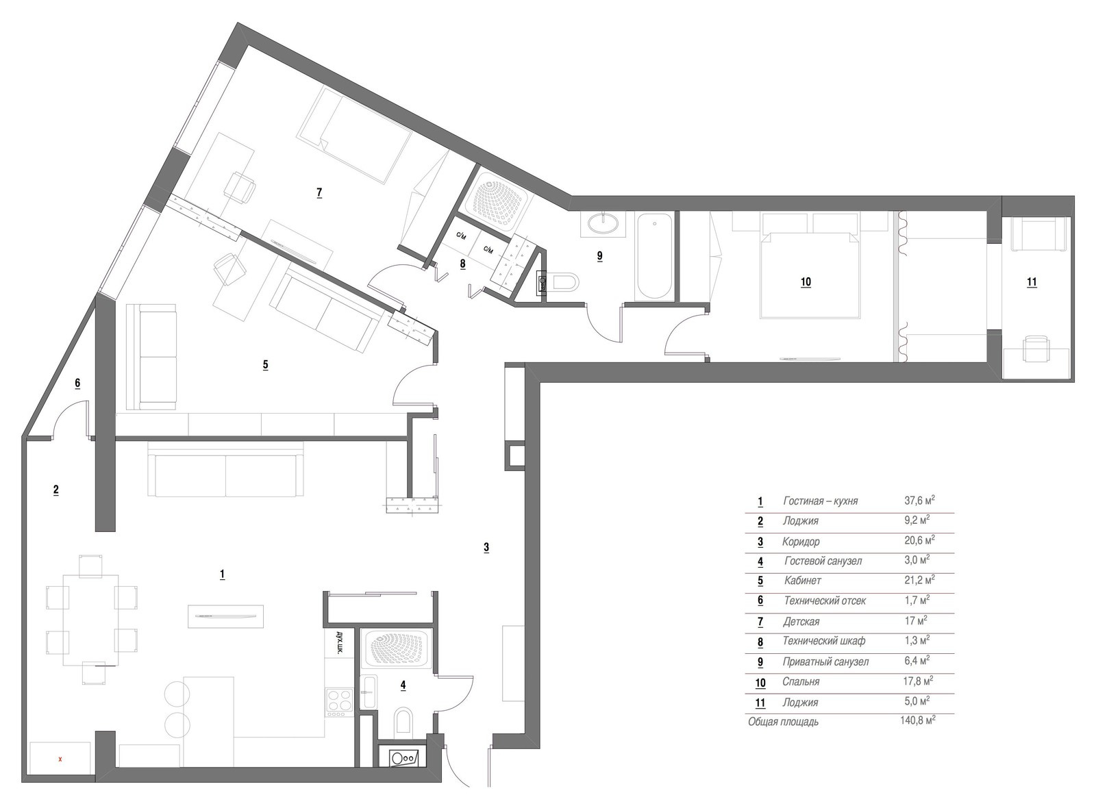
Квартира 140 кв. м. г. Москва ЖК «Чемпион парк» . Реализация 2013-2015 г. . . . Дизайнер Иванова Ксения дизайн студия «Montein» . Фотограф: Комаров Денис . . Этот объект изначально покорил сложным ломанным пространством и потрясающим остеклением в пол. Заказчики, супружеская пара, которая очень много путешествует и в свой новый дом они хотели привнести воспоминания из своих поездок, а хозяйка еще увлечена коллекционированием авторского фарфора. Общий язык был найден сразу. Хотелось сохранить ощущение объема и воздуха. Также требовалось решить многие технические проблемы. Обязательны были два автономных санузла, хозяйственное помещение для стиральной и сушильной машины, максимальное количество шкафов. Кабинет для супруга в котором при желание могли остановиться взрослые дети и детская для младшего сына с учетом того, что он скоро уже будет подросток. Спальню из-за вытянутого помещения, я предложила разделить на две зоны (непосредственно спальня и будуар хозяйки), также в ней нужно было уместить три полноценных шкафа. Гостиную зону объединили с кухней, чтобы сохранить объем и оставить открытой. Но при этом заказчице нужно было максимальное рабочее пространство и раковина развернутая к окнам. Также она хотела автономный телевизор именно в кухонной зоне. Так родилась двухсторонняя телевизионная стойка. Вообще практически вся мебель на этом объекте, включая двери сделана по моим эскизам на заказ. Отдельно хочется отметить распашные двери с изразцами ручной работы, которые ведут в крошечную хозяйственную комнату, они вносят интригу в лабиринт коридора. . Кухня « Giulia Novars» . Мебель по авторским эскизам мастерская «Аркада» . Свет гостиная, спальня «Illuminazione d’Arte» (Италия) . Свет кабинет, санузел «Bellart» (Италия) . Столовая группа ф-ка «Selva» (Италия) . Кресла в гостиной «Tre Ci», в спальне «Bedding» (Италия) . Детская « Monte Cristo Mobili» (Румыния) . . Плитка . Arkadia и Eco Ceramica . . Текстильное оформление «Montein» . . Наши координаты: . Калужская обл. г. Обнинск, Курчатова 19а офис 217 . тел. +7(48439)5-54-00 . +7(915)455-95-45 . +7(916)455-05-05 . www.montein.ru .
19 фотографий


















