
Архитекторы
0
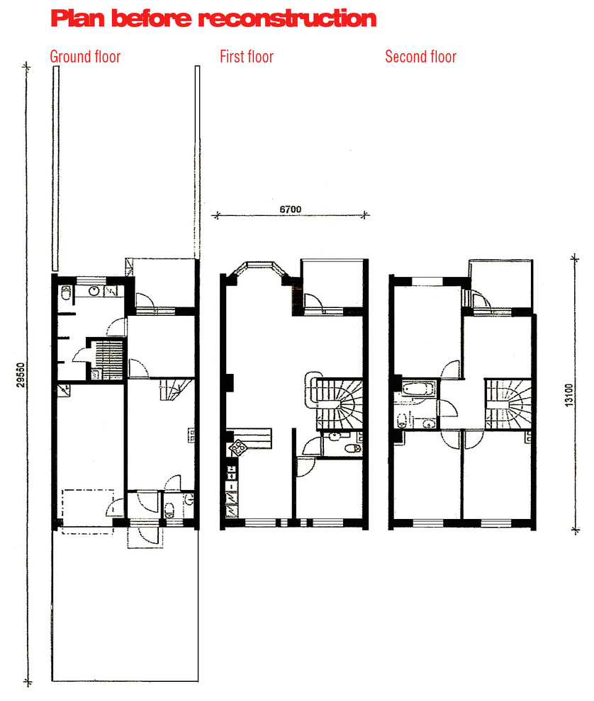
Реконструкция трехэтажного таунхауса в Санкт-Петербурге.
Гостевая примыкает к гостевому санузлу и второй прихожей, ведущей во внутренний дворик. И в стенах санузла и в стене отделяющей гостевую от прихожей применены стеклоблоки. . Объект – финалист всероссийского конкурса INTERIA AWARD –V 2014г в категории: «Инновация, интерьер дома до 300 кв м» . foto I.Sorokin
Другие фотографии в проекте
Вопросы к фото 0
Задайте вопрос
Вам ответят эксперты. Пришлем уведомление, когда вам ответят
Гостиная, Санкт-Петербург
Похожие фотографии

Квартира, вдохновленная Кандинским. ЖК "Яуза парк"
Анастасия Дубовских

Общий вид на гостиную и обеденную зону
Наталья Корнюхина

Фотосъёмка квартиры. Дизайнер Екатерина Плотникова
Александр Вавилов

162_Сердце_Столицы
FLIK Дизайн бюро

Апартаменты в ЖК Флотилия
Юлия Савельева

Квартира 99 м2 ЖК Родной город. Воронцовский парк в современном стиле
Ксения Блохина

Долгая дорога к соснам
Yuliya Pesheva

apartment
Екатерина Гурари

Квартира для молодой семьи
Андрей Быков

Квартира для молодой семьи
Андрей Быков






