Реконструкция трехэтажного таунхауса в Санкт-Петербурге.
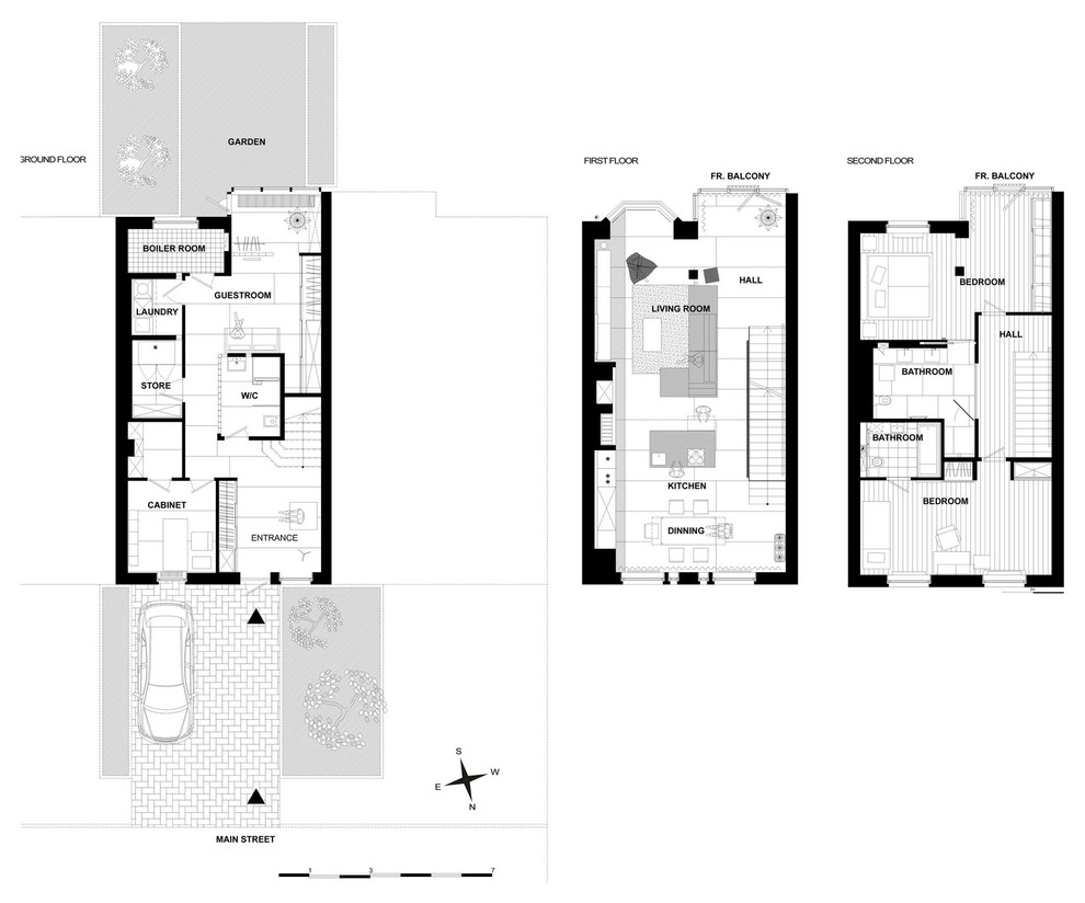
Роскошь простоты и лаконизма форм. . . Основная концепция этого интерьера – понятная четкая планировка, обилие воздуха, . . естественный свет во всех помещениях, покой и уют. Современный дизайн интерьера этой . . квартиры основан на идеях свободной планировки и единого общего главного . . пространства, которое объединяет в себе основные функциональные «дневные» зоны: . . гостиную и кухню-столовую. Разделение на зоны в едином пространстве происходит за . . счет правильной расстановки мебели и расстановки источников искусственного . . освещения. Комфорту в этой квартире во многом способствуют удобные, прямые марши . . лестниц. Лестница играет очень важную роль, поскольку мы четко разделили все . . помещения по типам и каждый тип отнесли на свой этаж. На первом этаже – вход в дом, . . технические помещения: котельная, постирочная, кладовая и т.д.; на втором – главное . . «дневное» пространство гостиной и кухни-столовой; на третьем расположились . . «вечерние» приватные помещения – спальни и ванные комнаты. Каждый этаж имеет свое . . напольное покрытие. Первые два этажа отделаны тонкими листами керлита (Kerlit, arch . . skin) 3х1 м, третий этаж имеет теплое покрытие из массива натурального дуба. При этом . . независимо от типа, материала пола везде теплый, что позволяет ходить босиком. Общая . . площадь открытого пространства второго этажа – 70 кв м, высота потолка 3.30 м, то есть . . это большой объем с минимумом углов. Легкости помещению придает облегченный . . лестничный марш на третий этаж - площадки каждой ступени отдельны друг от друга и . . отделаны теплым дубом, как и сам пол третьего этажа. Тонированное стекло, которое . . прикрывает лестничный марш своим отражением как-бы дополнительно расширяет . . пространство. . . Заказчики к нам обратились, поскольку им понравились наши построенные на тот момент . . работы, поэтому было доверие к нам как к профессионалам. Наш творческий подход . . основан на том, что мы пытаемся отразить свой стиль в каждой работе, чтобы клиент . . изначально знал, что он от нас может получить. Но, в то же время, каждый интерьер . . делаем для конкретного заказчика. Это касается не только функциональных требований . . по составу семьи или каких-то эргономических особенностей. Мы стараемся сделать так, . . чтобы конкретный человек, для которого мы создаем, смотрелся в наших интерьерах . . наиболее естественно и ощущал гармонию между внутренним состоянием и окружающим . . пространством. Это касается цветовых решений, тактильных предпочтений, композиции. . . В этом смысле, данная работа весьма точно отражает эстетические и даже этические . . установки владельцев. Этот интерьер создан для состоятельных, состоявшихся в жизни . . зрелых людей. . . Одной из фишек квартиры является решение по кухонной мебели. В ее решении . . отражены современные интерьерные тенденции. Кухонный ансамбль состоит из трех . . частей: острова, глянцевой вытяжки и скрытой стеновой части. Широкий остров с . . вытяжкой условно отделяют зону кухни-столовой от зоны гостиной. Занимаясь готовкой . . за таким островом удобно общаться с отдыхающими членами семьи или готовить вместе. . . Стеновая часть со встроенной техникой и столешницей легко скрывается за распашными . . глянцевыми дверцами. Дверцы окрашены в цвет стены и в закрытом виде смотрятся очень . . целостно и парадно в объединенном пространстве всего второго этажа. . . Все встроенные элементы установлены без рамок, межкомнатные двери без наличников, . . мебельные дверцы без ручек – все сделано для того, чтобы ничего не отвлекало от . . главных героев интерьера –воздуха и света. Осознанный отказ от декора в пользу . . «видимой» простоты, чистоты линий, лаконичности форм рассчитан на то, чтобы как . . можно дольше этот интерьер не надоедал своим владельцам, чтобы он существовал как- . . бы вне времени, вне сиюминутных изменений интерьерной моды. . . Основные бренды: . . Светильники: XAL, Flos, Natuzzi . . Мебель: Deseere, Saba, San Giacomo . . Двери: BluInterni . . Кухня: Gatto . . Авторы: Дмитрий и Злата Мудрогеленко (Mudrogelenko design) . . Общая площадь – 200 кв м . . Фото: Иван Сорокин
49 фотографий

















































