
Дизайнеры интерьера
0
Проект: Квартира с солнечным настроением
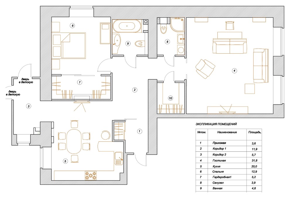
План квартиры после перепланировки.
Другие фотографии в проекте
Вопросы к фото 0
Задайте вопрос
Вам ответят эксперты. Пришлем уведомление, когда вам ответят

Дизайнеры интерьера
0
План квартиры после перепланировки.
Другие фотографии в проекте
Вам ответят эксперты. Пришлем уведомление, когда вам ответят