Проект: Квартира с солнечным настроением
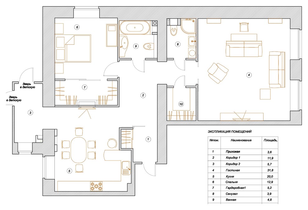
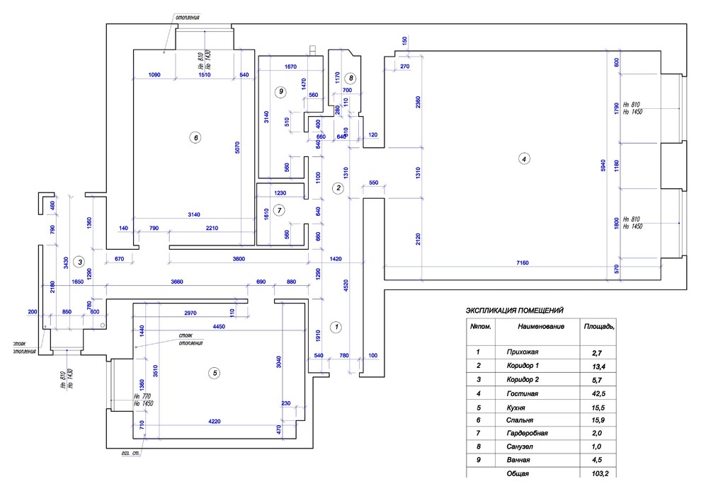
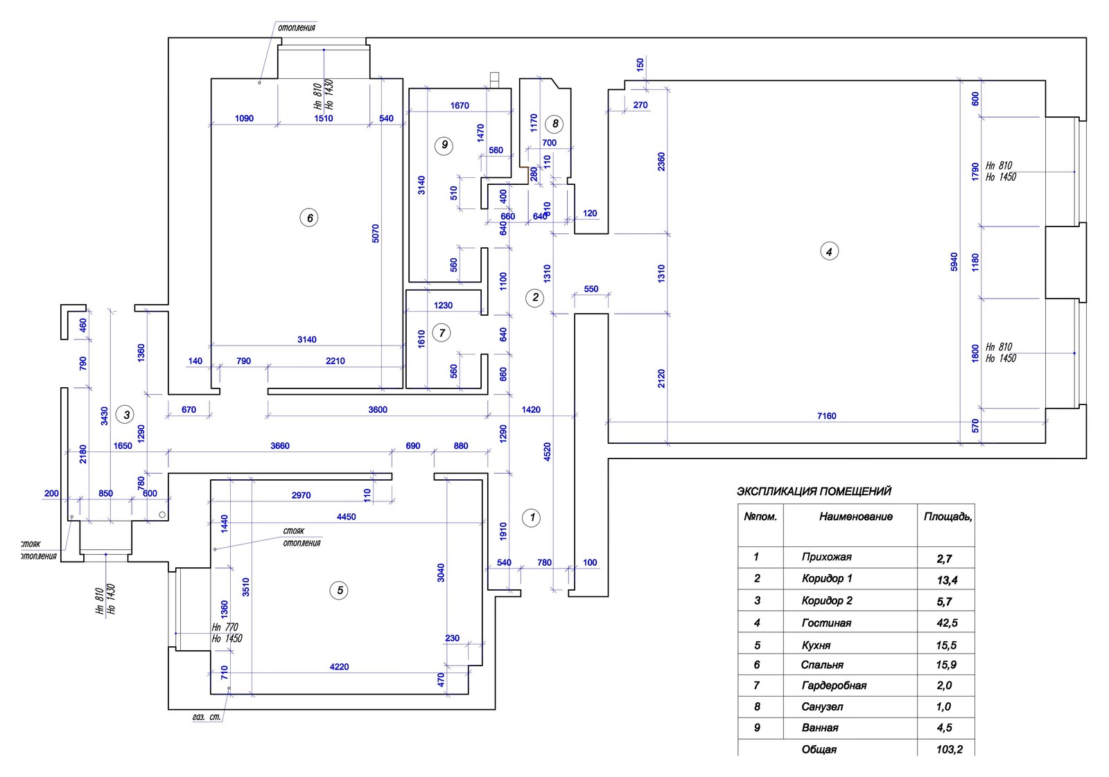
Квартира для молодой семейной пары с двумя малышами. Проект в стадии реализации. Основные пожелания заказчиков включали в себя: увеличение площади кухни, устройство гардеробной при спальне, устройство второго санузла с душевой, функциональное отделение входной зоны. По стилю и цвету пожелания хозяйки квартиры, которая в основном занималась квартирой, были таковы: современный стиль, использование ярких жизнерадостных цветов в отделке, и непременно, желтого цвета.
Год реализации: 2014
Стоимость проектирования: 135 000 ₽
г. Самара
12 фотографий













