
Проектирование и строительство
0
Проект "Боровск 6"
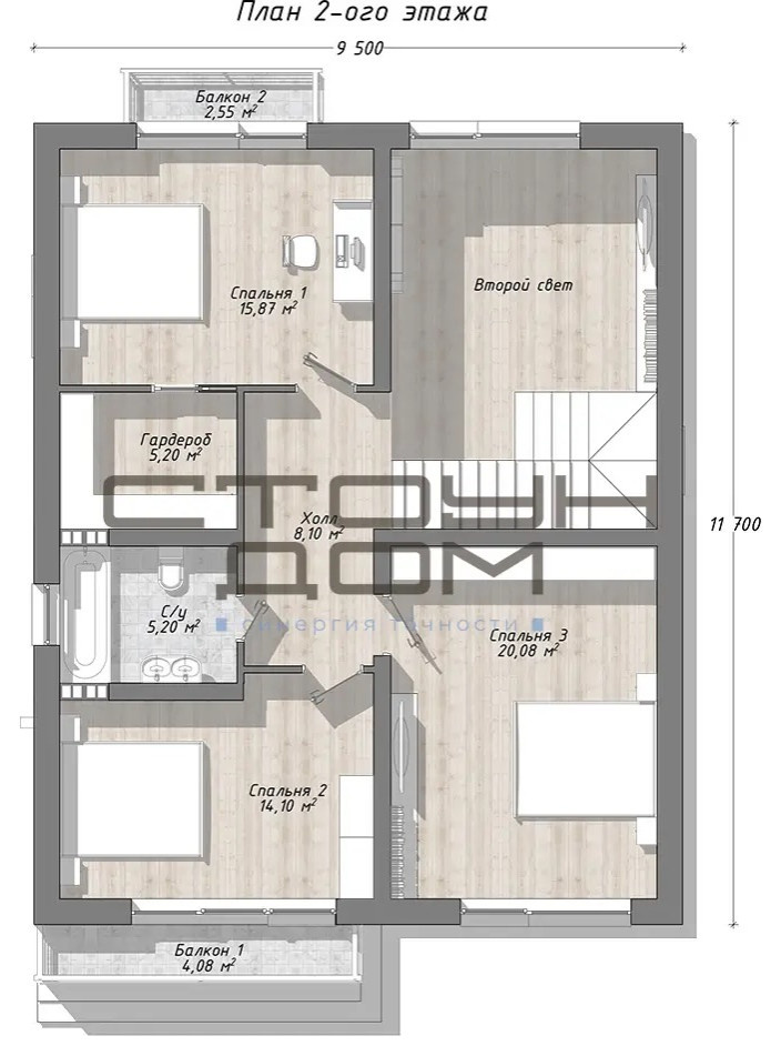
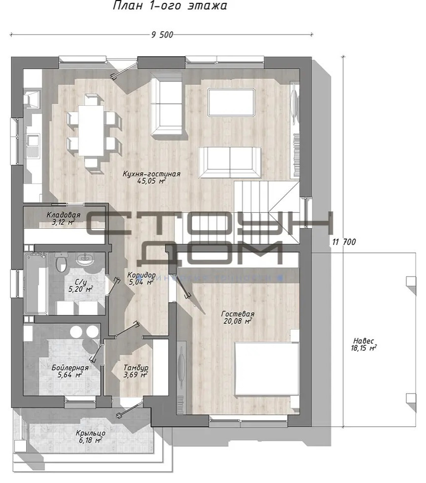
Проект дома "Боровск 6" из керамических/газобетонных блоков. . . Площадь - 187 м² . Спальни - 3 . Санузлы - 2 . Габариты дома - 11 x 9 м
Другие фотографии в проекте
Вопросы к фото 0
Задайте вопрос
Вам ответят эксперты. Пришлем уведомление, когда вам ответят
Похожие фотографии

Проект дома с мансардой 9х9 м S104м2 F-14660
Ерванд Григорян

Проект дома с мансардой 11х12 м S108м2 F-14759
Ерванд Григорян

Проект дома с мансардой 7х10 м S86м2 F-15272
Ерванд Григорян

Проект двухэтажного дома 10х16 м S184м2 F-16298
Ерванд Григорян

Проект дома с мансардой 10х12 м S161м2 F-17387
Ерванд Григорян

Проект дома с мансардой 8х13 м S127м2 F-17810
Ерванд Григорян

Проект дома с мансардой 12х13 м S176м2 F-17729
Ерванд Григорян

Шале
Свежая идея для дизайна: двухэтажный, разноцветный частный загородный дом среднего размера в классическом стиле с комбинированной облицовкой, двускатной крышей, черепичной крышей и коричневой крышей - отличное фото интерьера
Алексей Дарьин

Шале
Стильный дизайн: двухэтажный, разноцветный частный загородный дом среднего размера в классическом стиле с комбинированной облицовкой, двускатной крышей, черепичной крышей и коричневой крышей - последний тренд
Алексей Дарьин

Кирпичный 2-этажный дом 9.22 х 9.22, общ. S - 121 кв.м
Стильный дизайн: двухэтажный, кирпичный, желтый частный загородный дом среднего размера в классическом стиле с двускатной крышей и металлической крышей - последний тренд
Стройдом 34

Дом по типовому проекту площадью 107 кв.м.
Стильный дизайн: маленький, двухэтажный, синий частный загородный дом в классическом стиле с комбинированной облицовкой, двускатной крышей и металлической крышей для на участке и в саду - последний тренд
21 ВЕК

Дом по типовому проекту площадью 107 кв.м.
Идея дизайна: маленький, двухэтажный, синий частный загородный дом в классическом стиле с комбинированной облицовкой, двускатной крышей и металлической крышей для на участке и в саду
21 ВЕК




