
Архитекторы
5
·
10 отзывов
ОТТЕНКИ БЕЛОГО / TINTS OF WHITE
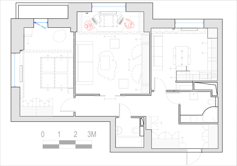
«Белый — самый чудесный цвет, потому что в нем можно увидеть все цвета. Белизна белого никогда не бывает просто белой; она почти всегда находится под воздействием света, который меняется: неба, облаков, солнца и луны.» . Ричард Мейер . . При проектировании интерьера была поставлена задача: разместить в одной квартире отдельные кухню и гостиную, кабинет с двумя рабочими местами, вместительную и удобную систему хранения вещей, сохранив при этом максимум свободного пространства и дух чувственного минимализма. Несмотря на отказ от перепланировки в кухне удалось разместить не только обеденную зону на 4-6 человек с диваном, но и незаметную благодаря шторам-перегородкам мини-кладовую, а в гостиной спланировать мини-кабинет для двоих. Шторы не только выполняют функцию раздвижных перегородок, отделяя кабинет от гостиной, позволяя трансформировать спальню, но и привносят в интерьер множество переливов оттенков, а также подчеркивают высокие потолки. В квартире принципиально отсутствуют люстры: в санузлах основным освещением являются светящиеся потолки, дающие равномерное и комфортное для глаз освещение, а в остальных помещениях в потолок встроены минималистичные LED светильники. Лаконично организовано и хранение вещей в незаметных встроенных шкафах в прихожей, спроектированных по эскизам архитектора таким образом, что используется каждый кубический сантиметр пространства. «Незаметный», но очень вместительный шкаф есть и в спальне: он сочетает в себе комод и шифоньер. Кровать оснащена выдвижными ящиками. А в гостиной белая глянцевая стена оборачивается библиотекой с домашним кинотеатром! В интерьере есть и маленькие секреты. Например, изголовье кровати из подушек полностью разборное, т.е. подушки двух фактур можно менять местами, снимать и использовать по прямому назначению, а со временем заменять на другие по расцветке. Другие секреты — лифты для одежды внутри шкафов, скрытые крючки в прихожей, которые можно открывать в случае необходимости; разноцветные подсветки полностью преображающие интерьер из светлого и воздушного пространства в экстравагантное и яркое.
Другие фотографии в проекте
Вопросы к фото 0
Задайте вопрос
Вам ответят эксперты. Пришлем уведомление, когда вам ответят
Похожие фотографии

Небольшая уютная квартира на набережной Марка Шагала в Москве
Елена Бердникова

ЖК Серебряный Бор
Станислав Бороздинский

Архитектура спокойствия
Татьяна Черкашина

Soft Minimalism: Концепты-интерьеров для квартиры в ЖК Шагал
Дизайн интерьера | LH STUDIO

Soft Minimalism: Концепты-интерьеров для квартиры в ЖК Шагал
Дизайн интерьера | LH STUDIO

Квартира с китайскими мотивами
Александра Карасева

Квартира 25м2 под сдачу в аренду в бывшем доходном доме
Бюро Никиты Максимова

Экзотическая квартира в старом фонде
Андрей Кирнов

2026_Проект Анны Сотиковой White Studio
Дмитрий Шибаев

Парижские апартаменты в московской «сталинке»
Марина Ярмаркина/ Amalgama interior

ЖК "Docklands"
Ирина Косарева
Бюргерский уют
Марсель Искандаров




