
Проектирование и строительство
0
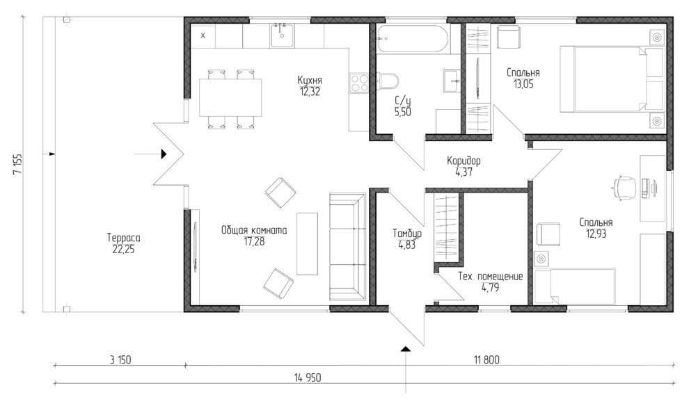
Одноэтажный загородный дом 75 кв.м.
Милый одноэтажный дом с очень удобной планировкой. Не смотря на скромные габариты проекта 75 кв.м., дом можно рассматривать как дачный вариант, так и для постоянного проживания. Он идеально подходит для тех, кто ценит функциональное расположение комнат на одном этаже. Комнаты спланированы максимально просторными за счет маленьких технических и коммуникационных помещений. Для визуального увеличения площади жилых помещений применяются прием единого и полностью открытого пространства, большие площади остекления перед террасой, открытое пространство над гостиной. В весенние, летние и осенние вечера можно проводить время на крытой террасе с видом на сад. .
Другие фотографии в проекте
Вопросы к фото 1
Задайте вопрос
Вам ответят эксперты. Пришлем уведомление, когда вам ответят
Похожие фотографии

Коттедж для г. Южно-Сахалинск 100 метров
Андрей Калинчук

Коттедж в стиле «Шале», в г. Альметьевск
Андрей Калинчук

Проект современного дома виллы в стиле Райта на склоне в лесу у воды по принципам Васту — 1560м2
Андрей Иевлев
Эскизный проект: Современный загородный дом в лесу + Интерьер
Михаил Конев
Вилла в итальянском стиле
V6 Group
Частный жилой дом, "КРАСНЫЙ ЯР", 2023 г.
Илья Овчинников
Усадьба в Златоусте
Ольга Вавилова
Усадьба в Златоусте
Ольга Вавилова
Усадьба в Златоусте
Ольга Вавилова
Усадьба в Златоусте
Ольга Вавилова
Усадьба в Златоусте
Ольга Вавилова



ми шарин
7 л.
здравствуйте! интересует