
Проектирование и строительство
0
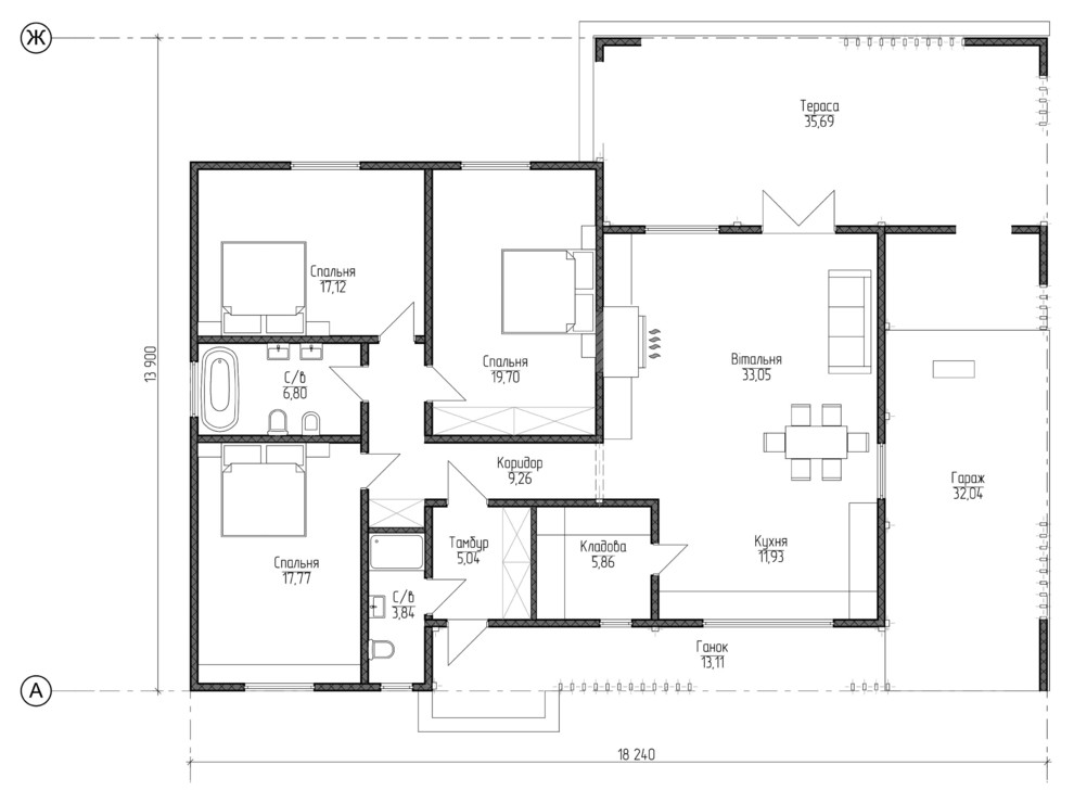
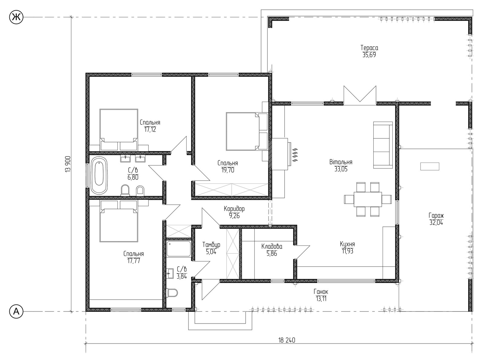
Одноэтажный дом в стиле минимализм – 130,37 кв.м.
Невероятно современный и функциональный проект, выполнен в стиле минимализм. Он представляет собой одноэтажный энергоэффективный дом общей площадью 130,37 кв.м. Это прекрасный вариант для семьи из 4 человек. Простая форма здания, плоская кровля, популярность которой вполне оправдана: это отличная возможность эффективно использовать верхнюю часть дома. Панорамные окна придают особенную изюминку проекту, визуально добавляя дополнительный свет и простор. . Ему характерна достаточно комфортная планировка: три уютные спальни, просторная кухня-столовая с выходом на террасу, два санузла и несколько техпомещений. Особенное удобство – к дому примыкает навес для двух автомобилей. . Технико-экономические показатели: . Общая площадь - 130,37 кв.м . Жилая площадь – 87,64 кв.м. . Площадь застройки – 240 кв.м. . Площадь летних помещений - 80,9 кв.м.
Другие фотографии в проекте
Вопросы к фото 0
Задайте вопрос
Вам ответят эксперты. Пришлем уведомление, когда вам ответят

