
Проектирование и строительство
0
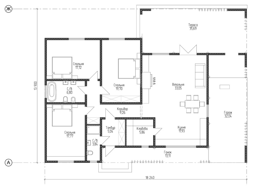
Одноэтажный дом в стиле минимализм – 130,37 кв.м.
Невероятно современный и функциональный проект, выполнен в стиле минимализм. Он представляет собой одноэтажный энергоэффективный дом общей площадью 130,37 кв.м. Это прекрасный вариант для семьи из 4 человек. Простая форма здания, плоская кровля, популярность которой вполне оправдана: это отличная возможность эффективно использовать верхнюю часть дома. Панорамные окна придают особенную изюминку проекту, визуально добавляя дополнительный свет и простор. . Ему характерна достаточно комфортная планировка: три уютные спальни, просторная кухня-столовая с выходом на террасу, два санузла и несколько техпомещений. Особенное удобство – к дому примыкает навес для двух автомобилей. . Технико-экономические показатели: . Общая площадь - 130,37 кв.м . Жилая площадь – 87,64 кв.м. . Площадь застройки – 240 кв.м. . Площадь летних помещений - 80,9 кв.м.
Другие фотографии в проекте
Вопросы к фото 0
Задайте вопрос
Вам ответят эксперты. Пришлем уведомление, когда вам ответят
Похожие фотографии

Коттедж для г. Южно-Сахалинск 100 метров
Андрей Калинчук

Коттедж в стиле «Шале», в г. Альметьевск
Андрей Калинчук

Проект современного дома виллы в стиле Райта на склоне в лесу у воды по принципам Васту — 1560м2
Андрей Иевлев
Эскизный проект: Современный загородный дом в лесу + Интерьер
Михаил Конев
Вилла в итальянском стиле
V6 Group
Частный жилой дом, "КРАСНЫЙ ЯР", 2023 г.
Илья Овчинников
Усадьба в Златоусте
Ольга Вавилова
Усадьба в Златоусте
Ольга Вавилова
Усадьба в Златоусте
Ольга Вавилова
Усадьба в Златоусте
Ольга Вавилова
Усадьба в Златоусте
Ольга Вавилова


