
Дизайнеры интерьера
5
·
10 отзывов
MN_ESTET
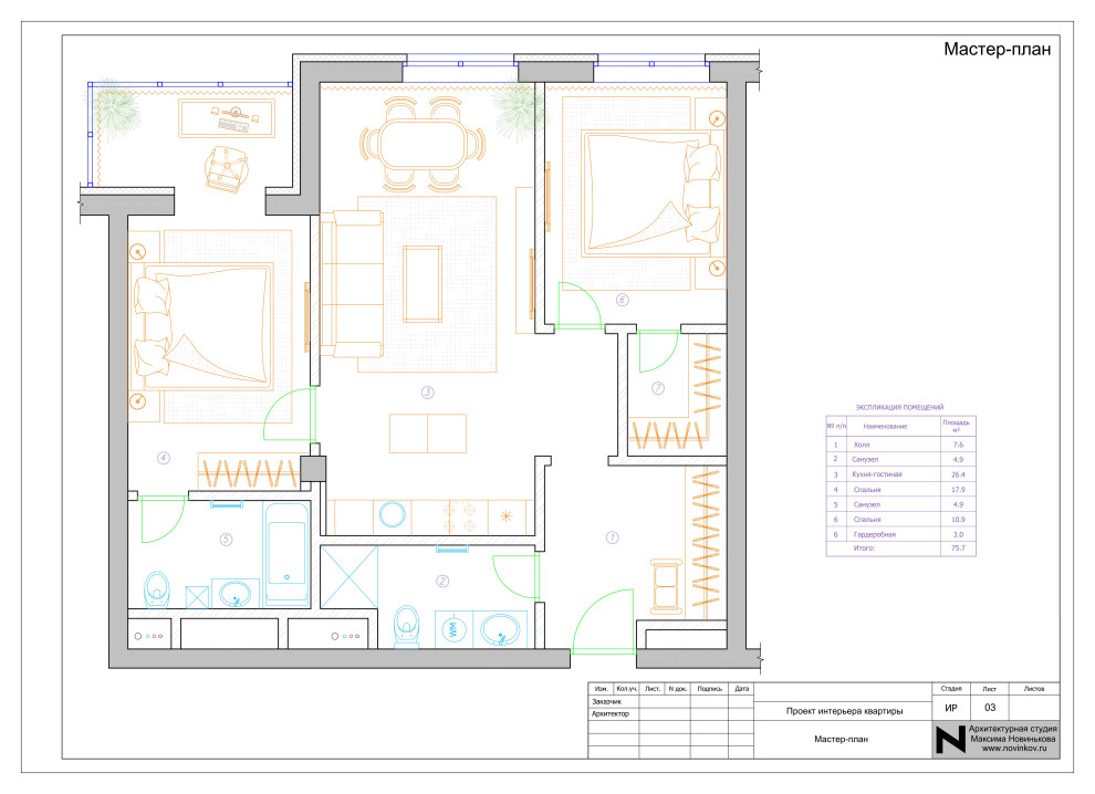
Главной задачей при работе над планировкой и дизайном этой квартиры было перепланировать изначально двухкомнатную квартиру в трехкомнатную, разместив в ней все необходимое для удобной жизни небольшой семьи. В результате удалось уместить в эту площадь две спальни, гостиную- кухню, два санузла и гардеробную.
Другие фотографии в проекте
Вопросы к фото 0
Задайте вопрос
Вам ответят эксперты. Пришлем уведомление, когда вам ответят




