
Дизайнеры интерьера
5
·
10 отзывов
MN_ESTET
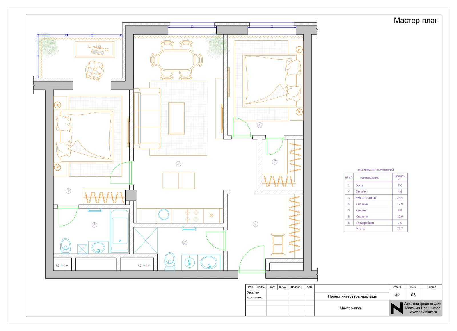
Главной задачей при работе над планировкой и дизайном этой квартиры было перепланировать изначально двухкомнатную квартиру в трехкомнатную, разместив в ней все необходимое для удобной жизни небольшой семьи. В результате удалось уместить в эту площадь две спальни, гостиную- кухню, два санузла и гардеробную.
Другие фотографии в проекте
Вопросы к фото 0
Задайте вопрос
Вам ответят эксперты. Пришлем уведомление, когда вам ответят
Похожие фотографии

ЖК "Wellton towers"
Тип: квартира для сдачи в аренду . Площадь: 50 м2 . Стиль: современная классика
ЛАНА NO DRAMA

ЖК «Новые Черемушки», французская классика, 100 кв.м.
Источник вдохновения для домашнего уюта: узкая прихожая среднего размера: освещение в стиле неоклассика (современная классика) с белыми стенами, полом из керамогранита, одностворчатой входной дверью, серой входной дверью и белым полом
Студия современного дизайна интерьера Royal Fusion

ЖК «Новые Черемушки», французская классика, 100 кв.м.
Идея дизайна: узкая прихожая среднего размера: освещение в стиле неоклассика (современная классика) с белыми стенами, полом из керамогранита, одностворчатой входной дверью, серой входной дверью и белым полом
Студия современного дизайна интерьера Royal Fusion

ЖК «Новые Черемушки», французская классика, 100 кв.м.
Свежая идея для дизайна: узкая прихожая среднего размера: освещение в стиле неоклассика (современная классика) с белыми стенами, полом из керамогранита, одностворчатой входной дверью, серой входной дверью и белым полом - отличное фото интерьера
Студия современного дизайна интерьера Royal Fusion

ЖК «Новые Черемушки», французская классика, 100 кв.м.
На фото: узкая прихожая среднего размера: освещение в стиле неоклассика (современная классика) с белыми стенами, полом из керамогранита, одностворчатой входной дверью, серой входной дверью и белым полом с
Студия современного дизайна интерьера Royal Fusion

ЖК «Новые Черемушки», французская классика, 100 кв.м.
Стильный дизайн: узкая прихожая среднего размера: освещение в стиле неоклассика (современная классика) с белыми стенами, полом из керамогранита, одностворчатой входной дверью, серой входной дверью и белым полом - последний тренд
Студия современного дизайна интерьера Royal Fusion

A+marshmallow
На фото: прихожая в стиле неоклассика (современная классика) с белыми стенами, полом из керамической плитки и белым полом
Павлова Анастасия/ A+design

ЖК Вест Гарден
Идея дизайна: вестибюль среднего размера: освещение в стиле неоклассика (современная классика) с белыми стенами, полом из керамогранита, одностворчатой входной дверью, белой входной дверью, белым полом, многоуровневым потолком и деревянными стенами
Наталья Озерова

ЖК Вест Гарден
Свежая идея для дизайна: вестибюль среднего размера: освещение в стиле неоклассика (современная классика) с белыми стенами, полом из керамогранита, одностворчатой входной дверью, белой входной дверью, белым полом, многоуровневым потолком и деревянными стенами - отличное фото интерьера
Наталья Озерова

ЖК Вест Гарден
На фото: вестибюль среднего размера: освещение в стиле неоклассика (современная классика) с белыми стенами, полом из керамогранита, одностворчатой входной дверью, белой входной дверью, белым полом, многоуровневым потолком и деревянными стенами с
Наталья Озерова

ЖК Вест Гарден
Идея дизайна: вестибюль среднего размера: освещение в стиле неоклассика (современная классика) с белыми стенами, полом из керамогранита, одностворчатой входной дверью, белой входной дверью, белым полом, многоуровневым потолком и деревянными стенами
Наталья Озерова

ЖК Вест Гарден
На фото: вестибюль среднего размера: освещение в стиле неоклассика (современная классика) с белыми стенами, полом из керамогранита, одностворчатой входной дверью, белой входной дверью, белым полом, многоуровневым потолком и деревянными стенами с
Наталья Озерова




