
Другие фотографии в проекте Маленькая Квартира для Молодой Девушки
Вам ответят эксперты. Пришлем уведомление, когда вам ответят
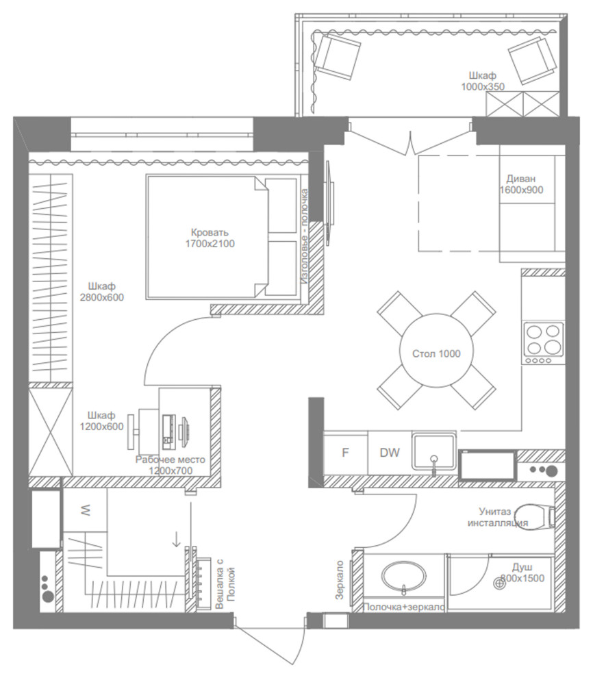
Планировка Итоговая. В итогке было принято решение остановиться на варианте с увеличенным санузлом, изолированной спальней и выделенной рабочей зоной в спальне