
Дизайнеры интерьера
5
·
1 отзыв
Лучшие планировки
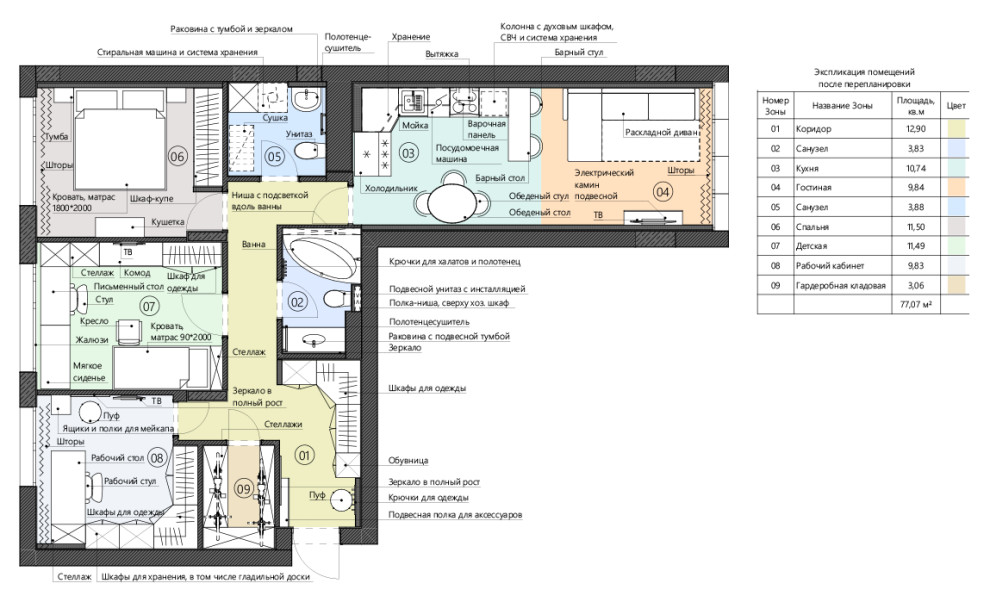
Планировка трехкомнатной квартиры с прихожей, гардеробной, рабочим кабинетом, детской, спальни, кухни, гостиной и двумя санузлами. заказчица просила сделать много угловых шкафов для хранения, кладовую гардеробную для хранения велосипедов и крупных предметов и вещей при входе в квартиру, а также рабочий кабинет с хранением одежды, кухню с барным столом и гостиную с камином.
Другие фотографии в проекте
Вопросы к фото 0
Задайте вопрос
Вам ответят эксперты. Пришлем уведомление, когда вам ответят




