
Дизайнеры интерьера
5
·
10 отзывов
Лучшие планировки
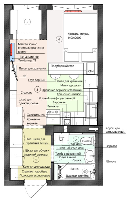
Планировка квартиры-студии. Предусмотрены все функциональные зоны: прихожая, полноценный санузел, просторная кухня с видовым расположением барного стола на город и горы, спрятанная от первого взгляда спальное место с двуспальной кроватью, а также зона отдыха с возможностью трансформации мягкого матраса в зону гостиной напротив ТВ, много систем хранения
Другие фотографии в проекте
Вопросы к фото 0
Задайте вопрос
Вам ответят эксперты. Пришлем уведомление, когда вам ответят




