
Дизайнеры интерьера
5
·
1 отзыв
Лучшие планировки
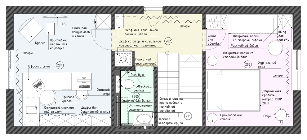
Планировка двухэтажного дуплекса. На днном этаже планировались помещения для рабочего кабинета и гостевой спальни (для 4 человек) с видом на горы и зоны постирочной
Другие фотографии в проекте
Вопросы к фото 0
Задайте вопрос
Вам ответят эксперты. Пришлем уведомление, когда вам ответят




