
Дизайнеры интерьера
5
·
1 отзыв
Лучшие планировки
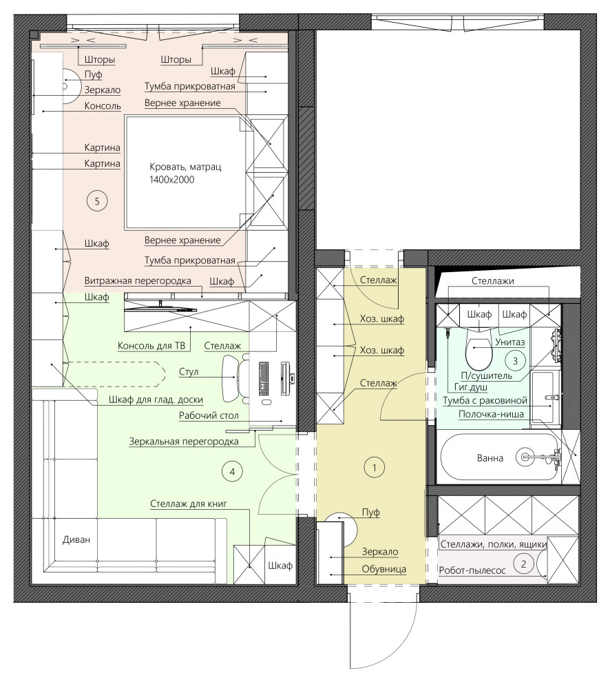
Планировочные решения разрабатываются в зависимости от пожелания заказчика. В данном случае, необходимо было разделить пространство одной комнаты на несколько зон - предусмотреть отдельную зону спальни и гостиной, зону мейкапа, рабочую зону, а также гардеробную и место для прихожей и хранения вещей
Другие фотографии в проекте
Вопросы к фото 0
Задайте вопрос
Вам ответят эксперты. Пришлем уведомление, когда вам ответят




