
Архитекторы
5
·
5 отзывов
Лофт на Русаковской набережной
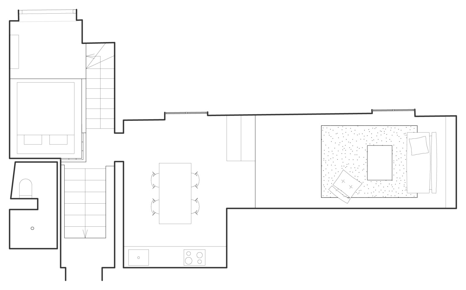
Квартира располагается в бывшей мастерской художника — единственной части дома, которая прежде считалась непригодной для жизни. Дело в том, что жилое пространство квартиры заглу-блено внутрь на 3 метра. Естественного света сюда попадает не так много, зато есть высокие потолки [4.2 м] и уникальное арочное окно. . . Нам необходимо было решить три основные задачи: превратить нежилое пространство . в жилое, вместить все необходимые функции, и сделать это максимально бюджетно. . . Пространство мы разделили не на комнаты, . а на зоны, каждая со своими пропорциями . и характером — прихожая с двумя лестницами, гостиная на длинном подиуме, высокая и откры-тая кухня-столовая, компактный санузел, четы-рехметровая душевая, просторная гардеробная, . над которой расположилась спальня-капсула. Получившееся многоуровневое пространство . со свободной планировкой создает атмосферу индивидуального жилого дома. . . Вход в квартиру начинается с лестницы, которая спускается на нулевой уровень. Слева от входа располагаются технический блок с санузлом, душевой и гардеробной, справа — общее про-странство кухни и гостиной, прямо напротив вхо-да — подъем в спальню. Свет в прихожую попа-дает через полупрозрачную стену из стеклянно-го профиля, за которой находится спальня. Вечером сквозь матовое стекло сюда попадают закатные лучи солнца. . . Арочное окно — главный элемент интерьера гостиной. Раньше посмотреть в него можно было лишь в двух точках — там, где начинается и где заканчивается арка. Для того, чтобы окно стало работать полноценно, мы подняли уровень пола гостиной на 1.2 метра, утеплили окно и установи-ли линейную подсветку. Сейчас вид из окна мож-но наблюдать на всем пути вдоль внешней стены гостиной. Кроме того, нам удалось выиграть до-полнительное место хранения под полом глуби-ной более 5 метров. На границе между гостиной и кухней повесили механи-ческий экран прое-ктора, который изолирует зоны друг от друга. . . Помещения санузла и гардеробной находятся . на нулевом уровне под спальней и лестницей. Низкая высота потолка [2.3 м] в этой зоне ком-пенсируется соседством с высокой душевой . [4.2 м]. Это абсолютно темная комната, покрытая черной мозайкой. . . Практически вся мебель была сделана под за- . каз по нашим эскизам: от деревянного подиума . в гостиной до светильников из металлического профиля. Мы сознательно отказались от готовых изделий, в целях экономии средств и создании целостного стилистического решения. Все архи-тектурные решения выполнены в духе индустри-ального минимализма: неровные стены, откры-тая проводка и коммуникации, мебель из нату-ральных материалов — дерево, бетон, металл. .
Другие фотографии в проекте
Вопросы к фото 0
Задайте вопрос
Вам ответят эксперты. Пришлем уведомление, когда вам ответят
$$, В стиле лофт, Гостиная, Индустриальный, Маленький, Москва, Совмещённая гостиная и кухня, арка, лофт, многоуровневое пространство
Похожие фотографии

Геометрический двухуровневый лофт
Источник вдохновения для домашнего уюта: маленькая парадная, двухуровневая, объединенная гостиная комната в стиле лофт с серыми стенами, паркетным полом среднего тона, телевизором на стене и бежевым полом для на участке и в саду
Маргарита Иванова / АрхиТочка

Геометрический двухуровневый лофт
Пример оригинального дизайна: маленькая парадная, двухуровневая, объединенная гостиная комната в стиле лофт с серыми стенами, паркетным полом среднего тона, телевизором на стене и бежевым полом для на участке и в саду
Маргарита Иванова / АрхиТочка

Геометрический двухуровневый лофт
На фото: маленькая парадная, двухуровневая, объединенная гостиная комната в стиле лофт с серыми стенами, паркетным полом среднего тона, телевизором на стене и бежевым полом для на участке и в саду
Маргарита Иванова / АрхиТочка

Геометрический двухуровневый лофт
На фото: маленькая парадная, двухуровневая, объединенная гостиная комната в стиле лофт с серыми стенами, паркетным полом среднего тона, телевизором на стене и бежевым полом для на участке и в саду с
Маргарита Иванова / АрхиТочка

Кухня-гостиная для молодого креативного человека
Источник вдохновения для домашнего уюта: маленькая открытая, объединенная гостиная комната в стиле лофт с красными стенами, полом из ламината, горизонтальным камином, фасадом камина из металла, телевизором на стене и бежевым полом для на участке и в саду
Алина Насонова

Кухня-гостиная для молодого креативного человека
Идея дизайна: маленькая открытая, объединенная гостиная комната в стиле лофт с красными стенами, полом из ламината, горизонтальным камином, фасадом камина из металла, телевизором на стене и бежевым полом для на участке и в саду
Алина Насонова

Кухня-гостиная для молодого креативного человека
На фото: маленькая открытая, объединенная гостиная комната в стиле лофт с красными стенами, полом из ламината, горизонтальным камином, фасадом камина из металла, телевизором на стене и бежевым полом для на участке и в саду с
Алина Насонова

Кухня-гостиная для молодого креативного человека
На фото: маленькая открытая, объединенная гостиная комната в стиле лофт с красными стенами, полом из ламината, горизонтальным камином, фасадом камина из металла, телевизором на стене и бежевым полом для на участке и в саду
Алина Насонова

Let's ROCK!
На фото: маленькая изолированная, объединенная гостиная комната в стиле лофт с домашним баром, разноцветными стенами, полом из ламината, телевизором на стене и бежевым полом для на участке и в саду
Ксения Розанцева

Let's ROCK!
Источник вдохновения для домашнего уюта: маленькая изолированная, объединенная гостиная комната в стиле лофт с домашним баром, разноцветными стенами, полом из ламината, телевизором на стене и бежевым полом для на участке и в саду
Ксения Розанцева

Let's ROCK!
Стильный дизайн: маленькая изолированная, объединенная гостиная комната в стиле лофт с домашним баром, разноцветными стенами, полом из ламината, телевизором на стене и бежевым полом для на участке и в саду - последний тренд
Ксения Розанцева

Let's ROCK!
Свежая идея для дизайна: маленькая изолированная, объединенная гостиная комната в стиле лофт с домашним баром, разноцветными стенами, полом из ламината, телевизором на стене и бежевым полом для на участке и в саду - отличное фото интерьера
Ксения Розанцева




