
Дизайнеры интерьера
0
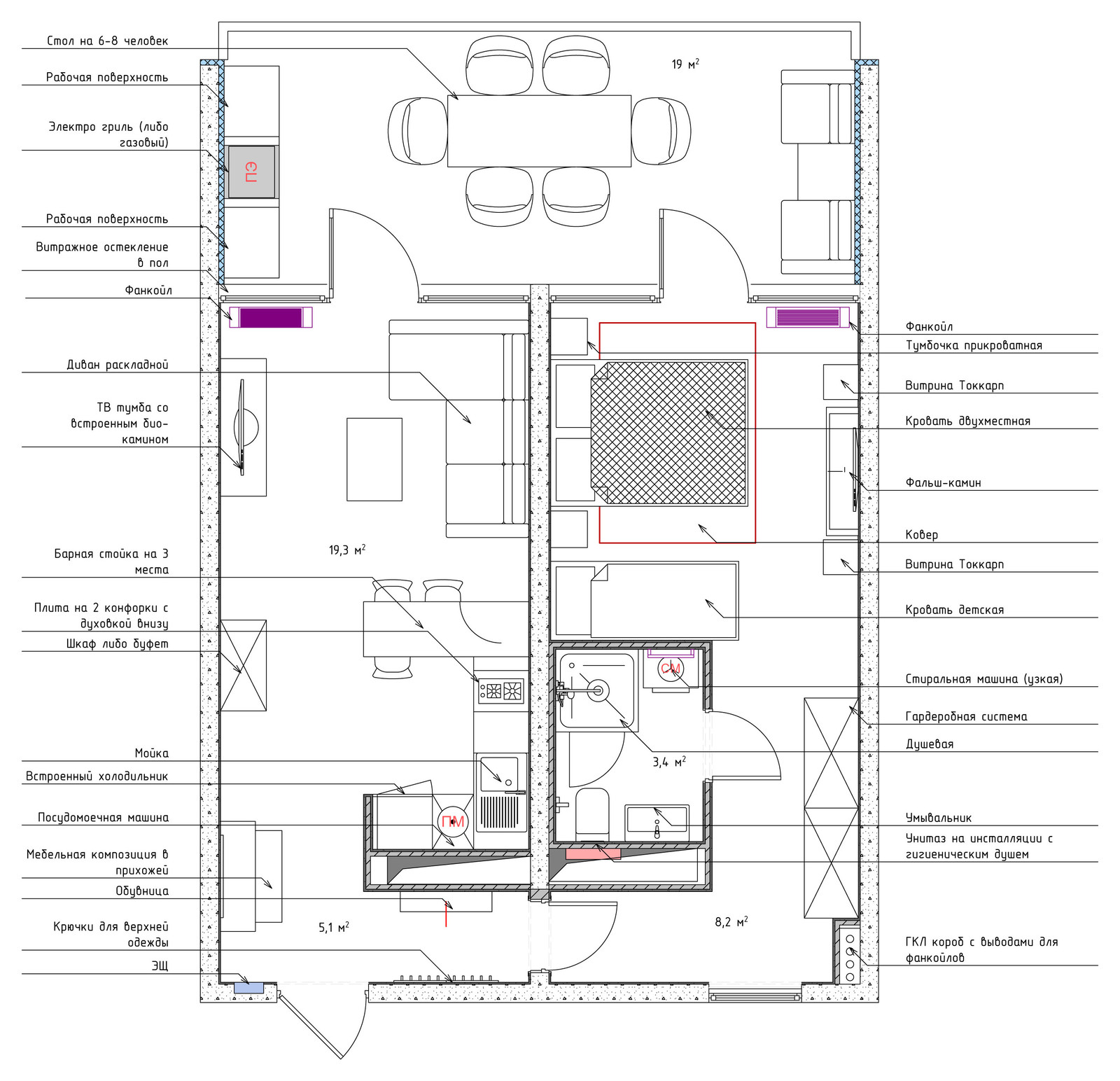
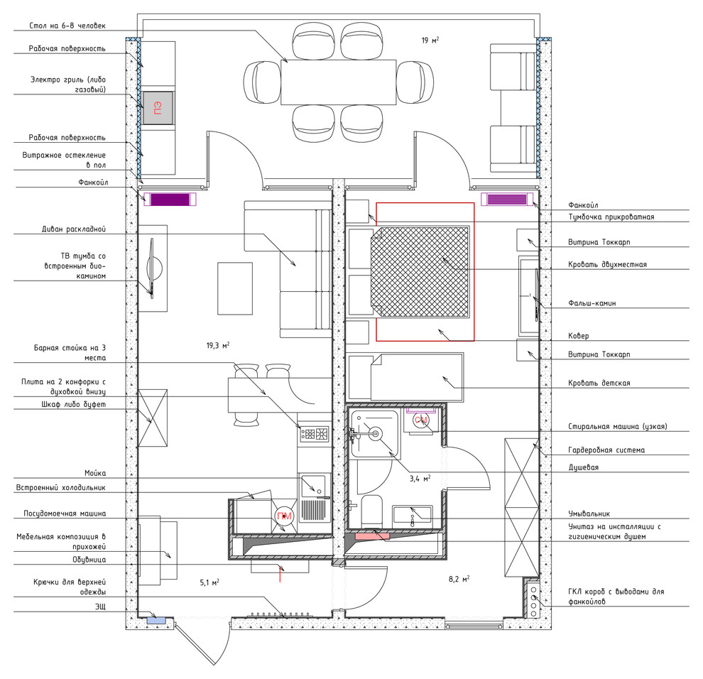
Квартира в Красной поляне №2
Интерьер, по желанию клиента, должен был стать своеобразным местом отдыха после катания на лыжах и сноуборде, где приятно провести вечерние часы за бокалом глинтвейна в ожидании заката солнца - из квартиры открывается невероятный вид на горы, что тоже является неотъемлемой частью общей картины. . Что можно сказать об этой квартире: здесь перед нами в первую очередь стояла задача впустить внутрь окружающие данный жилой дом горы, сделать интерьер единым целым с окружающим пейзажем. . Еще одним очень важным решением стало устройство балкона-террасы. Изначально его планировалось забрать для расширения гостиной и спальни, но в итоге мы отказались от этой идеи и занялись его основательной реконструкцией: мы провели туда освещение и электричество, заменили старое и разбитое напольное покрытие на массивную доску из лиственницы, перекрасили стены, а потолок отделали также деревом. Таким образом, после установки мебели, у нас появилось огромное пространство для приема гостей или же утреннего чаепития на открытом воздухе. . Дизайнер - Нода Максим . Фотограф - Елена Магадеева
Другие фотографии в проекте
Вопросы к фото 0
Задайте вопрос
Вам ответят эксперты. Пришлем уведомление, когда вам ответят




