
Проектирование и строительство
5
·
10 отзывов
кв. Планы необходимые для работы
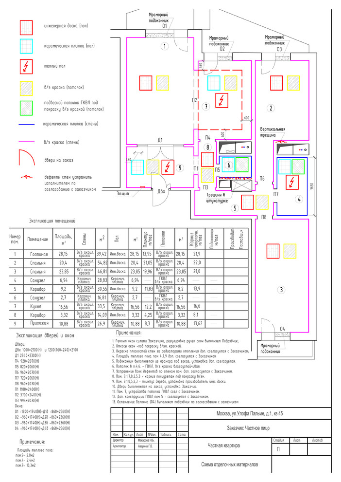
План схема отделочных материалов поможет заказчику определиться с видом и местом применяемых отделочных материалов, даст возможность составить ведомость отделочных работ с точными площадями, а строители смогут правильно подготовить базовые поверхности стен и откорректировать смету.
Другие фотографии в проекте
Вопросы к фото 0
Задайте вопрос
Вам ответят эксперты. Пришлем уведомление, когда вам ответят




