
Проектирование и строительство
5
·
10 отзывов
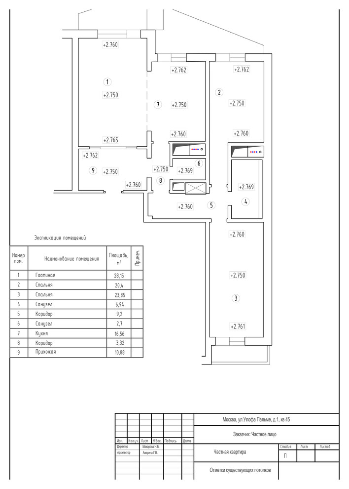
кв. Планы необходимые для работы
Планы отметок существующего пола и потолка необходимы после демонтажа старых отделочных материалов квартиры например старого паркета, в которой уже начинается ремонт, конечно они необходимы строителям для определения перепада уровня поверхности полов, чтобы в последствии идеально выравнивать ваш пол с помощью устройства стяжки полов, служащей основой для нового паркета.
Другие фотографии в проекте
Вопросы к фото 0
Задайте вопрос
Вам ответят эксперты. Пришлем уведомление, когда вам ответят




