
Проектирование и строительство
5
·
10 отзывов
кв. Планы необходимые для работы
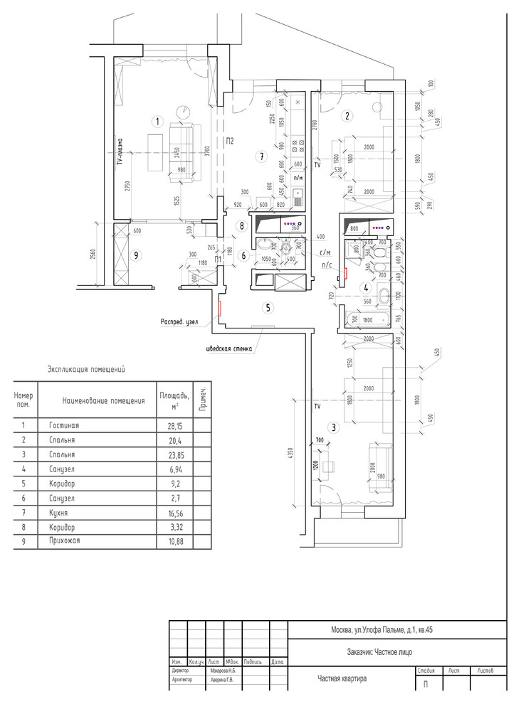
План расстановки мебели и оборудования один из самых необходимых планов, от него зависят важные планы по электрике и освещению. На момент планирования расстановки мебели в квартире может быть рассмотрено много различных вариантов, только нельзя забывать об основных требованиях к нормам расположению мебели и оборудования.
Другие фотографии в проекте
Вопросы к фото 0
Задайте вопрос
Вам ответят эксперты. Пришлем уведомление, когда вам ответят




