
Проектирование и строительство
5
·
10 отзывов
кв. Планы необходимые для работы
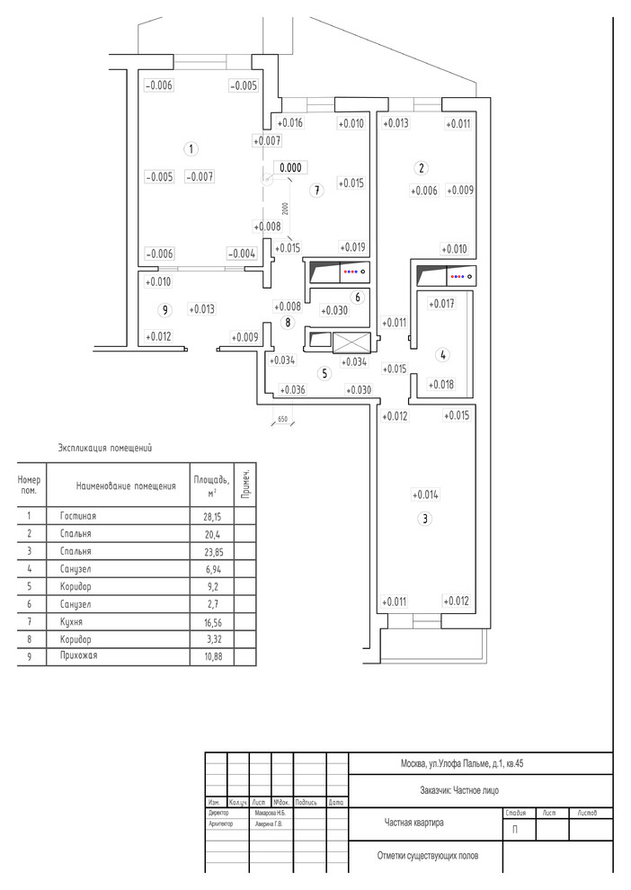
План отметок существующего пола необходим после демонтажа старых отделочных материалов квартиры например старого паркета, в которой уже начинается ремонт, конечно это необходимо строителям для определения перепада уровня поверхности полов, чтобы в последствии идеально выравнивать ваш пол с помощью устройства стяжки полов, служащей основой для нового паркета.
Другие фотографии в проекте
Вопросы к фото 0
Задайте вопрос
Вам ответят эксперты. Пришлем уведомление, когда вам ответят




