
Проектирование и строительство
5
·
10 отзывов
кв. Планы необходимые для работы
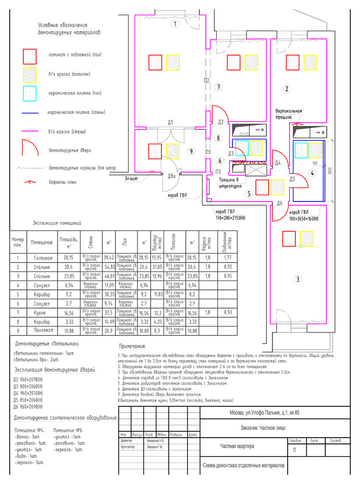
План демонтажа второй необходимый план проекта, помогает понять что демонтировать безвозвратно, а что остается в квартире и подлежит ремонту.
Другие фотографии в проекте
Вопросы к фото 0
Задайте вопрос
Вам ответят эксперты. Пришлем уведомление, когда вам ответят




