
Проектирование и строительство
5
·
10 отзывов
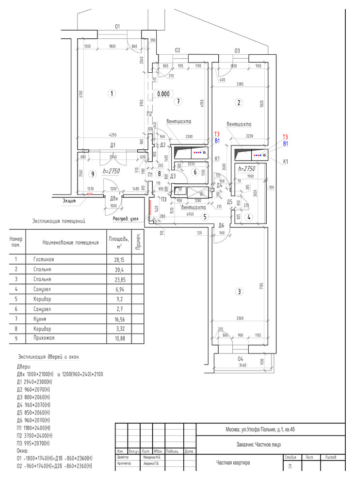
кв. Планы необходимые для работы
Обмерный план помещений необходим на начальной стадии работы, дает возможность изучить помещения, вычислить необходимые площади помещений.
Другие фотографии в проекте
Вопросы к фото 0
Задайте вопрос
Вам ответят эксперты. Пришлем уведомление, когда вам ответят




