
Проектирование и строительство
0
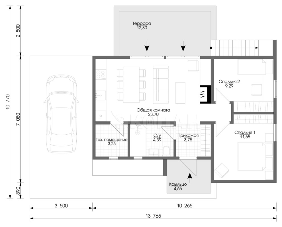
Компактный коттедж 56 кв.м.
Технико-экономические показатели . Площадь застройки - 85,02 кв.м . Общая площадь - 56,03 кв.м . Жилая площадь - 44,64 кв.м . Площадь летних . помещений - 44,43 кв.м
Другие фотографии в проекте
Вопросы к фото 0
Задайте вопрос
Вам ответят эксперты. Пришлем уведомление, когда вам ответят
Похожие фотографии

Коттедж для г. Южно-Сахалинск 100 метров
Андрей Калинчук

Коттедж в стиле «Шале», в г. Альметьевск
Андрей Калинчук

Проект современного дома виллы в стиле Райта на склоне в лесу у воды по принципам Васту — 1560м2
Андрей Иевлев
Эскизный проект: Современный загородный дом в лесу + Интерьер
Михаил Конев
Вилла в итальянском стиле
V6 Group
Частный жилой дом, "КРАСНЫЙ ЯР", 2023 г.
Илья Овчинников
Усадьба в Златоусте
Ольга Вавилова
Усадьба в Златоусте
Ольга Вавилова
Усадьба в Златоусте
Ольга Вавилова
Усадьба в Златоусте
Ольга Вавилова
Усадьба в Златоусте
Ольга Вавилова



