
"Южное утро с видом на море" - проект 3х комн. квартиры в ЖК "Ясенево,14"
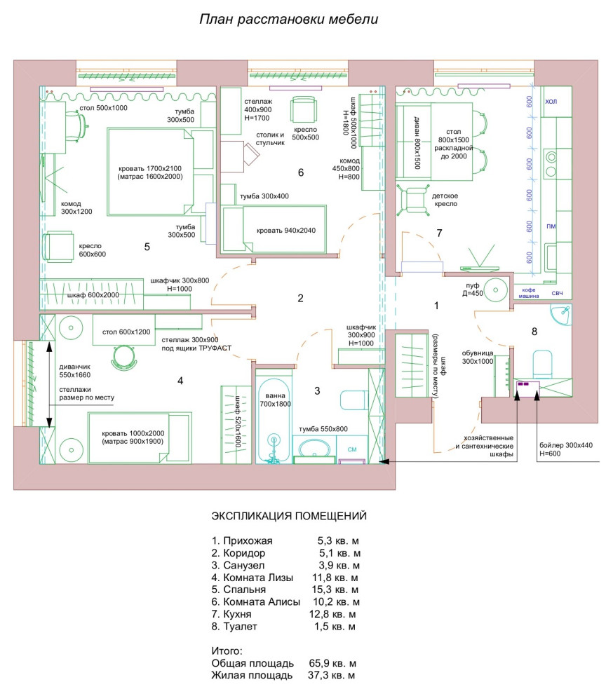
Проект 3х-комнатной квартиры в ЖК "Ясеневая, 14" для молодой семьи с двумя доченьками. Задача- спроектировать коммуникации, черновую и чистовую отделку и декор. 3 жилых комнаты поделили на спальню родителей и две детские. И это очень здорово - у девчонок сразу появились отдельные комнаты. Художественную идею и название проекта придумали, основываясь на вкусах и мечтах заказчиков. Основа идеи и цветовых решений - картины французского художника К. Моне - основателя стиля импрессионизм - впечатление.
Другие фотографии в проекте
Вопросы к фото 0
Задайте вопрос
Вам ответят эксперты. Пришлем уведомление, когда вам ответят




