logo
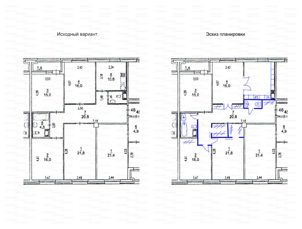
Идеи перепланировки для многокомнатных квартир

Другие фотографии в проекте Идеи перепланировки для многокомнатных квартир

Идеи перепланировки для многокомнатных квартир
Идеи перепланировки для многокомнатных квартир
Идеи перепланировки для многокомнатных квартир
Идеи перепланировки для многокомнатных квартир
Идеи перепланировки для многокомнатных квартир

Вопросы к фото 0

Задайте вопрос

Вам ответят эксперты. Пришлем уведомление, когда вам ответят