
Дизайн-проект квартиры в ЖК "Мосфильмовский"
31

Архитекторы

Дизайн-проект квартиры в ЖК "Мосфильмовский"
31

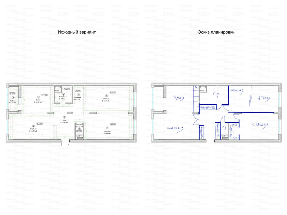
Квартира в жилом комплексе "Royal House on Yauza"
92
г. Москва

Квартира в жилом комплексе "Альстар"
14
г. Москва

Идеи перепланировки для многокомнатных квартир
74

Идеи перепланировки для двухкомнатных квартир
78

Идеи перепланировки для однокомнатных квартир
36
Квартира с видом на Костомаровский переулок.
0
г. Москва
Загородный дом в коттеджном поселке Новогорск
0
Новогорск микрорайон

Беседка у моря
12
5
16 отзывов
Стоимость
4.8
21/Июнь/2018
16/Март/2018
18/Декабрь/2017
15/Декабрь/2017
22/Ноябрь/2017
05/Ноябрь/2017
16/Октябрь/2017
27/Март/2017
24/Март/2017
09/Февраль/2017
09/Февраль/2017
10/Февраль/2016
08/Февраль/2016
05/Февраль/2016
05/Февраль/2016
12/Январь/2016
Создаем интерьеры с оптимальной планировкой, с максимальным использованием пространства и стильным трендовым дизайном. Руководитель студии - архитектор с 25 летним стажем проектирования общественных и жилых зданий. Проектируем, согласовываем, комплектуем, ремонтируем и строим. Работаем более 15 лет по Москве и Московской области. Для получения бесплатной консультации и разработки варианта перепланировки напишите нам личное сообщение на сайте houzz или отправьте письмо на нашу почту не забыв прикрепить план квартиры.
Ценовой сегмент: ₽₽₽₽

2019
Идей: 1

Фили мишино
Идей: 65
Зеленоград
Нет сохраненных идей

чурилки
Идей: 9

надежда квартира
Идей: 1
Фрязино
Нет сохраненных идей

ДОМ НАДЕЖДЫ
Идей: 18
Textiles
Нет сохраненных идей
для Романа
Идей: 1

беседка
Идей: 1

children's room
Идей: 3
fence
Нет сохраненных идей
house
Нет сохраненных идей
Mihnevska
Нет сохраненных идей
Kitchen
Нет сохраненных идей
Shelves
Нет сохраненных идей
Windows
Нет сохраненных идей
lights
Нет сохраненных идей
Modern
Нет сохраненных идей
yl Eniseyskaya
Нет сохраненных идей
Stairs
Нет сохраненных идей
Finski
Нет сохраненных идей

Viazemskoe
Идей: 1
Doors
Нет сохраненных идей
Light and color
Нет сохраненных идей

Fireplace
Идей: 1
