
Дизайнеры интерьера
5
·
18 отзывов
Фото и видео квартиры в ЖК Ясный в современном стиле
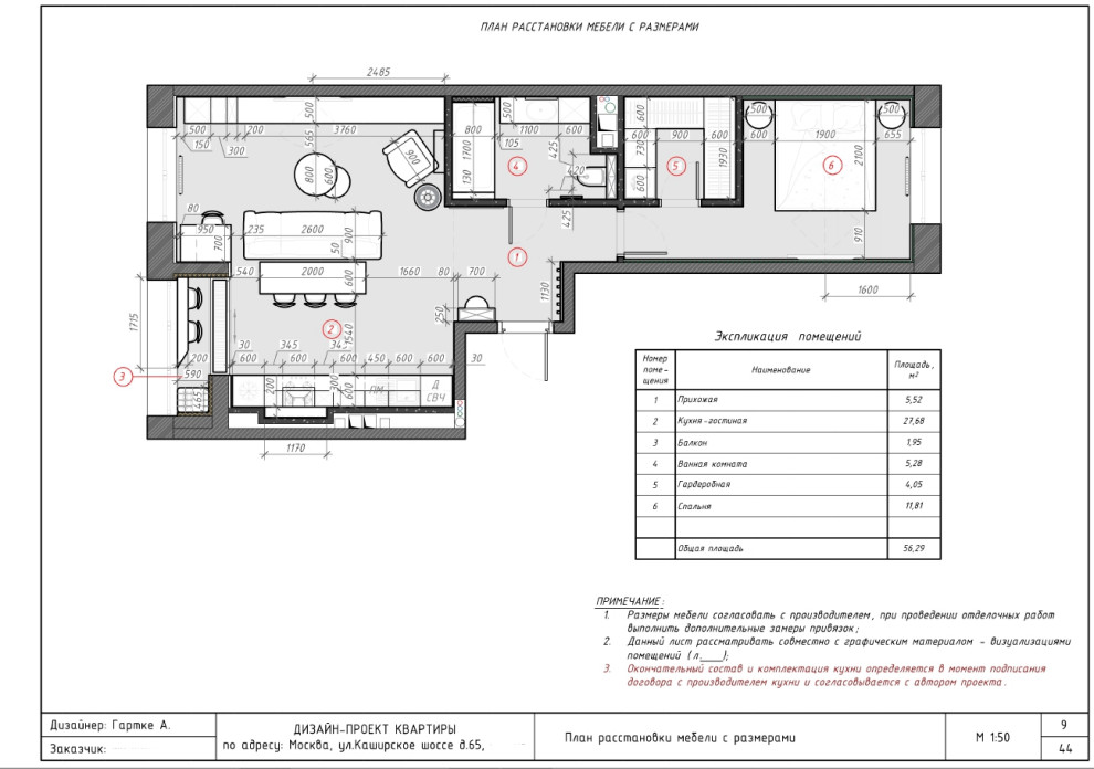
Из обычной двушки площадью 56 кв. м получилась квартира с большой кухней-гостиной, просторной ванной, изолированной спальней и гардеробной. В интерьере преобладают натуральные материалы и блеск, который придает роскоши и лоска. . Заказчики и задачи . Владелица квартиры — молодая женщина, предприниматель — хотела обустроить комфортное пространство с изолированной спальней, гардеробной и обязательно большой ванной. Пожелания также касались отделки и мебели — хотелось сочетать природные материалы и современные тренды в дизайне. . Планировка . В результате перепланировки объединили кухню и гостиную, а при спальне выделили отдельную гардеробную, которая отделена от комнаты глухими перегородками с раздвижной дверью. . . Отделка . В проекте использованы разные натуральные фактуры: дерево, камень, бетон. . Большая часть стен окрашена, в гостиной на них нанесли декоративную штукатурку под бетон, которая имитирует фактуру горных скал. . На кухне одна стена окрашена магнитно-грифельной краской — специально для нанесения заметок. . В спальне за изголовьем создана асимметричная композиция из деревянных и тканевых панелей. Асимметрию поддержали светильники и столики, одинаковые «по смыслу», но разные по форме. Деревянная панель переходит на потолок и стену напротив, создавая портал у окна. . На полу в гостиной и спальне уложена инженерная доска, а в кухне и ванной комнате — плитка. . Цветовая палитра . Основу составляют дерево, серый, белый цвета и черные акценты. В гостиной к ним добавляется желтый — кресло и ковер, и латунь — элементы декора. В спальне база дополнена синим ковром и подушками на кровати. . Мебель и системы хранения . В основном мебель сделана на заказ по индивидуальному проекту, включая системы хранения в гардеробной комнате, кухонный гарнитур, стеллажи в гостиной, шкафы в ванной комнате: под раковиной и над инсталляцией унитаза. . Окна черного цвета остались от застройщика, а откосы покрашены специально в тон окон. Подоконник на балконе из кварца плавно переходит в столешницу. Также предусмотрено место для хранения — банкетка — стена за ней декорирована рейками. . В прихожей — стеновая панель из натурального шпона дерева и фрезеровкой, за которой спрятан электрический щиток. Рядом с входной дверью — консоль и пуфик. На консоль удобно положить ключи или сумку при входе, а на пуф — присесть, чтобы снять или надеть обувь. . В гостиной предусмотрена рабочая зона, она визуально отделена от зоны отдыха рейками. . Большая ванна и душевая панель из искусственного камня расположились визуально в нише с эффектной акцентной стеной из плитки под дерево. Навесная тумба с черной накладной раковиной перекликается с черной плиткой за унитазом. . Освещение . . В проекте свет играет не только функциональную, но и декоративную роль. Например, в кухне-гостиной барная стойка и светильники над ней — это зонирующий элемент. В зоне гостиной круглые потолочные лампы обрамлены деревянными рейками — такая отделка тоже визуально делит пространство. . В спальне над кроватью монтированы 3 светильника в виде круглых дисков, а также подвесная лампа с одной стороны кровати, и настольная — с другой. Таким образом подчеркнута асимметрия изголовья кровати. . . Больше видео на нашем канале: https://www.youtube.com/channel/UCncp-ZYCz15H6sEv1yRmDbA
Другие фотографии в проекте
Вопросы к фото 0
Задайте вопрос
Вам ответят эксперты. Пришлем уведомление, когда вам ответят
Бежевый, Гостиная, Жалюзийный потолок, Контемпорари, Коричневый, Москва, Настенный, Открытая планировка, Светлая паркетная доска, Совмещённая гостиная и кухня, барный стол за диваном, гостиная, рейки на потолке
Похожие фотографии

Квартира в стиле современный минимализм
Пример оригинального дизайна: большая открытая, объединенная, серо-белая гостиная комната в современном стиле с светлым паркетным полом, телевизором на стене и бежевым полом
Екатерина Торба

Квартира на Уделке в бирюзовых тонах
Пример оригинального дизайна: открытая, объединенная гостиная комната среднего размера в современном стиле с серыми стенами, светлым паркетным полом, телевизором на стене, бежевым полом и обоями на стенах
Наталья Смирнова

Точка белого(фотографии кухни-гостиной)
На фото: открытая, объединенная гостиная комната среднего размера в современном стиле с серыми стенами, телевизором на стене, бежевым полом и светлым паркетным полом с
Архитектурная студия Астар проект

ЖК Квартал 38А - Фото. 115 кв.м. Реализованный проект
Идея дизайна: большая открытая, объединенная гостиная комната в современном стиле с паркетным полом среднего тона, телевизором на стене, с книжными шкафами и полками, коричневыми стенами и бежевым полом
Екатерина Ялалтынова

ЖК Квартал 38А - Фото. 115 кв.м. Реализованный проект
На фото: большая открытая, объединенная гостиная комната в современном стиле с паркетным полом среднего тона, телевизором на стене, с книжными шкафами и полками, коричневыми стенами и бежевым полом
Екатерина Ялалтынова

ЖК Квартал 38А - Фото. 115 кв.м. Реализованный проект
Источник вдохновения для домашнего уюта: открытая, объединенная гостиная комната среднего размера в современном стиле с паркетным полом среднего тона, бежевым полом, с книжными шкафами и полками, коричневыми стенами и телевизором на стене
Екатерина Ялалтынова

Двухкомнатная квартира 56 м2 в ЖК "Резиденция композиторов"
Идея дизайна: открытая, объединенная гостиная комната среднего размера в современном стиле с с книжными шкафами и полками, бежевыми стенами, светлым паркетным полом, телевизором на стене и бежевым полом
Елена Кунина

Двухкомнатная квартира 56 м2 в ЖК "Резиденция композиторов"
На фото: маленькая открытая, объединенная гостиная комната в современном стиле с с книжными шкафами и полками, синими стенами, светлым паркетным полом, телевизором на стене и бежевым полом для на участке и в саду
Елена Кунина

Комфорт для двоих
Пример оригинального дизайна: открытая, объединенная гостиная комната среднего размера в современном стиле с бежевыми стенами, светлым паркетным полом, телевизором на стене и бежевым полом
Елена Кунина

Комфорт для двоих
Идея дизайна: открытая, объединенная гостиная комната среднего размера в современном стиле с бежевыми стенами, светлым паркетным полом, телевизором на стене и бежевым полом
Елена Кунина

Комфорт для двоих
На фото: открытая, объединенная гостиная комната среднего размера в современном стиле с бежевыми стенами, светлым паркетным полом, телевизором на стене и бежевым полом
Елена Кунина

Комфорт для двоих
Источник вдохновения для домашнего уюта: открытая, объединенная гостиная комната среднего размера в современном стиле с бежевыми стенами, светлым паркетным полом, телевизором на стене и бежевым полом
Елена Кунина




