
Дизайнеры интерьера
5
·
10 отзывов
Фото и видео квартиры в ЖК Ясный в современном стиле
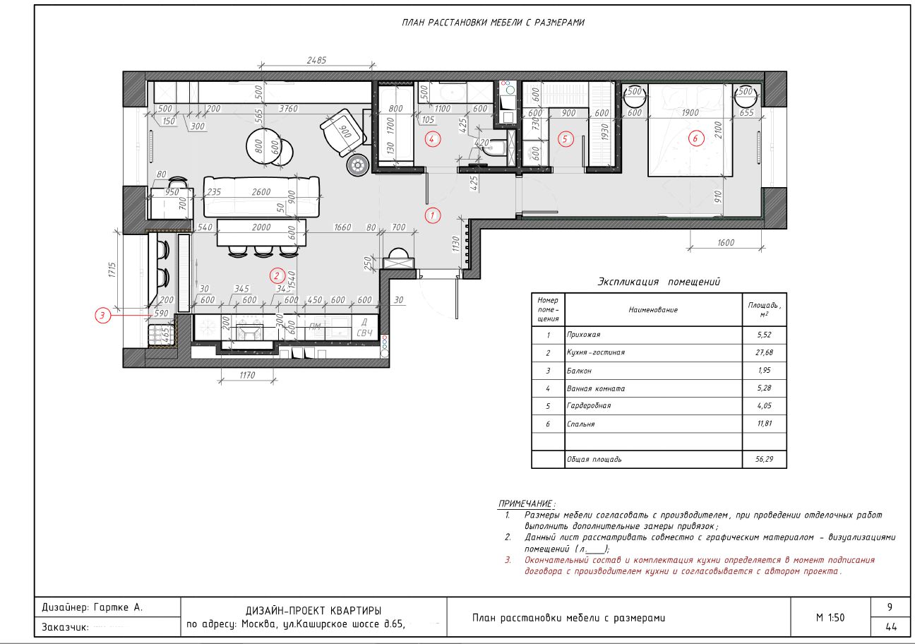
Из обычной двушки площадью 56 кв. м получилась квартира с большой кухней-гостиной, просторной ванной, изолированной спальней и гардеробной. В интерьере преобладают натуральные материалы и блеск, который придает роскоши и лоска. . Заказчики и задачи . Владелица квартиры — молодая женщина, предприниматель — хотела обустроить комфортное пространство с изолированной спальней, гардеробной и обязательно большой ванной. Пожелания также касались отделки и мебели — хотелось сочетать природные материалы и современные тренды в дизайне. . Планировка . В результате перепланировки объединили кухню и гостиную, а при спальне выделили отдельную гардеробную, которая отделена от комнаты глухими перегородками с раздвижной дверью. . . Отделка . В проекте использованы разные натуральные фактуры: дерево, камень, бетон. . Большая часть стен окрашена, в гостиной на них нанесли декоративную штукатурку под бетон, которая имитирует фактуру горных скал. . На кухне одна стена окрашена магнитно-грифельной краской — специально для нанесения заметок. . В спальне за изголовьем создана асимметричная композиция из деревянных и тканевых панелей. Асимметрию поддержали светильники и столики, одинаковые «по смыслу», но разные по форме. Деревянная панель переходит на потолок и стену напротив, создавая портал у окна. . На полу в гостиной и спальне уложена инженерная доска, а в кухне и ванной комнате — плитка. . Цветовая палитра . Основу составляют дерево, серый, белый цвета и черные акценты. В гостиной к ним добавляется желтый — кресло и ковер, и латунь — элементы декора. В спальне база дополнена синим ковром и подушками на кровати. . Мебель и системы хранения . В основном мебель сделана на заказ по индивидуальному проекту, включая системы хранения в гардеробной комнате, кухонный гарнитур, стеллажи в гостиной, шкафы в ванной комнате: под раковиной и над инсталляцией унитаза. . Окна черного цвета остались от застройщика, а откосы покрашены специально в тон окон. Подоконник на балконе из кварца плавно переходит в столешницу. Также предусмотрено место для хранения — банкетка — стена за ней декорирована рейками. . В прихожей — стеновая панель из натурального шпона дерева и фрезеровкой, за которой спрятан электрический щиток. Рядом с входной дверью — консоль и пуфик. На консоль удобно положить ключи или сумку при входе, а на пуф — присесть, чтобы снять или надеть обувь. . В гостиной предусмотрена рабочая зона, она визуально отделена от зоны отдыха рейками. . Большая ванна и душевая панель из искусственного камня расположились визуально в нише с эффектной акцентной стеной из плитки под дерево. Навесная тумба с черной накладной раковиной перекликается с черной плиткой за унитазом. . Освещение . . В проекте свет играет не только функциональную, но и декоративную роль. Например, в кухне-гостиной барная стойка и светильники над ней — это зонирующий элемент. В зоне гостиной круглые потолочные лампы обрамлены деревянными рейками — такая отделка тоже визуально делит пространство. . В спальне над кроватью монтированы 3 светильника в виде круглых дисков, а также подвесная лампа с одной стороны кровати, и настольная — с другой. Таким образом подчеркнута асимметрия изголовья кровати. . . Больше видео на нашем канале: https://www.youtube.com/channel/UCncp-ZYCz15H6sEv1yRmDbA
Другие фотографии в проекте
Вопросы к фото 0
Задайте вопрос
Вам ответят эксперты. Пришлем уведомление, когда вам ответят
Гостиная, Москва
Похожие фотографии

Apartments Neva Towers 1
Пример оригинального дизайна: гостиная комната среднего размера в современном стиле с бежевыми стенами, светлым паркетным полом, бежевым полом, многоуровневым потолком, панелями на части стены и акцентной стеной
Вадим Мартынов Екатерина Гатилова

Частная резиденция DRR
Свежая идея для дизайна: идея дизайна в современном стиле - отличное фото интерьера
Portner Architects

Вавилова 4
Стильный дизайн: гостиная комната в стиле неоклассика (современная классика) - последний тренд
Ира Носова

FESTIVAL FLAT
Пример оригинального дизайна: открытая, объединенная гостиная комната среднего размера, в белых тонах с отделкой деревом в современном стиле с белыми стенами, паркетным полом среднего тона, мультимедийным центром и коричневым полом
Екатерина

Гостиная
Пример оригинального дизайна: гостиная комната в современном стиле с коричневым диваном, паркетным полом среднего тона и потолком из вагонки без камина
Александра Протасова

Квартира ул Тверская
На фото: гостиная комната в стиле неоклассика (современная классика) с белыми стенами и многоуровневым потолком с
Олег Михайлов архитектор-дизайнер

Пентхаус в Краснодаре
На фото: идея дизайна в современном стиле с
Денис Мурый

Квартира в Палевском жилмассиве
Идея дизайна: открытая, объединенная гостиная комната среднего размера в скандинавском стиле с белыми стенами, полом из винила, коричневым полом и кирпичными стенами без телевизора
Дмитрий Дубровский

Зал
Источник вдохновения для домашнего уюта: гостиная комната в современном стиле с бежевыми стенами, светлым паркетным полом и бежевым полом
Дмитрий Галаганов

Квартира в ЖК "Василеостровский квартал"
Пример оригинального дизайна: гостиная комната в современном стиле с паркетным полом среднего тона и коричневым полом
Екатерина Савенко

Дом, умный дом(фотографии спальни)
Источник вдохновения для домашнего уюта: идея дизайна в современном стиле
Архитектурная студия Астар проект

Гостиная
Свежая идея для дизайна: маленькая открытая, объединенная гостиная комната в современном стиле с серыми стенами и серым полом без телевизора для на участке и в саду - отличное фото интерьера
Ольга Васильева




