
Архитекторы
0
Дизайн и благоустройство загородного дома
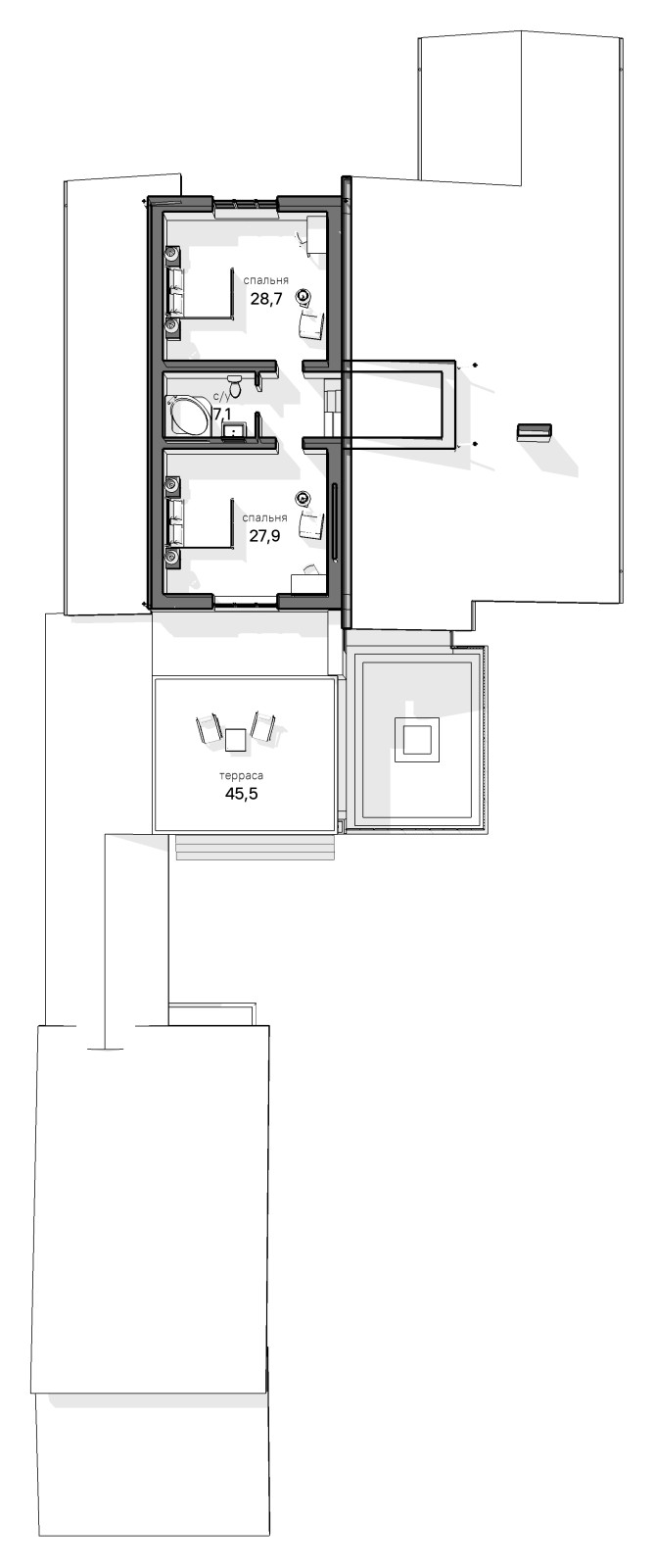
Планировочное решение второго этажа
Другие фотографии в проекте
Вопросы к фото 0
Задайте вопрос
Вам ответят эксперты. Пришлем уведомление, когда вам ответят

Архитекторы
0
Планировочное решение второго этажа
Другие фотографии в проекте
Вам ответят эксперты. Пришлем уведомление, когда вам ответят