
Двухэтажный дом в современном стиле в Новочеркасске
4
Новочеркасск

Архитекторы

Двухэтажный дом в современном стиле в Новочеркасске
4
Новочеркасск

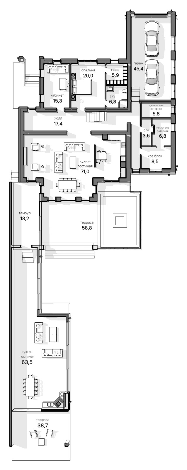
Проект классического одноэтажного дома в Адыгее
9

Двухэтажный классический коттедж Вэйде
9

Проект офиса в Краснодаре на ул. Красных Партизан
5
г. Краснодар

Дом в стиле неоклассика в Ростове
8
г. Ростов-на-Дону

Проект дома в стиле Фрэнка Райта
6

Дизайн и благоустройство загородного дома
12

Одноэтажный жилой дом
6

Финский дом с огромной двусветной гостиной
6
Нет отзывов
Мы не сторонники теории «талантливый человек талантлив во всем» и считаем, что настоящим профессионалом можно быть только в одной области. Мы выбрали свою - архитектурное проектирование уникальных жилых домов, и живем этим делом.
Ценовой сегмент: ₽₽
