В закладки: Дизайн студии 30 кв.м — в тесноте, но не в обиде

Париж, Милан, Нью-Йорк, Зюзино — крошечные студии есть везде

Евгений Иванов
Евгений Иванов

17 нояб. 2016

Обновлено 16 сент. 2017

Постоянный автор Houzz, интерьерный журналист. В разное время работал корреспондентом, редактором, шеф-редактором в разных изданиях г.Санкт-Петербурга. Активно писал об интерьерах для сайта 4living.

Тридцать метров — площадь для студии знаковая. Это уже не 20 «квадратов», где дизайн интерьера квартиры сводится к мучительному выбору между «неудобно» и «некрасиво», но еще и не 70, где отпадает надобность считать миллиметры. И пусть пространства для маневра мало, но оно есть! Учимся на примере девяти совершенно разных проектов из семи стран.
Дизайн квартиры 30 кв.м в Париже: шале с «мезонином»
Влюбиться в эту квартиру можно было уже только за террасы, одна из которых выходит на улицу Риволи, а другая — на улицу Де-Буль в Париже. Но у жилища на мансардном этаже было еще одно неоспоримое преимущество: оно располагалось прямо над квартирой покупательницы — дизайнера Кристины Велани. Новую жилплощадь можно было использовать как гостевую квартиру, кабинет или жилье для сдачи в аренду. Жирным минусом чердачного помещения стало его ужасное состояние.

Изначально проект мансардной квартиры предполагал ее деление на две комнаты, но такая планировка делала жилье не только тесным, но и темным. Кристина убрала все внутренние перегородки и часть балок между гостиной и кухней — получилась студия площадью 30 кв.м.
На фото: интерьер квартиры-студии 30 кв.м только выиграл от создания мезонина над ванной

По новому дизайн-проекту квартира-студия под одним скосом крыши имеет гостиную, санузел и импровизированную спальню, а под другим — кухню и столовую. Особенно интересной выглядит организация крыла с гостиной. Чтобы добавить дополнительное спальное место, дизайнер соорудила над входом в ванную мезонин высотой 80 см, в котором помещается матрас шириной 90 и высотой 10 см. Под ним — встроенный вдоль стены узкий шкаф, характерная особенность маленьких французских проектов.

Старые чердачные балки натолкнули Кристину на идею сделать дизайн студии 30 кв.м в уютном стиле шале: мягкие цвета, камень и дерево. Атмосферу горной хижины поддерживают и каминный портал из черного мрамора, и передвижная деревянная лестница, ведущая в мезонин. А круглое зеркало над камином делает пространство студии еще светлее.
Другие идеи из этой квартиры:
  • В интерьере шале органично будет смотреться журнальный столик, сделанный из пня.
  • Чтобы объединить пространство, кухонную мебель для проекта подобрали тех же цветов, что использованы в гостиной и столовой.
  • Атмосферу «камня» отлично передают серые оттенки, особенно цвет песчаника — именно таким выкрашены стены в ванной этой студии 30 кв.м (фото по ссылке ниже).
  • Добавить в пространство кухни «каменной» фактуры помогла столешница из меламина, имитирующего камень.
  • Небольшая хитрость для тех, кто делает дизайн маленьких квартир: ниши выглядят глубже и интереснее, если их подсветить изнутри.
На фото: дизайн-проект квартиры 30 кв.м на мансардном этаже

ПОДРОБНЕЕ ОБ ЭТОМ ПРОЕКТЕ…
Houzz Франция: Атмосфера шале в центре Парижа
Дизайн квартиры 28 кв.м в Стокгольме: апельсины на снегу
Дизайн интерьера этой студии чуть меньше 30 кв.м архитектор София Канье придумывала для себя. В итоге ей удалось найти такую планировку, которая позволила сохранить просторную гостиную и не остаться без спальни. София поделила комнату на две части. Одну из них занимают кухня, спальня и мини-гардеробная, а вторую — гостиная и столовая.
Дизайн-проект квартиры-студии София сделала за месяц, с отделкой ей помогал дядя-строитель. Ремонт маленькой студии занял всего лишь две недели! Спальный блок — самая интересная конструкция проекта. Кровать располагается на высоком подиуме, от кухни и общественных пространств она отгорожена матовыми стеклянными перегородками. Подиум заменяет собой шкаф — внутри хранятся все вещи хозяйки.
Слева от спальни нашлось место для небольшой «гардеробной» с эргономичными штангами и крючками. Прямо под ней — столик, совмещающий функции рабочего и туалетного. Зеркало рядом зрительно увеличивает пространство — кажется, будто бы студия продолжается и за спальней.
Другие идеи из этой квартиры:
  • Интерьер этой квартиры сделан максимально воздушным. Рецепт тут прост: белые стены, шторы, пол и потолок. Деревянные белые полы постелены даже в кухне — София вдохновлялась японской архитектурой.
  • А вот акценты, напротив, в квартире очень яркие: оранжевые, желтые, красные, цвета латуни. Однако, как выяснилось, при таком количестве белизны яркие цветовые пятна выглядят слишком динамично — от нескольких аксессуаров и подушек пришлось отказаться.
  • В гардеробном отсеке использованы стойки для плечиков, закрепляемые перпендикулярно стене — так на них вмещается больше одежды.

СМОТРИТЕ ТАКЖЕ…
Другие фото квартиры в Стокгольме
Дизайн квартиры 30 кв.м в Милане: кухню — в центр
Елена, хозяйка этой миланской квартиры площадью 30 кв.м, работает арт-директором на фрилансе. Для нее студия — не только любимый дом, но и офис. Учитывая высочайшую ответственность мероприятия, интерьер своей квартиры Елена создавала сама. Центром композиции хозяйка сделала кухню — ее оранжевые фасады бросаются в глаза из любой точки жилища. Редкий проект дизайна крохотной жилплощади выделяет столько места под кухонную мебель, но для Елены важно было получить полноценную зону для готовки. При этом она намеренно отказалась от верхней линии шкафов, чтобы не загромождать пространство. Там, где полки все же предусмотрены, они оставлены открытыми.
На фото: интерьер квартиры-студии 30 кв.м с яркой кухней

Стеклянная крышка на обеденном столе не только защищает его от пролитого вина и соуса, но и позволяет постоянно обновлять дизайн — нужно только менять салфетки под прозрачной панелью. А на стеклянном фартуке можно оставлять заметки специальным маркером. Портреты пришельцев работы друга хозяйки вносят ироничную ноту в дизайн маленькой квартиры-студии.
В этой жизнерадостной студии хозяйка реализовала еще одну свою детскую мечту: поставила огромный книжный шкаф с лестницей. Да, дизайн компактной квартиры-студии 30 кв.м редко представляет нам возможность увидеть такую «расточительность». Но Елена ради своей мечты запросто отказалась от кровати. Точнее, вместо кровати она выбрала раскладной диван-кровать из эко-кожи. У него нетипичная конструкция: спинка все время остается на месте, а подлокотники служат столиками. Рабочая лампа на столе одним движением превращается в «абажур» для спальни. На заднем фоне можно увидеть черно-белый гардероб.
Другие идеи из этой квартиры:
  • Чтобы разноцветные книжные корешки не пестрили, а архивы не распадались на листы, Елена спрятала часть библиотеки в черные и белые папки для журналов.
  • Лестница для библиотечного шкафа также используется в качестве вешалки для повседневной одежды.
  • Духовка поднята на уровень рук — так удобнее и смотреть за пирогом, и доставать горячую пиццу.
  • Подвесные шкафы, которые как бы «парят» над полом, смотрятся в интерьере студии гораздо легче, чем обычные. Подобный шкафчик в гостиной также прячет провода от телевизора.
  • Бюджет, выделенный на ремонт студии, не позволил сразу купить дорогую плитку в ванную. Поэтому там использована специальная краска, дающая эффект необработанного металла.

СМОТРИТЕ ТАКЖЕ…
Другие фото квартиры в Милане
Дизайн квартиры 29 кв.м в Гетеборге: серебряные струны
Дизайн-проект квартиры метражом менее 30 «квадратов», как правило, предполагает совмещение функциональных зон. Приоритеты тут расставляют хозяева: одним нужен большой диван, другим — кухня на острове. Ремонт студии на фото начался с поиска места под полноценную гардеробную — владелец жилплощади работает в магазине одежды и ему не хотелось чувствовать себя дома «сапожником без сапог».
Выгородить отдельную комнату для вещей помогла необычная планировка маленькой студии: на крыше гардеробной организовано спальное место. Дизайнер Линда Оустербом поставила заказчика перед выбором: если хотите сидеть в постели, в гардеробную придется заходить, кланяясь. Чтобы не биться головой о потолок, молодой человек пожертвовал высотой шкафа.
На фото: дизайн интерьера квартиры-студии в монохромной гамме

Предыдущие владельцы пытались выжать максимум «тепла» из интерьера квартиры: бежевые стены, деревянная мебель, цветы, ковры. Новый хозяин хотел сохранить ощущение уюта, но добавить изысканности. Кроме того, он видел свое жилище в современной стилистике. Дизайнер предложила оформить студию в монохромной черно-белой гамме. Для стен выбрали светлый оттенок серого цвета. «Роскоши» интерьеру добавляет столешница из белого мрамора на кухне. Именно цвет объединяет разные предметы обстановки — от старинных светильников до современной бытовой техники. Прятать кухню в интерьере не стали — ее просто вписали в общую концепцию, выложив всю стену белой плиткой с темной затиркой.
Другие идеи из этой квартиры:
  • В маленькой прихожей оригинальную вешалку для одежды можно сделать из обычной трубы.
  • Серый цвет стен служит хорошим фоном для белых оконных рам и дверей. Хороший прием, чтобы обратить внимание на их красоту (если она там, конечно, есть).
  • Легкий стол и стулья позволяют сделать мобильную обеденную зону — ее можно убрать к окну, а можно сдвинуть к гостиной. Чтобы не нарушить композиции такими перемещениями, мебель лучше выбирать на тонких ножках и нейтрального цвета: черного, белого или серого.
  • Современный стиль интерьера постеры подчеркнут лучше живописи.

СМОТРИТЕ ТАКЖЕ…
Другие фото квартиры в Гетеборге
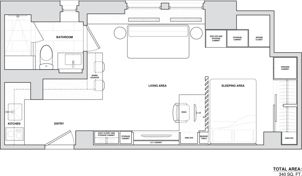
Дизайн квартиры 30 кв.м в Нью-Йорке: умная простота
Студия 30 кв.м на фото принадлежит одинокому американскому пенсионеру, решившему поселиться рядом с дочерью и внуками на Манхеттене. Как только в их доме была выставлена на продажу небольшая квартира, он сразу же ее купил. Дизайн скромной квартиры-студии площадью 30 кв.м хозяин доверил архитектору Стивену Киллкойну, попросив сделать «чистый, элегантный и вневременной» интерьер. Кроме того, заказчику хотелось иметь отдельную спальню.

Первым делом из квартиры убрали все перегородки, затем в ней были намечены функциональные зоны — так, чтобы пространство оставалось единым и открытым. Кухню сдвинули в прихожую — хозяин все равно редко готовит. Зато освободилось место для просторной гостиной, совмещенной с кабинетом. Впрочем, кухня не так проста, как может показаться. Столешница сделана шире традиционных аналогов, а над нижней линией шкафов спроектированы дополнительные выдвижные ящики. Рабочая зона, огибая угол, плавно перетекает в обеденную.
Спальню от гостиной отделяют вертикальные жалюзи: от входа или с дивана стенка кажется сплошной, но стоит отойти на пару метров — и становится видно, что это не так. Две стены в спальне занимают шкафы, так что под телевизор места не оставалось. Отсутствие TV расстроило бы владельца, так что панель закрепили на потолке — если приглядеться, на фото видны створки, закрывающие «люк».
Другие идеи из этой квартиры:
  • Чтобы квартира 30 кв.м казалась просторнее, в ней нет подвесных светильников и люстр — только встроенный свет на светодиодах.
  • За ощущение тепла в белоснежном интерьере отвечают дубовые полы и кленовые фасады шкафов.
  • Верхние шкафы на кухне подняты под потолок — это позволило сделать под ними открытые полки для специй.
  • Душевой отсек отделен от туалета стеклянной стеной с дверью. Лайт-альтернатива паровому душу.
  • Чтобы ничто не отвлекало от чистоты линий в ванной, дизайнер нашел раковину с боковым держателем для туалетной бумаги.
Планировка студии 30 кв.м

СМОТРИТЕ ТАКЖЕ…
Другие фото квартиры на Манхеттене
Дизайн квартиры 28 кв.м в Берлине: все гладко
Для студий под 30 «квадратов» минимализм — стиль беспроигрышный. Особенно любят этот жанр в интерьере японцы и немцы, нередко доводя его до крайностей. Впрочем, если нравится — почему бы и нет? В случае с этой квартирой в Берлине все и вовсе вышло удачнее некуда. Владельцы отремонтировали студию для предполагаемого жильца, который бы не имел много вещей, редко готовил и ел дома, и вообще, приходил сюда спать и думать. Нынешний арендатор оказался именно таким —мало того, он сам архитектор, способный оценить красоту эксперимента. В совершенно белоснежной квартире минимум мебели: кровать, стол, кресло-качалка, металлический шкафчик и белый комод с «секретом».

Кровать от условной кухни-столовой отделяет перегородка до потолка, которую можно обойти справа и слева. Изначально ее не было, но архитектору не хватило ощущения приватности в кровати.
Комод — это на самом деле кухня: под открывающейся крышкой находятся рабочая поверхность, микроволновка и раковина. В нижних шкафах спрятаны холодильник и посудомоечная машина.

Лишь одна из стен — та, у которой стоит кухня-комод — не белая, а сложного зеленого цвета. Это —родной цвет стен в квартире, открывшийся после того, как с них сняли обои. Одну хозяева решили оставить в качестве акцента незакрашенной.

На самом деле вещей в квартире много, просто их не видно. Гардероб располагается в прихожей. А во всю длину студии встроен большой шкаф с десятью вертикальными секциями. Все двери без ручек, открываются при помощи нажатия (push-to-open). Две из них шире остальных: одна ведет в санузел, а вторая — в прихожую.
Другие идеи из этой квартиры:
  • Поскольку прямо от входа в студии начинается спальня, маленькую прихожую (дальняя открытая дверь на фото) закрыли второй дверью. Это не только визуальный барьер, но и своеобразный шумовой шлюз.
  • Гладкий темный пол делает помещение еще просторнее, поскольку отражает свет, добавляя пространству глубины.
  • Широкие низкие подоконники используются как места для сидения.
  • Чтобы коммуникации не мозолили глаз (штробить старые кирпичные стены не везде было уместно), их убрали под пол.
Проект маленькой квартиры 28 кв.м с нестандартной планировкой

СМОТРИТЕ ТАКЖЕ…
Другие фото квартиры в Берлине
Дизайн квартиры 30 кв.м в Бруклине: махнуть в деревню
Проект дизайна квартиры-студии 30 кв.м в Нью-Йорке, пожалуй, стоит взять на заметку тем, кто не хотел бы возводить глухих стен, но мечтает об отдельной спальне. За интерьер этой студии отвечала дизайнер Линдсей Калео из Brooklyn Home Company. Причем во время ремонта в квартире никто не жил, так что Линдсей искала вдохновение в магии старого дома. В какой-то момент она наткнулась на выставленные оконные рамы со следами краски и штукатурки — тогда и возникла идея сделать необычную ширму для кровати в «деревенском» стиле.
На фото: дизайн квартиры-студии 30 кв.м в стиле кантри

Маленький размер квартиры не оставлял особого выбора для основного цвета стен и мебели — они белые. Акценты в проекте сделаны на деревянных деталях. Так, на потолке появились контрастные фальш-балки — они задают стилистику кантри, которую поддерживают и винтажные лампы на точеных ножках, и металлический ретро-столик, и необычный стол-барная стойка. Впрочем, тут нашлось место и современной кухне, и этажерке из IKEA.
Спальня отделена от прихожей и гостиной при помощи оригинальных стенок из побеленных «под штукатурку» реек. Между рейками специально оставлены щели, а сами перегородки не доходят до потолка — так в закрытую зону попадает солнечный свет. Если нужно, изнутри можно задернуть белые шторы. Вся конструкция построена вокруг кровати из IKEA. Три картины на деревянных панелях спальни нарисовал художник, друг Линдсей. Причем нарисовал прямо тут, на месте, вдохновляясь интерьером.
Другие идеи из этой квартиры:
  • Авторский деревянный стол-стойка на кухне смотрится не только самобытно, но и довольно легко для массивной конструкции. Хитрость в том, что самая толстая его ножка, вырубленная из упавшего дерева, выкрашена в белый цвет. Кажется, что столешница просто парит в воздухе.
  • Весь текстиль в проекте — природных цветов. Это психологический прием, направленный на расслабление.
  • Чтобы не нарушать стилистику интерьера, дизайн ванной сделан максимально воздушным: белая сантехника, стекло и белый мрамор.

СМОТРИТЕ ТАКЖЕ…
Другие фото квартиры в Бруклине
Квартира-студия 30 кв. м в Париже: планировка (фото — ниже по ссылке)

Дизайн квартиры 30 кв.м в Париже: великая стена
Изюминкой парижской студии 30 кв.м на фото — проекта дизайнера Ришара Гибо — стал длинный шкаф во всю стену квартиры: в нем собраны практически все места для хранения вещей.
В этой «стенке» спрятаны не только домашние вещи и одежда, но и холодильник, винный шкаф, отсек для хранения продуктов и разные мелочи для ванной. Чтобы шкаф не казался слишком массивным, Ришар использовал технику чередования фактур: глянцевые белые фасады сменяют березовые вставки и подсвеченные светодиодами ниши. Этот прием заставляет глаз воспринимать конструкцию как объемную, а не плоскую и монолитную.

ЧИТАЙТЕ ТАКЖЕ…
Подробнее об этой французской студии и еще 19 интересных проектах читайте в материале, посвященном дизайну малогабаритных квартир
Дизайн квартиры 30 кв.м в Зюзино: хрущевкой «не пахнет»
У российских дизайнеров проектов квартир-студий 30 кв.м тоже немало. Чаще всего речь идет о новой жилплощади, но попадаются и варианты преобразования квартир типовых советских планировок. Так, дизайнер Алена Гунько сделала стильную студию из своей 30-метровой хрущевки в Зюзино. Теперь у нее есть и спальня, и гостиная, и столовая с кухней. Спальню Алена выделила в отдельную зону, отгородив кровать встроенным шкафом, где помимо прочего, нашлось место и стиральной машине. Под кроватью устроены ящики для хранения вещей, доступ к ним открывает подъемный механизм.

ЧИТАЙТЕ ТАКЖЕ…
Интерьер квартиры-студии (дизайн, фото) 30 кв.м и еще девятнадцать интересных проектов из разных стран — в нашей подборке дизайна квартир-студий с фото.
На фото: проект студии 30 кв.м в Москве на месте однокомнатной хрущевки

Комментарии 8

очень много в принципе неприемлемого - раковина рядом с плитой гардеробные-вешалки-полки открытые для сбора пыли кухня в прихожей кровать-нора и нары под потолком.
Очень полезная статья!
Для наших панелек абсолютно не пригодная статья....

Оставьте комментарий

Читать похожие статьи