logo

В гостях: Съемная квартира, которую выкупил арендатор

Так полюбил, что захотел сделать дизайнерский ремонт

Евгения Назарова
Евгения Назарова

27 мая 2019

Обновлено 13 июля 2019

Постоянный автор Houzz, интерьерный журналист

Денис Преображенский снимал эту квартиру несколько лет. А потом так привык к месту, что решил выкупить жилье у своих арендодателей. Темная квартира на первом этаже — кому она могла так полюбиться? Но после перепланировки и капитального ремонта ее не узнать
В гостях: Съемная квартира, которую выкупил арендаторЕвгения Матвеенко
О проекте
Место:
Москва, Большая Черкизовская улица
Размер: 42 кв.м, высота потолков 2,5 м
Кто здесь живёт: Денис Преображенский с двумя мопсами Афанасием и Боней
Автор проекта: Евгения Матвеенко, Flatsdesign
Фото: Дина Александрова
Квартира до перепланировки

До ремонта это была небольшая «двушка» в панельном доме, очень тёмная и с антресолями. Среди множества вариантов планировок рассматривали только те, которые можно согласовать.
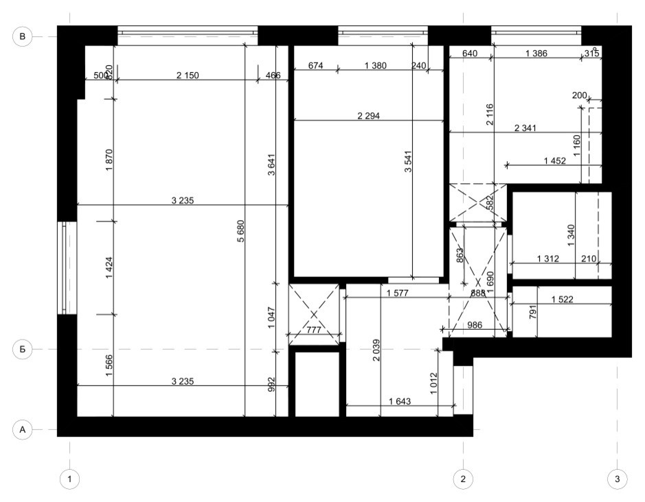
Квартира после перепланировки

Площадь жилых комнат увеличилась за счёт присоединённых коридоров, а гостиная стала проходной. Кухню и спальню зонировали стеклянными раздвижными перегородками: первую из-за газовой плиты, вторую — из соображений приватности. Сильные стороны исходного пространства угловое расположение и целых четыре окна использовали, чтобы организовать максимум функциональных зон. И в спальне, и в гостиной, и в кабинете, и на кухне есть естественный свет.
В гостях: Съемная квартира, которую выкупил арендаторЕвгения Матвеенко
ПРИХОЖАЯ
Новые зонирующие перегородки решили возводить под размеры готовой мебели, чтобы сэкономить. Шкаф в прихожей смотрится как встроенный, хотя на самом деле куплен в ИКЕА. Зеркальные фасады выбрали не случайно: маленькую прихожую хотелось увеличить хотя бы зрительно. К тому же в зеркалах отражается плитка с красивым узором, имитирующая метлах.
В гостях: Съемная квартира, которую выкупил арендаторЕвгения Матвеенко
Паркет Junckers

ГОСТИНАЯ
Колористическая основа интерьера — светло-серые тона с несколькими яркими акцентами плюс оттенки натуральной древесины. Все стены в квартире покрасили, а для пола выбрали специальную паркетную доску, которая выдерживает соседство с системами тёплого пола. Дело в том, что квартира находится на первом этаже: до ремонта полы были настолько холодные, что дома приходилось ходить чуть ли не в валенках.
В гостях: Съемная квартира, которую выкупил арендаторЕвгения Матвеенко
Диван Hoff

Красок в интерьер добавляют арт-объекты с иллюстрациями Пьеро Форназетти любимого художника заказчика. Все принты взяли в чёрные рамы, и таких контрастов в интерьере немало: например, белый потолок дополняют трековые светильники в чёрном корпусе.
В гостях: Съемная квартира, которую выкупил арендаторЕвгения Матвеенко
Кроме раскладного дивана, на территории гостиной расположили обеденную группу дизайнерский стол из фанеры в компании винтажных стульев. Они достались Денису от бабушки, затем хозяин отремонтировал и перетянул их своими руками. «Я обратила на них внимание ещё когда впервые пришла в квартиру снимать обмеры. Такие вещи нельзя выбрасывать, если можно починить: это часть семейной истории, и найти для неё место можно в любом интерьере», рассказывает Евгения Матвеенко.
В гостях: Съемная квартира, которую выкупил арендаторЕвгения Матвеенко
Справа от обеденного стола разместилась кухня, слева большая зона кабинета, которую формируют два стола. Книжный шкаф с остекленными дверцами сделали на заказ, чтобы вписаться в небольшие размеры простенка. Стул с подлокотниками Денис нашёл на улице, под собственным окном, после небольшой реставрации предмет отлично вписался в дизайн кабинета.
В гостях: Съемная квартира, которую выкупил арендаторЕвгения Матвеенко
Стол и табурет B&G Wood

КУХНЯ
Площадь кухни составляет всего 5,8 кв.м, а владелец очень любит готовить: идея присоединить кухню к гостиной, чтобы дать больше воздуха, напрашивалась сама собой. Но из-за газовой плиты такие перепланировки запрещены, поэтому между кухней и гостиной установили стеклянную перегородку. При открывании она прячется в стену, так что кухня и гостиная всё равно воспринимаются как единое пространство.
В гостях: Съемная квартира, которую выкупил арендаторЕвгения Матвеенко
Проблема и решение: На маленькой кухне всегда не хватает рабочих поверхностей эту проблему решили за счёт барного стола, который вырастает из столешницы. Прежний подоконник сохранили, а нижнюю часть окна закрыли доборной планкой. Получилась полочка, где хозяин хранит корм для собак.
В гостях: Съемная квартира, которую выкупил арендаторЕвгения Матвеенко
Дизайн кухонных фасадов построен на полутонах: нижние секции немного темнее, за счёт этого верхние кажутся легче. Вопросы хранения решают подвесные шкафы до самого потолка. На самых верхних полках хранятся кухонный текстиль и посуда, которыми хозяин пользуется не очень часто. Для кухонного фартука использован крупноформатный керамогранит, имитирующий бетон.
В гостях: Съемная квартира, которую выкупил арендаторЕвгения Матвеенко
Кровать и тумбы Hoff; шкаф ИКЕА

СПАЛЬНЯ
Стену в изголовье кровати решили сделать акцентной и выкрасили в насыщенный зелёный цвет. Его «вытащили» с картины, которая уже была у владельца, а само полотно также повесили над кроватью. «Сделали всего один выкрас и сразу поняли, что это наш цвет. Он работает как подложка для картины: не заглушает, а наоборот, выделяет её», говорит дизайнер.
В гостях: Съемная квартира, которую выкупил арендаторЕвгения Матвеенко
В утверждённой планировке кровать должна была стоять изголовьем к остеклению, но к концу ремонта расположение мебели решили поменять, чтобы сохранить подход к окну. Скамью с откидной крышкой, где хранятся дополнительные подушки и постельное белье, владелец сделал сам, как и аксессуар на тумбе: это коряга, которую хозяину принес в зубах мопс во время прогулки. Денис добавил подставку, и получился интерьерный декор.
В гостях: Съемная квартира, которую выкупил арендаторЕвгения Матвеенко
САНУЗЕЛ
Санузел увеличили за счет прихожей и оформили двумя видами плитки: одна имитирует мрамор, другая древесину. Этот приём не только «для красоты»: вставки из керамогранита под дерево сделали для того, чтобы нарастить высоту и не резать «мраморную» плитку.
В гостях: Съемная квартира, которую выкупил арендаторЕвгения Матвеенко
Ванну устанавливать не стали, а рядом с душевой появился специальный поддон: в квартире живут два мопса, и им надо где-то мыть лапы после прогулки. Здесь же можно набрать воды, чтобы помыть пол, почистить обувь или что-то большое, что не помещается в раковину. Словом, удачное решение для квартиры любого метража.
В гостях: Съемная квартира, которую выкупил арендаторЕвгения Матвеенко
На фото: душевая для домашних любимцев
ОБ АВТОРЕ ПРОЕКТА…
Перейдите на страницу Евгении Матвеенко, Flatsdesign, чтобы изучить другие работы из портфолио дизайнера
________________________

В ВАШЕМ ГОРОДЕ…
Найдите дизайнера на Houzz в вашем городе — закажите собственный проект

МЫ ЛЮБИМ ХОДИТЬ В ГОСТИ…
Хотите стать героем следующей статьи? Напишите на editorial@flatica.ru и приложите несколько фотографий своего интерьера (достаточно съёмки на смартфон). Мы обязательно свяжемся с вами, если примем решение о публикации!

Комментарии 93

Очень классный интерьер, понравился!
Чудесный проект, забавные собаки!
Который раз возвращаюсь к этому проекту, только чтобы посмотреть на мопсиков). При том, что вообще-то к этой породе я достаточно равнодушна...)

Оставьте комментарий

Смотреть похожие темы

Читать похожие статьи