logo

В гостях: Ремонт трёхкомнатной квартиры за 7 недель

Квартира сдавалась в бетоне, но владельцы очень торопились переехать

Евгения Назарова
Евгения Назарова

27 мар. 2020

Обновлено 14 нояб. 2020

Постоянный автор Houzz, интерьерный журналист

Хозяйка квартиры Оксана Маршалова много лет проработала главным бухгалтером в Ульяновске, а потом решила изменить жизнь: переехала в Москву к будущему мужу, вышла замуж, сменила профессию. И не успела окончить школу дизайна, как взялась за первый профессиональный проект собственную квартиру. Покупка и строительные работы вылились в большие траты, поэтому переплачивать за съёмное жильё не хотелось. В итоге ремонт сделали за семь недель, чтобы поскорее переехать.
В гостях: Ремонт трёхкомнатной квартиры за 7 недельОксана Рябинкина
Квартиру присматривали долго: владельцам хотелось, чтобы это была новостройка на севере или северо-западе Москвы. Дом выбрали за благоустроенную территорию с ландшафтным дизайном, а квартиру за удачную планировку. «Бюджет был ограничен, и мы думали, что можем позволить себе только “двушку”. Но вдруг нашли эту малогабаритную “трёшку” и сразу заключили договор. Так, кроме родительской и детской спален, у нас появилась гостиная», рассказывает Оксана.
В гостях: Ремонт трёхкомнатной квартиры за 7 недельОксана Рябинкина
О проекте
Место: Москва, ЖК Wellton Park
Размер: 60 кв.м
Кто здесь живёт: начинающий дизайнер Оксана Маршалова с семьёй
Дизайнер проекта: хозяйка квартиры
Фото: Наталья Вершинина

—————————————
В ВАШЕМ ГОРОДЕ…
Через Houzz можно нанять дизайнера или архитектора в любом городе и стране. Начать поиск специалиста
—————————————
В гостях: Ремонт трёхкомнатной квартиры за 7 недельОксана Рябинкина
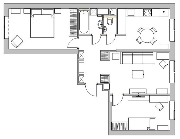
Планировка квартиры

Между гостиной и кухней стояла несущая перегородка, но она не смущала новых владельцев: задачи объединить помещения не было. А вот саму гостиную увеличили за счёт прихожей, немного отодвинув стену.
Стены в прихожей и смежной гостиной покрасили в светло-серый цвет вместе с потолочными карнизами: этот приём добавил потолкам высоты. Узкие высокие шкафы встроили по углам прихожей эта особенность хорошо заметна на плане. В левом шкафу хранятся обувь и мелкие предметы гардероба, такие, как перчатки. Правый отведён под верхнюю одежду. «Мы стараемся не копить вещи и не покупать лишнее, поэтому такого объёма хранения нам хватает», рассказывает хозяйка.
В гостях: Ремонт трёхкомнатной квартиры за 7 недельОксана Рябинкина
Нишу между встроенными шкафами пока занимают пуф и постер, но в будущем владельцы планируют поставить красивую консоль и дополнить композицию зеркалом.

На чём сэкономили: Все работы в квартире делал один мастер, это оказалось менее затратно, чем нанимать бригаду. «Если честно, я пожалела об этом решении: один человек не может качественно выполнить все виды работ. С черновой отделкой всё прошло неплохо, а вот с чистовой у нас возникали проблемы», вспоминает хозяйка.
В гостях: Ремонт трёхкомнатной квартиры за 7 недельОксана Рябинкина
Все решения приходилось принимать очень быстро, и на полноценную визуализацию не хватило времени. Сложностей добавляло и то, что в интерьер требовалось вписать мебель из прошлой квартиры. С другой стороны, крупные предметы — такие, как розовый диван стали своеобразными якорями, к которым подтянули остальные декоративные решения. Например, жёлтые шторы хозяйка сначала купила для спальни, но в итоге перенесла в гостиную, связав их с оттенком дивана через декоративные подушки.
В гостях: Ремонт трёхкомнатной квартиры за 7 недельОксана Рябинкина
Идея и решение: Большую часть мебели купили в ИКЕА, правда, кое-что пришлось кастомизировать. Тумбу под телевизор хозяйка покрасила в цвет стен: это был первый и, к счастью, удачный опыт.

«Поездки в ИКЕА у нас были с флёром романтики, с обязательным посещением их ресторана. Мы очень полюбили эту сеть, даже посетили самый крупный и старый магазин ИКЕА в Стокгольме, познакомились с историей создания, биографией Ингвара Кампрада», вспоминает Оксана.
В гостях: Ремонт трёхкомнатной квартиры за 7 недельОксана Рябинкина
Кухне достался холодный зелёный оттенок, который хорошо сочетается с графичной плиткой, такой же материал использовали в прихожей.
В гостях: Ремонт трёхкомнатной квартиры за 7 недельОксана Рябинкина
Одним из главных акцентов стала пробковая карта мира на стене. «В своё время я подарила её мужу на юбилей, но мы её долго не вешали, только в этой квартире она обрела постоянное место. К этому моменту карты уже стали распространённым видом декора, но муж настоял, чтобы она всё-таки появилась в интерьере. И не зря: гости любят рассматривать карту с отметками о наших путешествиях, она стала центром притяжения», рассказывает дизайнер.
В гостях: Ремонт трёхкомнатной квартиры за 7 недельОксана Рябинкина
Кухонная мебель «Стильные кухни»

От верхних шкафов решили отказаться: «Я учитывала свой опыт работы на кухне, и мне они всегда только мешали. Но чтобы хранение было полноценным, всю левую часть кухни мы выделили под встроенные шкафы от пола до потолка. Наверху стоят предметы, которыми мы редко пользуемся. Те самые, что обычно занимают место в верхних шкафах», — отмечает хозяйка.

Стену над рабочей поверхностью выделили мраморной мозаикой.
В гостях: Ремонт трёхкомнатной квартиры за 7 недельОксана Рябинкина
В спальне поначалу хотели выделить гардеробную, но отказались от этих планов, чтобы освободить место на случай, если потребуется поставить детскую кроватку.

В этой комнате тоже использовали мебель из прежней квартиры двуспальную кровать. Правда, в оригинале у неё было кожаное изголовье: солнечной жёлтой тканью его обила хозяйка, причём своими руками.
В гостях: Ремонт трёхкомнатной квартиры за 7 недельОксана Рябинкина
Детская для девочки 12 лет самая яркая комната в квартире. Акцент сделали даже на плинтус и потолочный карниз (в остальных помещениях он в цвет стен). Жёлтые и розовые акценты появились в интерьере по просьбе юной хозяйки. Правда, в этом возрасте всё быстро меняется: теперь ей нравятся чёрный и кислотные оттенки.
В гостях: Ремонт трёхкомнатной квартиры за 7 недельОксана Рябинкина
Проблема и решение: Белую плитку изначально уложили с тёмными швами. Но строитель сделал это так плохо, что контрастная затирка только подчёркивала недостатки. Хозяйке пришлось самостоятельно вынимать затирку и менять её на белую: раскладка плитки сразу стала смотреться аккуратнее.
______________________________

ОБ АВТОРЕ ПРОЕКТА…
Перейдите на страницу Оксаны Маршаловой, чтобы изучить другие работы из портфолио дизайнера
В изолированном санузле появился яркий акцент: стену над инсталляцией покрасили в оранжево-коралловый оттенок, сочетающийся с цветом дивана в гостиной. Таким образом, за счёт деталей, в интерьере появилась визуальная перекличка.
_____________________________

МЫ ЛЮБИМ ХОДИТЬ В ГОСТИ
Хотите стать героем следующей статьи? Напишите на editorial@flatica.ru и приложите несколько фотографий своего интерьера (достаточно съёмки на смартфон). Мы обязательно свяжемся с вами, если примем решение о публикации

Комментарии 50

Sveta S

5 л.

очень скучный интерьер
Ни о чем. Почему Это называют дизайнерским проектом. Ни одной дизайнерской мысли. Разве что... есть одна: розовый диванчик отличается своей местечковой нелепостью. Простенько и чистенько. Лучше бы наняли профессионала.
Для первого проекта все просто невероятно! Автору успехов в будущих проектах, вы большая молодец!

Оставьте комментарий

Читать похожие статьи