В гостях: Нескучная квартира в Челябинске для семьи дизайнера

На цветовое решение повлиял закат, каждый вечер освещающий гостиную, а скандинавскую стилистику выбрали за простоту

Екатерина Перминова
Екатерина Перминова

9 июля 2020

Обновлено 31 окт. 2020

Постоянный автор HouzzRu, журналист

В своей квартире дизайнер Денис Тарасенко реализовал концепцию «нескучной Скандинавии». Жилье расположено в современном районе Челябинска, и архитектура дома косвенно повлияла на выбор стилистики — сразу исключили классику, лофт и многие другие стили.
«Семья дизайнера всегда открыта для экспериментов, — говорит Денис. — Со стилем и цветовой гаммой мы определились довольно быстро: окна квартиры обращены на запад, каждый вечер можно смотреть на заходящее за горизонт солнце. Поэтому цвета заката легли в основу цветового решения для всего интерьера. А скандинавский стиль выбрали, потому что хотелось сделать все максимально просто».
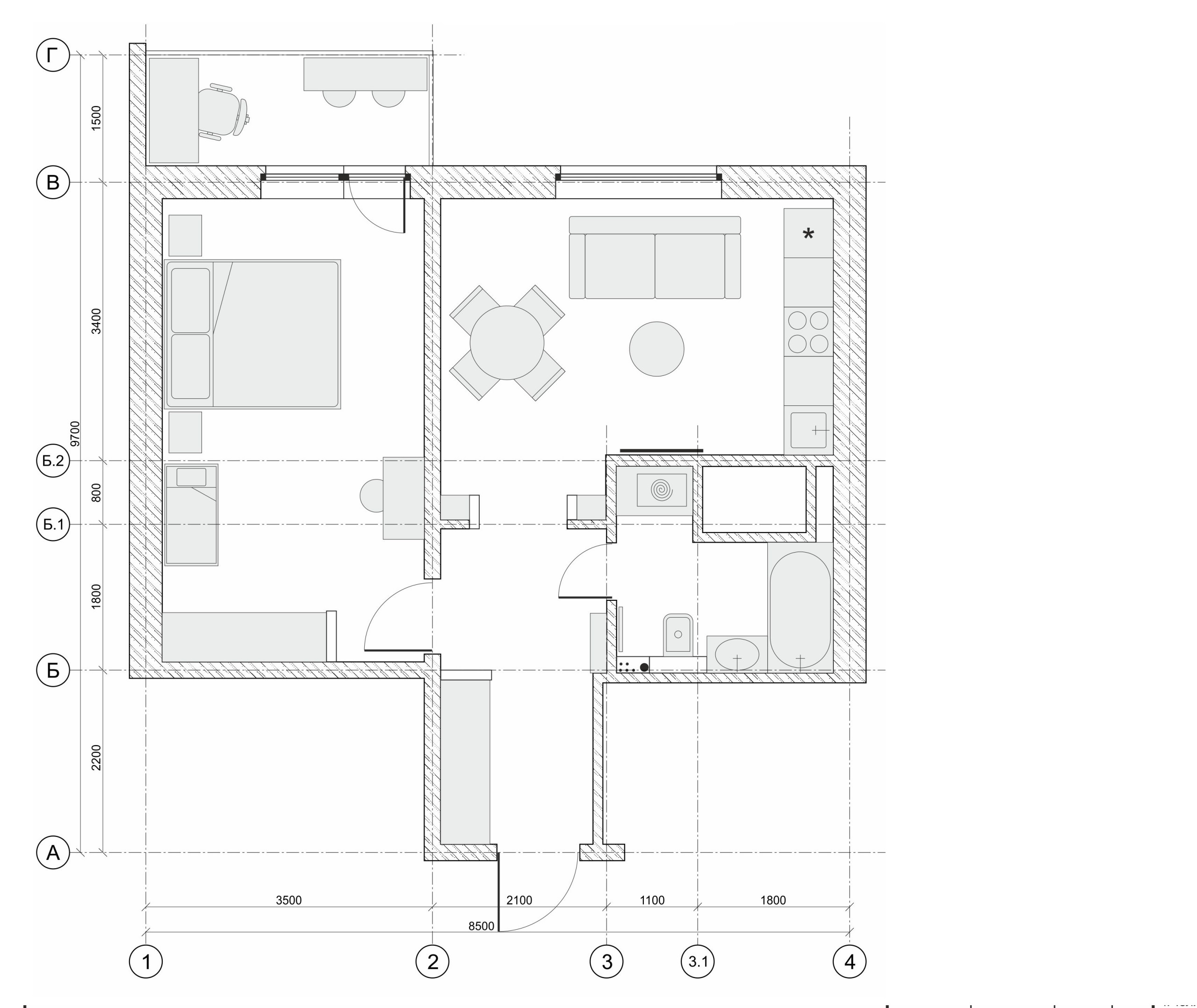
О проекте
Где: Челябинск
Размер: 47,2 кв.м
Кто здесь живет: дизайнер Денис Тарасенко с женой и двумя детьми
Фото: Наталья Горбунова
Стиль: Олеся Тарасенко

—————————————
В ВАШЕМ ГОРОДЕ…
Через Houzz можно нанять дизайнера или архитектора в любом городе и стране. Начать поиск специалиста
—————————————
Выбирая квартиру, Денис сразу учитывал желаемую планировку: возможность объединить кухню с гостиной и изолировать спальню.

«Впервые я увидел пространство, когда не было стен. Было очень просторно, но без стен жить невозможно, особенно на Урале, — рассказывает дизайнер. — Так как мы искали квартиру с подходящей под нужды семьи планировкой, изменения в ней не потребовались. Единственная корректировка касалась выводов под сантехнику, застройщик предложил неподходящий для нас вариант».
Семья очень любит проводить время вместе: по вечерам дети и родители собираются в гостиной, чтобы почитать сказки на ночь. Для этого здесь организовали большой стеллаж, с полок которого старшая дочка каждый вечер выбирает одну из книг.

На стеллаже также хранится большое количество декора, привезенного из морских поездок и других путешествий.
«Еще мы коллекционируем работы молодых челябинских художников, — рассказывает Денис. — Нашу квартиру украшают в том числе работы художницы Анастасии Лимоновой. В гостиной её живопись поддержала идею заката, а изображение рыбы добавило дух тропиков».

Отреставрированное розовое кресло под картиной художницы — подарок бабушки. Еще в квартире есть статуэтки, напоминающие о ней, и корзины, сплетенные прадедушкой супруги.
Определенные ограничения в будущий интерьер внесла необходимость большого числа мест для хранения. Квартира небольшая, поэтому кухонный гарнитур и все шкафы, в том числе и в ванной комнате, изготовлены до потолка и сделаны не контрастными, а выкрашены в основной цвет стен, чтобы визуально растворились в интерьере.
Обратите внимание: акцент на нейтральной по цвету кухне поставили с помощью раскладки фартука, напоминающей орнамент известного дома Missoni.
Больше всего в собственной квартире Денису нравится оформление обеденной группы. Форма зеркала в бронзовой раме повторяет форму стола и одновременно напоминает заходящее за горизонт солнце — этот эффект усиливается на закате.
«Обилие зелени и оттенков розового, немного цвета юкка на стульях и текстиле, ковер, сочетающий в себе множество оттенков морской волны — ощущение, будто находишься не в Челябинске, а намного южнее», — поясняет Денис.
Атмосферу тропиков перенесли и в ванную. Словно в экзотическом саду с люстры свисают белоснежные ветви. Белый выбрали, чтобы не привлекать много внимания. По той же причине этот цвет стал основным в помещении. Акцентный орнамент, напоминающий Missoni, повторили на стене за ванной.

На чем сэкономили: плитку выложили не до потолка. Это помогло сэкономить на работах и одновременно визуально приподнять потолок, сделав помещение просторнее.
Ламинат Pergo; плитка Kerama Marazzi; двери ProfilDoors; люстры Lussole и Favourite; розетки и выключатели Legrand; краска Derufa

В целях экономии пространства вся встроенная корпусная мебель выполнена по индивидуальным эскизам и размерам. Несмотря на небольшой бюджет, отделочные материалы выбирали у проверенных в других ремонтах производителей.
Единственной сложностью для Дениса было найти время начертить собственный проект. Поэтому интерьер частично додумывали уже после переезда. Например, в спальне долгое время были однотонные стены. Лишь со временем на них появились полосы, напоминающие тени от перголы.
Кровать Diron; встроенная мебель Stilliano; бокалы, разнос Zara; комод IKEA

В спальне повторили цветовое решение гостиной, но особый шарм сюда привносят античные бюсты и люстра, напоминающая пляжную шляпу.
Рисунок ковра перекликается с работой Анастасии Лимоновой и одновременно имитирует мраморный слэб. Картины художницы, по мнению дизайнера, распахнули в спальне два дополнительных окна — одно с видом на море, второе — на набережную Сены.
ОБ АВТОРЕ ПРОЕКТА…
► Перейдите на страницу Дениса Тарасенко, чтобы изучить другие работы в портфолио дизайнера
МЫ ЛЮБИМ ХОДИТЬ В ГОСТИ
Хотите стать героем следующей статьи? Напишите на editorial@flatica.ru и приложите несколько фотографий своего интерьера (достаточно съёмки на смартфон). Мы обязательно свяжемся с вами, если примем решение о публикации

Комментарии 35

розовый цвет обычно пошло смотрится, но в этом интерьере оттенки розового такие красивые! очень понравилась вся квартира по цветовой гамме, залюбуешься! И рассматривать детали - скульптура, цветы, безделушки, книги - все это делает пространство "живым" и индивидуальным. Отличная работа!
Обеденная группа? В семье 4 человека. Малюсенький столик на 2 тарелки и три сидячих места, упираясь локтями друг в друга. А где отобедает четвертый член семьи? На коврике! О гостях в этом смысле лучше вообще умолчать. Удобства быта в угоду сомнительной красивости рамок и прочей чепухи. Ах, горе дизайнеры, вы не понимаете чего-то самого главного в своей профессии.
Alya

5 л.

обилие "чужих отрубленных голов" детям полезно для развития вкуса, психологи говорят, что детские воспоминания и впечатления более стойкая вещь, чем принято считать. не только безопасность важна. да и чем опасен гипс?

Оставьте комментарий

Смотреть похожие темы

Читать похожие статьи