logo

В гостях: Лофт в Твери с кроватью под ванной

Под квартирой на третьем этаже владельцы неожиданно нашли глубокий подпол. Он и подсказал идею для перепланировки

Евгения Назарова
Евгения Назарова

26 февр. 2018

Обновлено 11 мар. 2018

Постоянный автор Houzz, интерьерный журналист

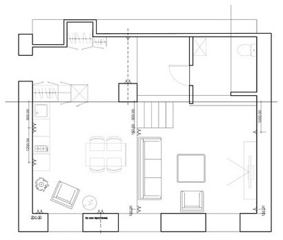
Дмитрий Иевлев купил квартиру в Твери, чтобы останавливаться здесь во время поездок к родственникам. За преобразование убитой двушки новый владелец взялся сам, без дизайнерского опыта. И квартира оказалась находкой для внимательного исследователя. Бывшая « двушка » превратилась в двухуровневую студию, а спальня оказалась… прямо под ванной. О проекте Место: Тверь Размер: 45 кв.м Кто здесь живёт: Дмитрий Иевлев с супругой и маленькой дочерью Автор проекта: хозяин квартиры Фото: Полина Иванова
Дом 1953 года постройки когда-то считался в Твери элитным. За фасадом с башней селились в основном обладатели высоких должностей. Правда, внутри квартиры об этом прошлом ничто не напоминало: « двушка » с крошечной кухней производила печальное впечатление. Обои с покраской через трафарет, разбитая плитка в ванной, потрепанный пол — так выглядит каждая вторая квартира в старом фонде. Но когда прежнюю отделку начали демонтировать, сюрпризы посыпались один за другим.
Под квартирой обнаружился огромный подпол, который владелец никак не ожидал увидеть на третьем этаже. Его существование объяснялось тем, что часть квартиры находится над аркой. Прежние владельцы использовали подпол по назначению: спускались в него через люк и хранили там соленья. Дмитрий же решил его вскрыть — благодаря этой особенности квартира стала двухуровневой.
Так выглядела квартира до ремонта
Стиль нового интерьера — смесь скандинавских и лофт-мотивов. Первые близки владельцу, вторые подсказаны конструктивом квартиры. Белый кирпич на стенах освободили от старой отделки и подновили краской. Кирпичная колонна, разделяющая коридор и жилую часть — единственное, что осталось от прежней планировки. Избавиться от этого несущего элемента оказалось невозможно. На чем сэкономили: Серый керамогранит во входной части — такой же, как и в ванной комнате. Чтобы не заказывать новую партию, Дмитрий оформил прихожую остатками материала.
Вдоль коридора протянулся большой шкаф, сделанный на заказ. Его каркас собран из ДСП, фасады — из фанеры: этот материал стал в интерьере одним из основных. Секции шкафа разной глубины. В левой части она составляет 80 см — раньше на этом месте находилась кладовая, теперь там скрыты распределительный щиток, пылесос, сушилка для белья и крупный инвентарь. Правые секции не такие глубокие, порядка 35 см, они предназначены для одежды.
Когда стало понятно, что от подпола можно избавиться, Дмитрий решил опустить вниз и ванную комнату. Но оказалось, санузел стоит на бетонной обрешетке и металлических балках, и разобрать эту конструкцию невозможно. Зато под ванной появилась широкая глубокая ниша, которая подсказала неожиданную идею для спальни. Кровать расположили прямо под ванной и сделали выкатной. Учитывая полную гидроизоляцию ванной и металлические балки, это безопасно. Кроме самой кровати, в нише обустроили небольшие шкафы с серыми створками. Левее, уже под зоной прихожей, тоже удалось сохранить нишу. Пока её занимают остатки стройматериалов, но в будущем Дмитрий собирается организовать там домик для детских игр. Обратите внимание: Узкая полка вдоль всей стены студии образовалась из-за выступа, на который крепились балки пола. Теперь здесь хранится коллекция камней.
Все полы в студии сделаны из листов фанеры толщиной 18 мм. Размеры стандартного листа (1,5х1,5 м) уменьшили до квадратов со стороной 1,2 м прямо на месте, чтобы отследить полную стыковку углов. На этом решении настоял прораб — кстати, уже третий из работавших на стройке. « Со строителями нам не повезло: бригады меняли несколько раз, а ремонт растянулся на год. Последняя бригада переделывала 80% работ за предшественниками » , — рассказывает Дмитрий. Потолки хотели сделать черными, а электрику смонтировать открытым способом. От этого плана отказались из-за деревянных перекрытий: оказалось, что через микрощели в потолке слышно все, что происходит у соседей. Чтобы защитить квартиру от шума, потолок смонтировали с виброподвесами. И сделали в итоге белым, чтобы интерьер смотрелся светлее и воздушнее.
Большую часть мебели для интерьера сделали на заказ. Исключением стали журнальные столики из ИКЕА и диван в гостиной, купленный на распродаже FChairs за 10 000 рублей. Потолочный светильник-паук — разработка Дмитрия, которую владелец собрал по частям: заказал из Англии плафоны и отдельно — провода в декоративной оплетке. В ходе сборки оказалось, что лампочки не вкручиваются в патроны. Специальные переходники пришлось искать на Ali Express.
В квартире три окна, и два из них (в гостиной) увеличили во время ремонта. « Из-за того, что мы опустили уровень пола, окна оказались слишком высоко, до них невозможно было дотянуться рукой. К счастью, этот фасад дома выходит во двор, поэтому вмешательство в архитектурную часть удалось согласовать » , — рассказывает владелец. Подоконники сделали из двух склеенных листов фанеры под побелкой, а трубчатые радиаторы заказали на производстве КЗТО. Все коммуникации для отопления спрятаны внизу — за плинтусом, под слоем гальки. Эту идею Дмитрий подсмотрел в ресторане, но нижним слоем решил засыпать керамзит: он легче, чем камни, и нагрузка на пол становится не такой существенной.
Первый и второй уровни зонирует перегородка, спроектированная и собранная Дмитрием. Её первый уровень — декоративный, с каспийской галькой и травами в горшках. Второй отведен под книги: чтобы они не падали на диван, полки дополнили горизонтальным алюминиевым рейлом.
Кухня с фасадами из окрашенной фанеры — визуальное продолжение шкафа в прихожей: он разделяет две разные по функционалу зоны. В нижнюю линию кухонных шкафов встроены духовой шкаф и посудомоечная машина, а наверх, в ряд открытых полок, вписали микроволновку. На чём сэкономили: Стол из ИКЕА дополняют стулья, купленные через интернет — каждый стоил около 2500 рублей. Все светильники (кроме авторской люстры) — с Ali Express. Столешница кухни выполнена из массива березы: Дмитрий сам распилил материал и покрыл его маслом.
Ванная отделана керамогранитом двух видов в сочетании с кирпичом старых стен, который подновили краской. Несмотря на тёмную отделку, здесь довольно светло: свет попадает в ванную через три внутренних окна. Окна тонированы плёнкой: из гостиной не видно, что происходит в ванной. Душевую кабину собрали на месте из плиточного поддона и двух стеклянных створок. Сэкономить не удалось разве что на начинке — лейке с терморегулятором и функцией тропического душа. Слева от унитаза предусмотрели скрытый люк: в образовавшейся нише спрятали водонагреватель на 80 литров.
Столешницу под раковину, которая переходит в полку над стиральной машиной, Дмитрий спроектировал сам, а к онструкцию из металлопрофиля сварили местные тверские сварщики . Справа предусмотрена тумба с тремя ящиками, на которую опирается подстолье. МЫ ЛЮБИМ ХОДИТЬ В ГОСТИ… Хотите стать героем следующей статьи? Напишите на editorial@flatica.ru и приложите несколько фотографий своего интерьера (достаточно съемки на смартфон). Мы обязательно свяжемся с вами, если примем решение о публикации!

Комментарии 108

Интерьер и воплощение - все супер! А какой класный санузел! Что тут скажешь - молодец хозяин. Удачи во всем!
Мне очень понравился проект, молодцы
Квартира хороша, тем более это гостевая, где не живут постоянно. Все продумано, ничего не раздражает.

Оставьте комментарий

Читать похожие статьи