logo

В гостях: Лофт с арочным окном и гостиной на подиуме

Многоуровневое пространство с белыми стенами и черной душевой как результат нестандартных архитектурных решений

Евгения Назарова
Евгения Назарова

29 авг. 2016

Обновлено 29 сент. 2016

Постоянный автор Houzz, интерьерный журналист

Архитектура сталинского периода так же монументальна, как и непредсказуема: кроме просторных квартир с трехметровыми потолками в этих домах можно найти и неожиданные по планировке пространства с богатым потенциалом. Одно из них бывшая мастерская художника с арочным окном, которую архитекторы Андрей Свиридов и Арсений Афонин полностью перестроили для нового владельца, управляющего партнера коммуникационного агенства Максима Перлина.

Благодаря сложным архитектурным решениям лофт на Русаковской набережной выиграл больше 10 квадратных метров дополнительной площади, а высокие потолки позволили организовать четыре уровня пола и семь функциональных зон. Чтобы создать эстетику индустриального пространства, а заодно уложиться в небольшой бюджет, большую часть мебели сделали на заказ. В общей сложности реализация проекта заняла пять месяцев, включая все планировочные, монтажные и столярные работы.

О проекте
Место: Москва, Русаковская набережная
Размер: После ремонта площадь квартиры увеличилась с 54 до 65 кв.м
Кто здесь живет: Максим Перлин, управляющий партнер Black Light Agency
Автор проекта: Андрей Свиридов, Арсений Афонин, архитектурное бюро «Схема»
Фото: Юрий Гришко
Владелец лофта Максим Перлин не планировал покупать жилье в Москве, считая этот шаг экономически нецелесообразным, но помещение заставило играть по своим правилам, выставив в качестве главного козыря потрясающее арочное окно. « Мне нравятся необычные пространства и сам формат лофта — но только в том случае, если это не стилизованный под индустриальное помещение новодел. Эта квартира — с историей: раньше здесь находилась мастерская художника, а до нее — коммунистический уголок » , — рассказывает Максим. Бывшая мастерская — единственная часть дома, которая прежде считалась непригодной для жизни. Дело в том, что пространство углублено внутрь здания на три метра: сюда попадает не так много света, но недостаток инсоляции отчасти компенсируют потолки высотой 4,2 м.
В гостях: Лофт с арочным окном и гостиной на подиумеЮрий Гришко
От прошлого здесь осталось немало деталей: снимая обои, строители нашли под ними газетные портреты Ленина, а бывший владелец-художник оставил в мастерской некоторые работы. О богатой биографии пространства говорило и плохое состояние отделки — особенно выбитые стекла и ржавые рамы. Над планировкой прежние хозяева мастерской тоже особенно не размышляли: зонирование сводилось к тому, что ванную комнату огораживала полуразрушенная стена.
В гостях: Лофт с арочным окном и гостиной на подиумеЮрий Гришко
« Перед нам стояли три основные задачи: превратить нежилое пространство в жилое, вместить весь функционал и сделать это максимально бюджетно » , — делятся архитекторы проекта Андрей Свиридов и Арсений Афонин. Некоторые отделочные решения, характерные для индустриальной эстетики, применили в том числе ради экономии: так, стены в квартире решили не выравнивать, а для покрытия выбрали штукатурку с фактурой. Вместо готовой доски для пола закупили массив лиственницы: постобработкой материала занимались строители, привлеченные для ремонта.
В гостях: Лофт с арочным окном и гостиной на подиумеЮрий Гришко
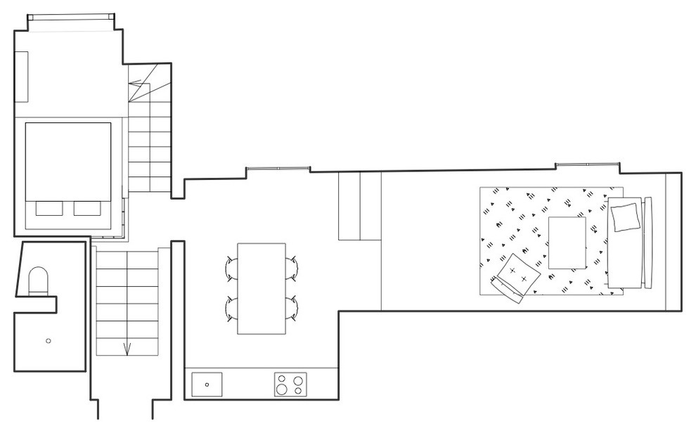
Вместо изолированных комнат в многоуровневом пространстве организовали функциональные зоны: прихожую с двумя лестницами, гостиную на длинном подиуме, кухню-столовую, компактный санузел, четырехметровую душевую и спальню-капсулу над просторной гардеробной. Вход в квартиру начинается с лестницы, которая спускается на нулевой уровень. Прямо напротив входа расположен подъем в спальню, слева — технический блок с санузлом, душем и гардеробной, справа — общее пространство кухни и гостиной.
Планировочное решение в объеме: синими контурами отмечены технический блок с санузлом и душевой.
В гостях: Лофт с арочным окном и гостиной на подиумеЮрий Гришко
Сложнее всего, по словам архитекторов, оказалось правильно распорядиться квадратными метрами — так, чтобы акцентировать окно и функционально задействовать объем помещения. « Каждый элемент интерьера продуман для улучшения пространственных качеств, —рассказывают Андрей Свиридов и Арсений Афонин. — В какой-то момент мы пришли к решению сделать подиум, который даст возможность наблюдать окно на всем пути вдоль внешней стены гостиной » . Раньше посмотреть в него можно было лишь в двух точках — там, где начинается и заканчивается арка.
В гостях: Лофт с арочным окном и гостиной на подиумеЮрий Гришко
Чтобы окно стало полноценной точкой притяжения внимания, уровень пола гостиной подняли на 1,2 м. Само окно утеплили и дополнили линейной подсветкой. Подиум, на котором расположили гостиную, позволил решить не только планировочную задачу, но и вопрос хранения: под полом расположена импровизированная кладовая (глубиной более 5 м). На границе между гостиной и кухней повесили механический экран проектора, который изолирует зоны друг от друга.
В гостях: Лофт с арочным окном и гостиной на подиумеЮрий Гришко
80% мебели и аксессуаров сделали на заказ по эскизам архитекторов, включая деревянный подиум и светильники из металлического профиля, которые хорошо вписались в индустриальную эстетику интерьера. Владелец квартиры активно участвовал в процессе комплектации: так, кожаный диван появился в гостиной по инициативе Максима.
В гостях: Лофт с арочным окном и гостиной на подиумеЮрий Гришко
Каркас для стеллажа сварили специально для этого проекта, а полки выполнили из древесины под маслом. Открытая система работает как витрина для аксессуаров: некоторые из них — например, печатная машинка отца — часть семейной истории Максима. Другие владелец привез из поездок. « Я люблю предметы с блошиных рынков, — отмечает Максим, — и оцениваю их не столько как историческую ценность, сколько с точки зрения эстетики. Бидону, который занимает центральное место на верхней полке, порядка 150 лет — я привез его из Франции » .
Открытая кухня-столовая расположилась на нижнем уровне, между зонами прихожей и гостиной. « Когда мы только начали работу, Максим сказал, что ему нужна очень маленькая кухня, так как он почти не ест дома. Но в процессе ремонта стало понятно, что кухню лучше увеличить » , — отмечают авторы проекта. Впрочем, архитектору и владельцу одинаково хотелось уйти от стандартных представлений о кухне, поэтому лаконичный гарнитур и обеденную зону максимально деликатно интегрировали в индустриальное пространство.
В гостях: Лофт с арочным окном и гостиной на подиумеЮрий Гришко
Подобно доскам для пола, все фасады гарнитура заказали в необработанном виде и « довели до ума » своими силами. Деревянную столешницу нашли у российского бренда Archpole и поставили на опоры, отлитые из бетона. Из этого же материала сделана столешница линейного кухонного гарнитура. Стулья — качественные реплики известных моделей, решенных в индустриальной стилистике.
В гостях: Лофт с арочным окном и гостиной на подиумеЮрий Гришко
Особо изобретательного подхода неожиданно потребовал… холодильник. « Стандартная высокая модель стала бы доминантой интерьера кухни, а нам этого не хотелось, — отмечают архитекторы. — В результате мы спрятали за фасадами под столешницей целых два маленьких холодильника » .
В гостях: Лофт с арочным окном и гостиной на подиумеЮрий Гришко
В квартире всего два окна, и второе досталось спальне, организованной на одном из верхних уровней. Чтобы отгородить зону отдыха, архитекторы использовали стеклянные профили: за счет прозрачности конструкции свет попадает и в прихожую. Кроме того, за матовым стеклом спальня не кажется полностью изолированной от общественного пространства.
В гостях: Лофт с арочным окном и гостиной на подиумеЮрий Гришко
В квартире предусмотрена канальная система кондиционирования. « Трубы можно было скрыть, но Максима устраивал их индустриальный облик, так что система осталась открытой » , — комментируют Андрей Свиридов и Арсений Афонин. Согласно планировке, спальня чуть нависает над ванной: чтобы спрятать технические элементы системы системы кондиционирования и бойлер, потолок ванной пришлось существенно понизить. На нижнем уровне расположилось также помещение гардеробной.
В гостях: Лофт с арочным окном и гостиной на подиумеЮрий Гришко
Вместо обычной кровати в спальне смонтировали еще один подиум. « В своих проектах мы довольно редко используем подиумы, однако в квартире на Русаковской они стали органичным решением » , — отмечают Андрей и Арсений.
В гостях: Лофт с арочным окном и гостиной на подиумеЮрий Гришко
« Оформляя пространство, мы мыслили модулями, — подчеркивают архитекторы, — и каждому из них досталась своя атмосфера » . Блок санузла решен в простых линиях и светлых тонах, а вот соседней душевой придали совсем иное настроение.
В гостях: Лофт с арочным окном и гостиной на подиумеЮрий Гришко
Поскольку все технические системы разместились над основным помещением ванной, в душевой не пришлось экономить место: ее высота составляет целых 4 м. « Это абсолютно темная комната, покрытая черной мозаикой от пола до потолка, — отмечают Андрей Свиридов и Арсений Афонин. — Теплую подсветку дают три точечных источника: два из них расположены внизу, третий — сверху. Таким образом в душевой удалось создать эффект грота и спокойную атмсоферу » .
План квартиры МЫ ЛЮБИМ ХОДИТЬ В ГОСТИ… Хотите стать героем следующей статьи? Напишите на editorial@flatica.ru и приложите несколько фотографий своего интерьера (достаточно съемки на смартфон). Мы обязательно свяжемся с вами, если примем решение о публикации!

Комментарии 24

Vrotband, про кучу вещей-это ваша версия, также как и про многодетные семьи, а выше был вопрос, про то куда вешать верхнюю одежду хотя бы. Благодаря чтению критикующих мне удалось избежать массы ошибок в своих ремонтах.
vrotband

7 л.

Не надо выстраивать свои версии про кучу вещей и гардероб, про двухэтажную кухню для многодетной семьи. Это штучный вариант и он прекрасен!! Давайте просто одобрим его и не будем критиковать
N N

9 л.

А какой это этаж? Судя по пейзажу за окном либо первый либо второй. Интересно, что между рамами окна? Там пространство большое.

Оставьте комментарий

Читать похожие статьи