logo

В гостях: Квартира со скошенными стенами на Речном

Две спальни, огромная гардеробная, постирочная и spa на 50 метрах — поместилось все!

Евгения Назарова
Евгения Назарова

1 авг. 2018

Обновлено 26 авг. 2018

Постоянный автор Houzz, интерьерный журналист

В гостях: Квартира со скошенными стенами на РечномDiana Maltseva
Диана Мальцева создала интерьер для двух заказчиц: мамы Маргариты и дочки Таши, причём техническое задание получила от обеих. Мама попросила учесть её увлечение юго-восточной Азией: использовать натуральные материалы, придерживаться песочной гаммы, но не переусердствовать с азиатской атрибутикой. Таша мечтала, чтобы в её комнате было как можно больше синего — это её любимый цвет. Дизайнер учла все пожелания и создала выверенную до миллиметра планировку в апартаментах площадью 50 кв.м.

О проекте
Место: Москва, м. «Речной вокзал»
Размер: 50 кв.м
Кто здесь живёт: Руководитель департамента профессиональных стоматологических программ в международной компании Маргарита Кобахидзе с десятилетней дочерью Ташей
Автор проекта: Диана Мальцева, «Oh,boy! Интерьеры с мужским характером»
Фото: Юрий Гришко
В гостях: Квартира со скошенными стенами на РечномDiana Maltseva
К будущему дому Маргарита присматривалась несколько лет: к счастью для неё, застройщик затягивал сроки сдачи. К тому моменту, когда появились деньги на покупку квартиры, в доме как раз распродавали последние площади. И ради жилья на 23 этаже хозяйка решила пожертвовать метражом: за те же деньги в старом фонде можно было купить квартиру побольше.

Тогда же стало понятно, что без дизайнера не обойтись: на 50 кв.м требовалось разместить две полноценные спальни, кухню с островом и большую гардеробную. В это же время свой ремонт заканчивала младшая сестра Маргариты она и посоветовала обратиться к Диане Мальцевой.
В гостях: Квартира со скошенными стенами на РечномDiana Maltseva
«Поначалу я думала, что дизайнер потребуется только для создания планировки, а уж с ремонтом как-нибудь разберусь. Но меня покорил подход Дианы, и я решилась на проект под ключ. Тем более уже видела готовый ремонт у сестры. Мне кажется, в таких вопросах правильно обращаться к специалисту, который с умом подходит ко всем аспектам ремонта, а не просто показывает красивые картинки», делится хозяйка квартиры Маргарита.
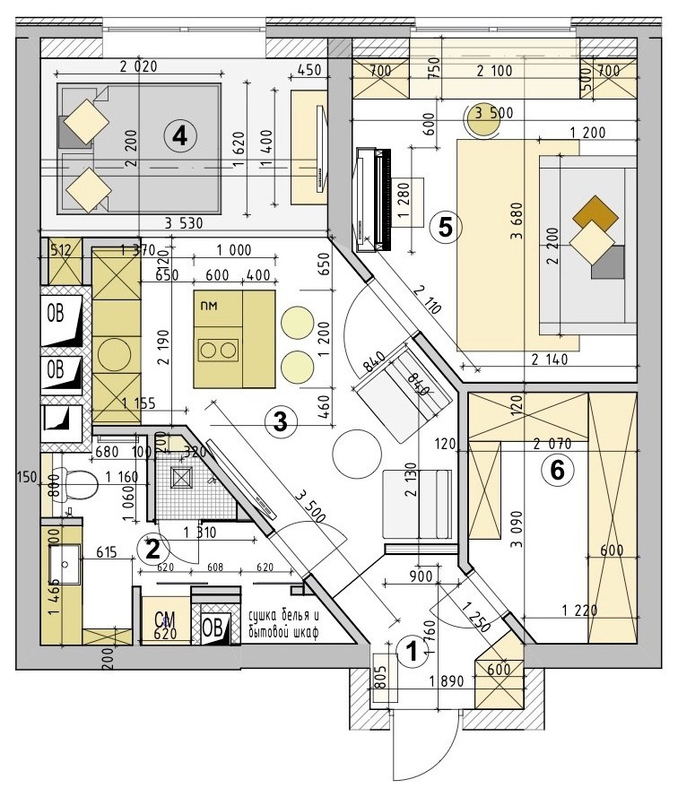
Планировка квартиры

Самым сложным этапом стала планировка. Для дочери решили выделить изолированную комнату, а мама решилась на спальню на подиуме, отделенную от кухни-гостиной реечной перегородкой. Реализовали и давнюю мечту Маргариты большую гардеробную, в которую убрали все вещи. Чтобы компактно разместить все зоны, стены пришлось сделать скошенными.
В гостях: Квартира со скошенными стенами на РечномDiana Maltseva
По словам дизайнера, они с хозяйкой рассмотрели несколько вариантов планировки, но именно этот со скошенными углами показался самым логичным. В квартире всего два окна, одно из которых должно было оказаться в детской. Благодаря зонированию реечными перегородками второе окно стало достаточным источником освещения для всей квартиры теперь свет проникает даже в коридор.

Даже при такой сложной геометрии основные стены в квартире параллельны друг другу. Например, в гостиной, которая занимает транзитное положение между прихожей и кухней, не возникает ощущения, что со стенами «что-то не так».
В гостях: Квартира со скошенными стенами на РечномDiana Maltseva
Интерьер отражает увлечение заказчицы Юго-Восточной Азией. Палитра намекает на любовь хозяйки к морской стихии и серфингу: здесь и графитовый цвет гальки, и серо-бежевые с коричнево-рыжеватыми оттенки песчаных пляжей. Плюс много дерева, как в домах на Бали и других индонезийских «местах силы», где часто бывает хозяйка.
В гостях: Квартира со скошенными стенами на РечномDiana Maltseva
Для отделки пола по всей квартире, кроме прихожей и санузла, выбрали тёплую пробковую доску, по которой приятно ходить босиком. На полу во входной зоне выложили прямоугольник из керамогранита, имитирующий ковёр, более удобный в уборке.

Шкаф для верхней одежды, как и всю мебель в проекте, сделали на заказ. Он тянется до потолка, чтобы поместилось как можно больше вещей, и имеет нестандартную форму, чтобы обыграть сложный угол (это хорошо заметно на плане).
В гостях: Квартира со скошенными стенами на РечномDiana Maltseva
Краска Little Greene; журнальный столик Barcelona Design

Гостиную часть зонирует конструкция из тёмных шпонированных реек (этот же материал использовали, чтобы отделить кухню от спальни).

«Перекрывать такое небольшое пространство дверьми было бы нелогично. В то же время не хотелось, чтобы от кровати просматривалась входная дверь. Рейки стали идеальным компромиссом», — рассказывает Диана Мальцева.

Материал рифмуется с тёплым серым оттенком стен с еле заметными персиковыми нотками. Кстати, в палитре производителя этот оттенок называется Dolphin («дельфин») ещё одна отсылка к морской теме.
В гостях: Квартира со скошенными стенами на РечномDiana Maltseva
Кухню сразу решили делать маленькой: Маргарита предупредила, что не проводит много времени у плиты, и даже отказалась от вытяжки над рабочей поверхностью. Требования к кухонной мебели у хозяйки были другие: «Мне очень хотелось, чтобы на кухне появился остров, а фасады были выполнены в глубоком чёрном цвете. К сожалению, от этого решения отказались: во время совместных походов по салонам мы с Дианой поняли, что они слишком маркие», поясняет Маргарита.
В гостях: Квартира со скошенными стенами на РечномDiana Maltseva
Кухня Nobilia; люстра Loft Designe

В итоге фасады выбрали в оттенке венге: они ламинированные и достаточно демократичные, хотя и выглядят, как натуральный шпон. Во внутренней части острова спрятали посудомойку, а варочную панель на две конфорки вынесли на столешницу.

Столешница и боковые панели острова выполнены из необычного материала гранита с месторождения «Сопка Бунтина». По словам дизайнера, это красивый и очень приятный на ощупь материал.
В гостях: Квартира со скошенными стенами на РечномDiana Maltseva
Спальное место для Маргариты вынесли на подиум. Его зонировали не только рейками, но и пониженным потолком, чтобы сделать границу между помещениями более явной. Под подиумом предусмотрели ящики для хранения: там дожидается очередной поездки в горы сноуборд. В самом подиуме прорезали выемку под размер спального места, чтобы матрас не скользил по поверхности. За кроватью предусмотрели невысокую полку для мелочей, а сбоку открытые секции, которые заменяют тумбочку.
В гостях: Квартира со скошенными стенами на РечномDiana Maltseva
На фото в изголовье Маргарита в одном из путешествий по Азии. Использовать фото хозяйки в интерьере предложила Диана, а напечатать их на досках решила сама Маргарита. Похожая работа есть и в гостиной.
В гостях: Квартира со скошенными стенами на РечномDiana Maltseva
Подставки для хранения Barcelona Design

Шкафа с фасадами под цвет реек не было в проекте. Но когда строители начали возводить стены, из-за конструктивных особенностей дома образовалась ниша. Её решили не зашивать, а использовать как место для дополнительного шкафа.
В гостях: Квартира со скошенными стенами на РечномDiana Maltseva
Панно из проволоки Barcelona Design; двери «Софья»

В санузел ведет дверь в потолок в отделке шпоном ореха. Наверху у двери нет перемычки — так пространство визуально не прерывается.

За перегородкой с резным узором — постирочная. Над стиральной машинкой устроены полки для хозяйственных вещей, там же отдельная секция с вентиляцией для сушки белья, а рядом отсек для швабр и пылесоса.
В гостях: Квартира со скошенными стенами на РечномDiana Maltseva
Каменная раковина Teak House

На чём сэкономили: Напротив входной двери очень высокое зеркало: его планировали заказать целым, но вовремя поняли, что оно не влезет в лифт. Стоимость подъёма на этаж составляла порядка 15 тысяч рублей, поэтому Диана предложила сэкономить. Зеркало разрезали, а затем прикрыли стык столешницей. Зеркало подсвечивается по вертикали с двух сторон.
В гостях: Квартира со скошенными стенами на РечномDiana Maltseva
Керамогранит Impronta

Для отделки санузла использованы два вида керамогранита: под сланец на полу и в душевой, а также покрытие чуть более светлого серого цвета.

«Если честно, душевая моё самое любимое место в доме, признаётся Маргарита, может быть, потому что она больше всего напоминает мне интерьеры Бали. В своих будущих квартирах, какой бы площади они ни были, я всегда буду ратовать за то, чтобы в ванной была именно такая душевая».
В гостях: Квартира со скошенными стенами на РечномDiana Maltseva
В комнате для Таши вырос сказочный синий лес: любовь юной хозяйки к этому цвету обыграли за счёт акцентных обоев. Остальные стены выкрасили в тёплый сливочный цвет.

Широкий рабочий стол интегрировали в систему шкафов и полок, получилась единая конструкция, которая тянется вдоль всей стены. Батарею оставили на своём месте, но прикрыли решёткой, чтобы не привлекать к ней внимание.
В гостях: Квартира со скошенными стенами на РечномDiana Maltseva
Диван и подушки Dantone Home; люстра MH Living; коврик и пуфы Barcelona Design; стул Deep House

Вместительный отсек для белья и одеял предусмотрели внутри самой кровати.
ОБ АВТОРЕ ПРОЕКТА…
Перейдите на страницу Дианы Мальцевой, «Oh,boy! Интерьеры с мужским характером», чтобы изучить другие работы из портфолио дизайнера
__________________________

В ВАШЕМ ГОРОДЕ…
Найдите дизайнера на Houzz в вашем городе — закажите собственный проект

МЫ ЛЮБИМ ХОДИТЬ В ГОСТИ…
Хотите стать героем следующей статьи? Напишите на editorial@flatica.ru и приложите несколько фотографий своего интерьера (достаточно съемки на смартфон). Мы обязательно свяжемся с вами, если примем решение о публикации!

Комментарии 100

Alya

5 л.

Дизайн и колоритика- отлично! Комментарии про "чем кормят ребенка" ужасают, но уже не удивляюсь здесь ничему)) Про подиум вообще нейтрально, людям виднее, где и на чем спать, смотрится это неплохо, атмосферно. Душ суперский! Меня смущает только остров при наличии барной стойки , зачем? кажется он только занимает место....
В ЖК Флотилия вряд ли заканчивались квартиры, там ни один здоровый человек жильё не купит, плохие грунты, рядом зона, попавшая в тотальную Реновацию, Стройка под окнами на ближайшие лет 5. Адские пробки и невозможность выехать хоть куда-нибудь. Статус жилья: апартаменты. Никакой дизайн не спасёт(((
lalearte

7 л.

Мужской интерьер, мне нравится! Только обои в комнате девочки выглядят нелогично, на мой взгляд.

Оставьте комментарий

Смотреть похожие темы

Читать похожие статьи