logo

В гостях: Квартира щедрого сына в Димитровграде

Тот мужчина, который уже дарил квартиру маме, показал Houzz собственное жилье

Евгения Назарова
Евгения Назарова

23 мая 2018

Обновлено 7 июля 2018

Постоянный автор Houzz, интерьерный журналист

Несколько лет назад Михаил Дунаев подарил своей маме квартиру с дизайнерским ремонтом. Мы рассказывали об этом интерьере в статье «В гостях: Подарок для мамы и бирюзовый буфет в Димитровграде». На сей раз Михаил взялся за собственное жильё с уже проверенным дизайнером Светланой Удзилаури.

Новый проект мало напоминает первую квартиру: единственная идея, которую взяли из интерьера для мамы французское окно. Зато семья Дунаевых по-прежнему рада приглашать Houzz в гости для нас это становится приятной традицией!

О проекте
Место: Димитровград
Размер: 90 кв.м
Кто здесь живёт: молодая семья: Михаил и Мария Дунаевы с двумя детьми
Автор проекта: Светлана Удзилаури
В гостях: Квартира щедрого сына в ДимитровградеСветлана Тёпфер
Мария и Михаил выбирали квартиру по нескольким понятным критериям (метражу и зелёному району), но главное недалеко от мамы: в семье двое маленьких детей, и помощь бабушки неоценима.
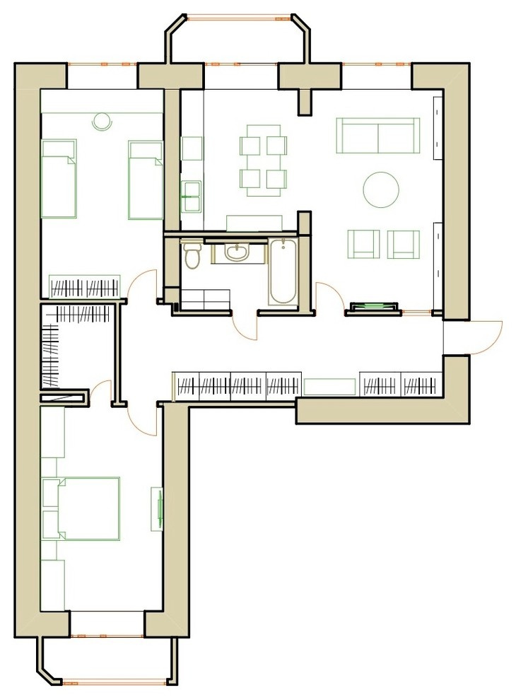
Планировка квартиры

Дизайнера пригласили на этапе выбора квартиры: оценить, насколько легко будет перекроить пространство под нужды семьи, возможна ли перепланировка. Такой подход оказался кстати, ведь выбранную квартиру пришлось изменить: сузить слишком широкий коридор, увеличить ванную и гостиную. В конце бывшего коридора организовали гардеробную со входом из спальни.
В гостях: Квартира щедрого сына в ДимитровградеСветлана Тёпфер
Работа над проектом началась с демонтажа старой отделки. Владельцы в это время задумались о стиле будущего интерьера. Первая концепция, которую предложила Светлана, была разработана в экостиле с лаконичной отделкой и небольшим количеством мебели. В такой свободной квартире дети могли бы даже кататься на велосипедах, но владельцы решили взять паузу и подумать. На следующий день Михаил позвонил дизайнеру и попросил сделать проект ближе к неоклассике: этот стиль больше нравится его супруге Марии.
В гостях: Квартира щедрого сына в ДимитровградеСветлана Тёпфер
«Мне действительно ближе классика с камином, статуэтками и серо-голубыми тонами, которые в итоге появились в интерьере, рассказывает хозяйка квартиры Мария. Я мало участвовала в проекте, не бывала на стройке и не на 100% понимала, как будет выглядеть квартира. Для меня результат стал сюрпризом, как в телепроекте! Сюда не просто нравится возвращаться, даже уходить не хочется. Гости рассказывают, что у нас в доме благоприятная и успокаивающая атмосфера».
В гостях: Квартира щедрого сына в ДимитровградеСветлана Тёпфер
Ламинат Tarkett

На чем сэкономили: Интерьер создавали с прицелом на ближайшие несколько лет. Возможно, в будущем владельцы захотят переехать, так что выделять на ремонт огромный бюджет не было смысла. Этим объясняется выбор материалов. Например, полы оформили ламинатом, двери выбрали из МДФ, а на стенах использовали краску. В коридоре — серо-голубого оттенка. «Я хотела найти цвет воздуха, чтобы стены не давили, растворялись в пространстве. Будь стены немного более серыми, и интерьер казался бы серьезным и брутальным», — поясняет дизайнер. Оттенок стен поддерживает картина с абстракцией в синих и голубых тонах: её написала дочь дизайнера, ученица художественной школы.
В гостях: Квартира щедрого сына в ДимитровградеСветлана Тёпфер
Кирпичная стена единственное, что осталось в интерьере от первоначальной концепции: «В моей квартире точно такая же, и её легко мыть. Я знала, что советую», рассказывает дизайнер.

Напротив расположили линию шкафов, разделенных нишей с тёмным комодом. «Если бы мы не прервали этот ритм, системы хранения создавали бы эффект раздевалки в спортзале», объясняет Светлана.
В гостях: Квартира щедрого сына в ДимитровградеСветлана Тёпфер
Свет попадает в коридор через два остеклённых проёма: один из них глухой и играет роль внутреннего окна, второй дверной, с распашной створкой. Лёгкие алюминиевые конструкции пришлось искать по ближайшим регионам, профильного производителя не нашли ни в Ульяновской области, ни в Казани. В итоге эти конструкции сделала по своим технологиям местная компания, которая занимается окнами и балконными ограждениями. Вышло недорого, так что на сложной системе владельцы даже сэкономили.
В гостях: Квартира щедрого сына в ДимитровградеСветлана Тёпфер
Центральное место между проёмами занял простенок с камином. Его портал решен в неоклассическом стиле, внутри установлена электрическая система с паром и эффектом объёмного огня — пламя выглядит натуралистично. Телевизор утопили в неглубокой нише, чтобы экран встал в единой плоскости со стеной, а провода и коммуникации не бросались в глаза.
В гостях: Квартира щедрого сына в ДимитровградеСветлана Тёпфер
Площадь гостиной 16 кв.м, поэтому Светлана предложила использовать большое зеркало и выстроить для него нишу. «Мне хотелось создать эффект портала, который ведёт в соседнее помещение. Этого невозможно добиться, если зеркало просто висит на стене. Но как только появляются боковые колонны или ниша, образ сразу становится понятным. Поэтому мы и сделали два больших книжных шкафа по бокам от зеркала», поясняет дизайнер. Заодно купили и книги по составленному владельцами списку, в основном мировую классику, которую Мария и Михаил решили перечитать.
В гостях: Квартира щедрого сына в ДимитровградеСветлана Тёпфер
Одним из вызовов проекта стал подбор мебели. Во-первых, в Димитровграде и соседних городах, по словам Светланы, небольшой ассортимент, а постоянно ездить в Москву вместе с заказчиками слишком дорого. Всю мебель для гостиной заказали на интерьерных сайтах: сначала диван, а затем и другие предметы, которые его дополняют и акцентируют.

Во-вторых, неоклассический стиль далеко не антивандальный. Для светлых кресел пришлось заказать специальные чехлы, которые защищают мебель от крошек и пятен. Их снимут, когда дочери немного повзрослеют. Впрочем, у интерьера обнаружился интересный педагогический эффект: «У нас были опасения, что дети всё здесь быстро разнесут, но даже они в этом интерьере стали вести себя приличнее», смеётся хозяйка квартиры Мария.
В гостях: Квартира щедрого сына в ДимитровградеСветлана Тёпфер
Подобрать светильники на сайтах тоже получилось не сразу. Люстра, заказанная для детской, оказалась тёмно-серой, а не голубой, как на картинке; для гостиной пришла люстра с металлом другого оттенка. Оба светильника пришлось вернуть и выбрать новые в местных магазинах. На этом сложности не закончились: когда светильник повесили в гостиной, оказалось, что он даёт очень тусклый свет. Пришлось доплачивать за то, чтобы у люстры заменили начинку.
В гостях: Квартира щедрого сына в ДимитровградеСветлана Тёпфер
Обеденный стол ИКЕА; стулья DG Home; люстры Bohemia

Гостиная связана с кухней широким порталом — он создаёт имитацию анфилады. Буферной зоной между гостиной и кухней служит столовая группа, которая смотрится дороже, чем стоила. «Мы заказали удобные, мягкие стулья по девять тысяч рублей каждый. Единственное, что смущает, ножки не совпадают по цвету с опорой стола, но здесь мы сделали выбор в пользу экономии: стулья с ножками нужного оттенка стоили в два раза дороже», — объясняет Светлана.
В гостях: Квартира щедрого сына в ДимитровградеСветлана Тёпфер
Буфет «Янтарная сосна»

Кухню изначально планировали в сером цвете, но позже владельцы выбрали белые фасады. Дизайнер считает, что так получилось даже лучше — свежее и ярче.
В гостях: Квартира щедрого сына в ДимитровградеСветлана Тёпфер
Идея и решение: За счет остекления с французской решеткой и выходом на балкон кухня смотрится больше. Это принципиальный момент проекта: владельцы сначала выяснили, можно ли демонтировать в этой зоне подоконник, и только потом дали согласие на покупку квартиры.

Интересный нюанс: бортик балкона оформлен зеркалом с нарисованной на нём решёткой. Этот приём тоже работает на увеличение пространства и света.
В гостях: Квартира щедрого сына в ДимитровградеСветлана Тёпфер
Изголовье в спальне оформили тканевыми панелями: чтобы их смонтировать, по бокам нарастили выступы. На стене напротив сделали то же самое, чтобы создать характерную для неоклассики симметрию. Ещё один классический приём каминный портал из мрамора: в отличие от гостиной, здесь его декорировали свечами.
В гостях: Квартира щедрого сына в ДимитровградеСветлана Тёпфер
Кровать «ОГОГО обстановочка»; прикроватные тумбы «Янтарная сосна»

Все шторы в интерьере лаконичные, но подобраны под цвет обстановки: «У нас в городе три салона штор. Когда я начинаю работать над проектом, то просто прохожу их подряд. Так удаётся подобрать весь текстиль для интерьера», рассказывает Светлана. Все карнизы скрытые, это дешевле, чем подбирать красивый декоративный карниз.
В гостях: Квартира щедрого сына в ДимитровградеСветлана Тёпфер
Всю мебель для детской купили на распродаже в Hoff задолго до того, как была готова отделка комнаты. «Мы решили, пусть лучше мебель полежит и подождет своего часа. Где мы ещё купим всё, что нужно для детской, за двадцать тысяч рублей?» рассказывает Светлана.

В этот список покупок не попал разве что стол. Его смастерили из огромной столешницы и двух тумб с выдвижными ящиками. Столешница неслучайно тянется от стены до стены: важно было, чтобы за столом во время занятий помещались и мама, и обе дочери.
В гостях: Квартира щедрого сына в ДимитровградеСветлана Тёпфер
На чем сэкономили: Светлана предложила подстраховаться и защитить нижнюю часть стен на тот случай, если дети решать проявить художественный потенциал. Но дорогие панели буазери не вписывались в бюджет. Тогда стены оформили вагонкой под белой краской их легко подкрасить, даже если на досках появятся рисунки.
Стены и пол в ванной оформили керамогранитом Kerama Marazzi нейтрального оттенка: «Материал недорогой, но смотрится не хуже, чем итальянская плитка», отмечает Светлана. Мебель сделали на заказ у местного производителя. Душевая шторка — двухслойная: с внешней стороны декоративная органза, внутри непромокаемая основа.

СМОТРИТЕ ТАКЖЕ…
Другие кадры из этого проекта — полную съемку — смотрите в профиле дизайнера Светланы Удзилаури
__________________________



В ВАШЕМ ГОРОДЕ…
Найдите дизайнера на Houzz — закажите собственный проект

МЫ ЛЮБИМ ХОДИТЬ В ГОСТИ…
Хотите стать героем следующей статьи? Напишите на editorial@flatica.ru и приложите несколько фотографий своего интерьера (достаточно съемки на смартфон). Мы обязательно свяжемся с вами, если примем решение о публикации

Комментарии 87

с зеркалами дизайнер грамотно работает :) белый кирпич и буфеты/кровати бирюзового цвета - на любителя
Юлия

6 л.

Понравился коридор. Только с кирпичи убрать бы. На этом, пожалуй и всё. Интересно, как запёрли огромное зеркало-фальшпортал. Такое не в каждый грузовой лифт влезет и не в каждый лестничный пролёт впишется... И я бы побоялась делать такое количество зеркал в пол таких ращмеров (гостиная, балкон) при наличии двух маленьких детей: если играя разобьют - на них же живого места не останется...
Шикарно.

Оставьте комментарий

Смотреть похожие темы

Читать похожие статьи