logo

В гостях: Квартира с эпатажными обоями

На ремонт собственного жилья архитекторам понадобилось три месяца

Houzz Россия
Houzz Россия

2 окт. 2018

Обновлено 20 янв. 2019

«Секрет быстрого ремонта — в распределенном и согласованном бюджете. Чаще всего стройки задерживаются по двум причинам: либо некомпетентность строителей, либо неясность бюджета, — утверждают Дмитрий и Виктория Коротецкие. — Когда заказчик понимает, что есть сформированный бюджет и в определенные числа вносит нужные суммы, то вовремя закупаются материалы, оплачивается работа мастеров, и ремонт тоже заканчивается по расписанию».

Чтобы въехать в собственное жилье, архитекторам понадобилось три месяца и четкий план: они расписали нужные позиции, суммы и даже даты, когда что оплачивать и закупать.
В гостях: Квартира с эпатажными обоямиВиктория Коротецкая
О проекте
Место: Московская область
Год: 2016
Размер: 50 кв.м
Кто здесь живет: авторы проекта
Авторы проекта: архитекторы Дмитрий и Виктория Коротецкие
Фото: Сергей Красюк

Дмитрий и Виктория востребованные архитекторы, и на проработку проекта своей квартиры у них попросту не было времени. Поэтому ремонт делали без визуализации и эскизов: подбирали материалы и мебель, опираясь на собственный опыт.
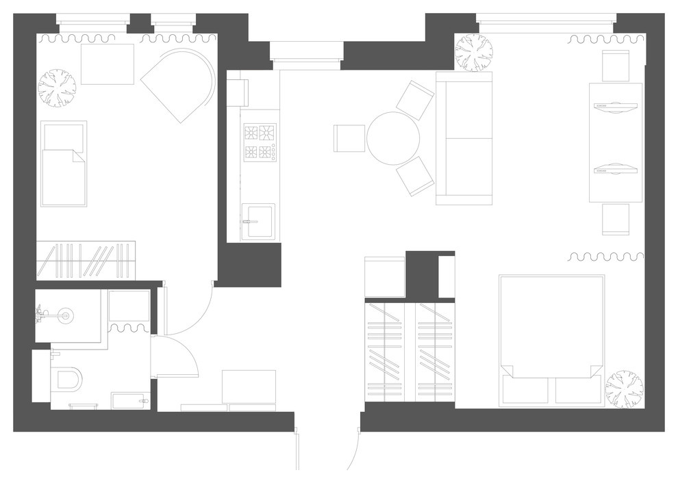
Планировка квартиры
В гостях: Квартира с эпатажными обоямиВиктория Коротецкая
В процессе ремонта нужно было сделать отдельную комнату для ребенка, рабочее место на двоих, гостиную, кухню и зону спальни для родителей. Плюс требовалось побольше мест для хранения. И при этом в распоряжении семьи было всего 50 кв.м.
В гостях: Квартира с эпатажными обоямиВиктория Коротецкая
КУХНЯ
«Перепланировку мы не делали, потому что в квартире не было перегородок. Но существовала другая сложность: газовая колонка и куча труб на кухне, которые нельзя закрывать, — вспоминает Виктория. — Мы отодвинули кухонную мебель на двадцать сантиметров от стены и скрыли в этом пространстве все коммуникации». Для легкого доступа к ним задние стенки шкафов и фартук сделали съемными.
В гостях: Квартира с эпатажными обоямиВиктория Коротецкая
Кухонную мебель купили в ИКЕА, но скомпоновали по своим эскизам. Для фартука использовали икеевский фасад из нержавеющей стали. Его большой плюс — совместимость с газовой плитой.
В гостях: Квартира с эпатажными обоямиВиктория Коротецкая
ГОСТИНАЯ
Виктория и Дмитрий не стали загромождать пространство и оставили маленькому сыну свободу передвижения. Так, перегородку, отделяющую спальню от гостиной, сделали из текстиля. Это бюджетное решение позволяет зонировать пространство и создавать разное настроение: рабочее или домашнее. Плюс текстиль смягчает достаточно лаконичный интерьер.
В гостях: Квартира с эпатажными обоямиВиктория Коротецкая
«Чем сложнее пространство маленькой квартиры, тем она кажется больше, поэтому мы усложняли геометрию разными способами: зеркалами, текстильными перегородками, ярким принтом, — рассказывает Дмитрий. Нам нужен был выразительный акцент, который внес бы эпатажность и цвет в интерьер. Для этого выбрали обои с крупным растительным рисунком».
В гостях: Квартира с эпатажными обоямиВиктория Коротецкая
Стену с обоями с одного края и у потолка облицевали зеркалами. Этот прием усложнил и раздвинул пространство. Все гости в первый раз обязательно ищут продолжение комнаты, которого нет.
В гостях: Квартира с эпатажными обоямиВиктория Коротецкая
Квартиру украсило несколько картин, одна из них — копия, которую написал Дмитрий, другая досталась главе семьи по наследству.
В гостях: Квартира с эпатажными обоямиВиктория Коротецкая
Бетонный потолок по всей квартире оставили без изменений, его очистили и прогрунтовали. Над кухней потолок опустили и покрасили в белый.

Обеденный стол добавили в последнюю очередь, как центр композиции. «Мы вспомнили о нем уже в финале ремонта, стол долгое время пылился в гараже. Оказалось, что он идеально подошел нашему интерьеру, и не было смысла искать альтернативу», говорит Дмитрий.
В гостях: Квартира с эпатажными обоямиВиктория Коротецкая
ПРИХОЖАЯ
В гараже хранился не только стол, но и некоторые детали, оставшиеся от прежних проектов. «От старого ремонта остался трафарет с названием нашей студии, выбрасывать который было жалко. Мы декорировали им входную дверь, рассказывает Виктория. Еще в прихожей стоят две двери начала ХХ века, доставшиеся от заказчика. Мы долго перевозили их с квартиры на квартиру, пока не нашли место в новой прихожей».
В гостях: Квартира с эпатажными обоямиВиктория Коротецкая
На столетних дверях обновили краску, затем их искусственно состарили. Сейчас двери многофункциональны: на ручки удобно вешать рожок для обуви, а старые звоночки радуют малыша.
В гостях: Квартира с эпатажными обоямиВиктория Коротецкая
САНУЗЕЛ
Не обошлось и без экспериментов. Дмитрию и Виктории давно хотелось оценить в работе уральский мрамор — именно им облицевали санузел, пол в кухне и прихожей. «Это было не лучшее решение, — смеется Виктория. — С точки зрения внешнего вида он замечательный, но во время эксплуатации доставляет хлопоты. Своим заказчикам мы его не посоветуем».

Еще один прием, который давно хотелось опробовать, не выравнивать фактуру газобетонной стены. Эта идея оказалась более удачной. Газобетон хорошо смотрится и в прихожей, и в санузле, и даже в детской.
В гостях: Квартира с эпатажными обоямиВиктория Коротецкая
ДЕТСКАЯ
Для малыша выделили отдельную комнату, где поставили кроватку, пеленальный столик и кресло для кормления.
В качестве декора использовали объекты со старых проектов: свисающий вниз головой зайка раньше был трафаретом. Ночником выступает белый круг из крашеного МДФ с диодной лентой, который собирает композицию стены в единое целое.
ОБ АВТОРАХ ПРОЕКТА
Перейдите на личную страницу архитекторов Виктории и Дмитрия Коротецких, чтобы изучить другие работы из их портфолио или заказать собственный проект
___________________________

МЫ ЛЮБИМ ХОДИТЬ В ГОСТИ…
Хотите стать героем следующей статьи? Напишите на editorial@flatica.ru и приложите несколько фотографий своего интерьера (достаточно съёмки на смартфон). Мы обязательно свяжемся с вами, если примем решение о публикации!

Комментарии 104

Для такой маленькой квартиры иметь декор в виде огромных "состаренных" дверей? Это, простите, непозволительная "роскошь"...
. . Перепланировка не согласована и незаконна! Про спрятанный газовый котёл, счётчик и краны - даже не говорю... Очень не профессионально! . .
Планировка странная. Практически спортанское спальное место, зато две полноценные рабочие зоны. И диван почему-то к ним обращён. Также икеевскую скамью на полдвери легко мог бы заменить круглый пуф

Оставьте комментарий

Читать похожие статьи